49 000 000 Р 650 300 $ или 554 600

Информация об помещении

1
Этаж

Состояние и оснащение

Количество этажей
1
Развернуть
Агент
+7 (911) 473-82-69
Начать чат с агентом

Помещение свободного назначения в Калининградская область, Калининград ...

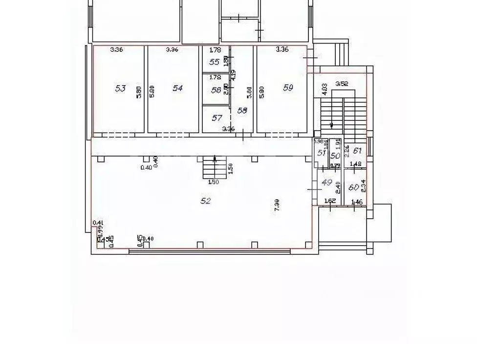
Арт.Продается встроенно-пристроенное торговое помещение площадью 1152 кв.м. в густонаселенном районе города, расположенное между двумя девятиэтажными домами по адресу Машиностроительная 60 80 площади находится в действующей аренде ( супермаркет, зоотовары, ателье, парикмахерская, канцтовары и игрушки, секонд, разливное пиво). Окупаемость объекта менее 13 лет Отличное вложение денег в виде инвестиций в коммерческую неджвижимость * Удобная планировка.* Высота потолков -3,4 м.* Пять отдельных входов.* Все коммуникации. 56 кВт.* Вентиляция.* Пожарная сигнализация.* Погрузочная рампа.* В подвале находятся 4 помещения под морозильные камеры и мойка.* 2 санузла.Высокий пешеходный и автомобильный трафик ( рядом магазин Квартал, Почта России, магазин Бутыль и другие).* Здание из железобетона и кирпича 1986 года.Цену готовы обсуждать Полное юридическое сопровождение сделки Звоните в любое время

Читать полностью
    Позвонить Написать
    49 000 000 Р650 300 $ или 554 600
    Агент
    +7 (911) 473-82-69
    Начать чат с агентом
    Похожие предложения
    Помещение свободного назначения в Калининградская область, Калининград ... - Фото 1
    Помещение свободного назначения в Калининградская область, Калининград ... - Фото 2
    Арт.Продаётся объект коммерческой недвижимости ( общей площадью 407,4 м, с высотой потолков 3 м ). Сдан в аренду двум надёжным арендаторам двумя частями : 1 часть : 145,3 м с новым ремонтом, Арендатор Бристоль , договор на 7 лет, с января 2024г....
    • -1/11 эт.
    49 950 000 Р
    Агент
    +7 (911) Показать номер
    Посмотреть контакты
    Помещение свободного назначения в Калининградская область, Калининград ... - Фото 1
    Помещение свободного назначения в Калининградская область, Калининград ... - Фото 2
    Арт.Продаётся многофункциональное коммерческое помещение, свободного назначения, общая площадь 166,1 м2. Первая линия, отдельный вход ( Street Retail ). Есть пожарный выход. Помещение расположено в самом центре города Калининграда, пересечение Ленинского...
    • -1/4 эт.
    50 000 000 Р
    Агент
    +7 (911) Показать номер
    Посмотреть контакты
    Помещение свободного назначения в Смоленская область, Смоленск ул. ... - Фото 1
    Помещение свободного назначения в Смоленская область, Смоленск ул. ... - Фото 2
    Код объекта: 1669577.Одно из лучших предложений на рынке коммерческой недвижимости Предлагаем к продаже земельный участок 22 сотки в самом центре города Смоленска , по адресу улица Дзержинского, 55. На участке расположены 2 отдельно стоящих здания...
    • 1/1 эт.
    48 000 000 Р
    Агент
    +7 (910) Показать номер
    Посмотреть контакты
    Помещение свободного назначения в Еврейская автономная область, ... - Фото 1
    Помещение свободного назначения в Еврейская автономная область, ... - Фото 2
    ИДЕАЛЬНАЯ ЛОКАЦИЯ ДЛЯ БИЗНЕСА Срочно продается здание в золотом месте Биробиджана Адрес: г. Биробиджан, ул. Пионерская, 53а Почему это ЛУЧШЕЕ МЕСТО в городе? Центр жизни Биробиджана: Здание находится *в самом сердце города* на центральной улице...
    • 5/5 эт.
    50 000 000 Р
    Агент
    +7 (981) Показать номер
    Посмотреть контакты
    Помещение свободного назначения в Ярославская область, Ярославль ... - Фото 1
    Помещение свободного назначения в Ярославская область, Ярославль ... - Фото 2
    Арт.. Продается уникальный объект в историческом сердце Ярославля.Доходный дом Мурановой 1849 года постройки с деревянными перекрытиями на проспект Октября, 24 Это не квадратные метры в бетоне , а готовый штаб вашего бизнеса с историей и характером....
    • 2/3 эт.
    48 000 000 Р
    Агент
    +7 (917) Показать номер
    Посмотреть контакты

    Не нашли подходящего объявления?

    Оставьте заявку, и наши риэлторы подберут псн в районе Калининграда

    (0)