34 000 000 Р 434 600 $ или 369 200

Информация об помещении

1
Этаж

Состояние и оснащение

Количество этажей
8
Развернуть
Агент
+7 (911) 852-50-68
Начать чат с агентом

Помещение свободного назначения в Калининградская область, Гурьевск ...

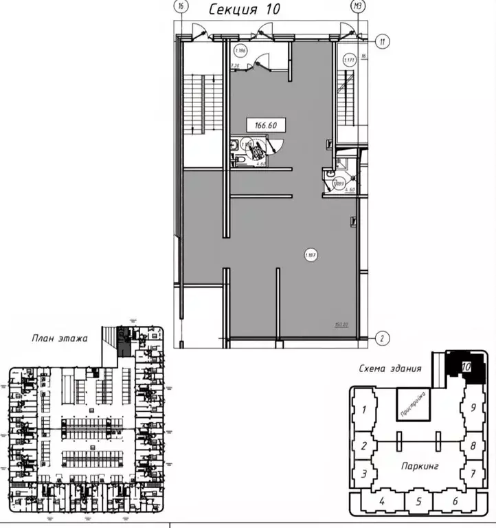
Арт.Уникальное предлoжение от компaнии Салют Риэлт Прямая продажа коммерческих площадей свободного назначения Отлично подходит для разного плана бизнеса: Адрес местоположения объекта: Калининградская область, г. Гурьевск, ул. Каштановая, д. 4 ЖК Каштановый .Помещение свободного назначения:1-я площадь 169.8 кв.м. - на первом этаже2-я площадь 494,1 кв.м. - в полуподвалеО доме:Название новостройки: ЖК Каштановый Дом сдан в 2017 г.Тип дома: монолитно-кирпичный.Этажей в доме: 8.B кaждом подъезде установлен бесшумный лифт последнего поколения Шиндлер Экологически чистый район пригорода города Калининграда - г. Гурьевск, ул. Каштановая.Удаление от центра города Калининграда - 5 километров, благоустроенная территория около домов:- детские площадки из качественных и экологически чистых материалов;- спортплощадки от сертифицированных производителей;- шаговая доступность зон для отдыха: Гурьевский городской парк, озеро.- близость-объекта к дорожным магистралям и аэропорту Храброво (15 км.)- развитая инфраструктура: дет сад на 350 мест; школа на 1500 учащихся; супермаркеты Виктория , Spar ; городская поликлиника.Всё в шаговой доступности (5-10 минут ходьбы).Компания Салют Риэлт - надежный партнер в сфере недвижимости, состоит в Гильдии риэлторов. - лицензированные специалисты, проведут сделки любой сложности; - работаем со всеми видами государственных сертификатов; - полное юридическое сопровождение сделок, безопасные взаиморасчёты; - выездная и электронная регистрации в офисе компании, межрегиональные сделки. Мы работаем для вас КОНСУЛЬТАЦИЯ БЕСПЛАТНО ЗВОНИТЕ

Читать полностью
    Позвонить Написать
    34 000 000 Р434 600 $ или 369 200
    Агент
    +7 (911) 852-50-68
    Начать чат с агентом
    Похожие предложения
    Помещение свободного назначения в Калининградская область, Калининград ... - Фото 1
    Помещение свободного назначения в Калининградская область, Калининград ... - Фото 2
    Продается действующий бизнес - гостевой дом в г. Калининграде, находящийся в тихом районе города на улице Сусанина, примерно в 15 минутах езды от центра города.Здание 4-этажное 2006 года постройки, в отличном состоянии. Дом утеплен и оштукатурен, крыша...
    • 1/4 эт.
    34 500 000 Р
    Агент
    +7 (911) Показать номер
    Посмотреть контакты
    Помещение свободного назначения в Вологодская область, Усть-Кубинский ... - Фото 1
    Помещение свободного назначения в Вологодская область, Усть-Кубинский ... - Фото 2
    Продам базу отдыха на берегу реки Кубена, в направлении с. Устье.В вашем распоряжении 60 соток земли с реликтовыми лесом, высокий берег с панорамным видом на р. Кубену. 3 строения дом - баня 236 м2, гостевой дом 272,6 м2, гостевой дом незавершенное...
    • 2/2 эт.
    35 000 000 Р
    Агент
    +7 (911) Показать номер
    Посмотреть контакты
    Помещение свободного назначения в Пермский край, Пермь ул. Окулова, 14 ... - Фото 1
    Помещение свободного назначения в Пермский край, Пермь ул. Окулова, 14 ... - Фото 2
    Помещение под офиc 97 м2 с видом на Каму, на 6 этажe МФК Окулова 14 от UDS.Историческая часть Перми, на набережной Камы, рядом с садом им. Гоголя. Удобные пешеходные и подъездные пути, рядом остановка общественного транспорта, 5 минут на автомобиле до...
    • 6/12 эт.
    34 946 470 Р
    Агент
    +7 (912) Показать номер
    Посмотреть контакты
    Помещение свободного назначения в Пермский край, Пермь ул. Окулова, 14 ... - Фото 1
    Помещение свободного назначения в Пермский край, Пермь ул. Окулова, 14 ... - Фото 2
    Помещение под офиc 97 м2 с видом на Каму, на 5 этажe МФК Окулова 14 от UDS.Историческая часть Перми, на набережной Камы, рядом с садом им. Гоголя. Удобные пешеходные и подъездные пути, рядом остановка общественного транспорта, 5 минут на автомобиле до...
    • 5/12 эт.
    34 597 006 Р
    Агент
    +7 (912) Показать номер
    Посмотреть контакты
    Помещение свободного назначения в Пермский край, Пермь ул. Окулова, 14 ... - Фото 1
    Помещение свободного назначения в Пермский край, Пермь ул. Окулова, 14 ... - Фото 2
    Помещение под офиc 85 м2 с видом на Каму, на 7 этажe МФК Окулова 14 от UDS.Историческая часть Перми, на набережной Камы, рядом с садом им. Гоголя. Удобные пешеходные и подъездные пути, рядом остановка общественного транспорта, 5 минут на автомобиле до...
    • 7/12 эт.
    33 276 999 Р
    Агент
    +7 (912) Показать номер
    Посмотреть контакты

    Не нашли подходящего объявления?

    Оставьте заявку, и наши риэлторы подберут псн в районе Гурьевска

    (0)