28 900 000 Р 407 600 $ или 349 400

Информация об помещении

цоколь
Этаж

Состояние и оснащение

Количество этажей
5
Развернуть
Агент
+7 (911) 860-44-94
Начать чат с агентом

Помещение свободного назначения в Калининградская область, Калининград ...

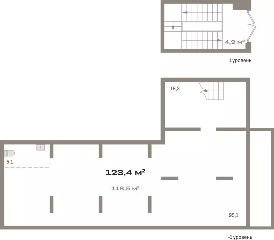
Арт.Эксклюзивное предложение В центре г. Калининграда продаётся коммерческое помещение свободного назначения общей площадью 219,6 м2., высота потолка 3м. Помещение находится в цокольном этаже Административного Здания, имеет правильную форму планирования, вся площадь полезная.Помещение сдано в долгосрочную аренду (5 лет), арендатор игровой компьютерный клуб.Коммуникации:Выделенная мощность электр. 50 кВт. Вода и канализация городскаяОтопление автономное, газовой котёл.

Читать полностью
    Позвонить Написать
    28 900 000 Р407 600 $ или 349 400
    Агент
    +7 (911) 860-44-94
    Начать чат с агентом
    Похожие предложения
    Помещение свободного назначения в Калининградская область, Калининград ... - Фото 1
    Помещение свободного назначения в Калининградская область, Калининград ... - Фото 2
    Арт.Продаётся гостевой комплекс Блюз . Общая площадь здания 229.20 кв.м, и плюс вспомогательные постройки, площадь участка 21.4 сот. Расположение в первой линии от дороги на берегу Голубых озер с прекрасным видом. Сделан косметический ремонт. Имеется...
    • 1/2 эт.
    29 000 000 Р
    Агент
    +7 (911) Показать номер
    Посмотреть контакты
    Помещение свободного назначения в Калининградская область, Калининград ... - Фото 1
    Помещение свободного назначения в Калининградская область, Калининград ... - Фото 2
    Арт.Продаётся многофункциональное коммерческое помещение общей площадью 262,1 м, ( с высотой потолков 3 м ). В настоящее время сдано в аренду надёжному, сетевому Арендатору Тайм Спа , договор аренды на 10 лет с марта 2024г. Произведён...
    • -1/11 эт.
    29 950 000 Р
    Агент
    +7 (911) Показать номер
    Посмотреть контакты
    Помещение свободного назначения в Калининградская область, Калининград ... - Фото 1
    Помещение свободного назначения в Калининградская область, Калининград ... - Фото 2
    Арт.Продается автосервис с мойкой и встроенными помещениями свободного назначения, расположенные на первом этаже отдельно стоящего административного здания на одной из главных магистралей города - Московском проспекте. Отличная транспортная доступность,...
    • 1/6 эт.
    30 000 000 Р
    Агент
    +7 (911) Показать номер
    Посмотреть контакты
    Помещение свободного назначения в Калининградская область, Калининград ... - Фото 1
    Помещение свободного назначения в Калининградская область, Калининград ... - Фото 2
    Номер объекта: 544668. Продаётся нежилое коммерческое помещение., площадью 1016,1 кв.м.Два этажа+ подвальное помещение.Здание расположено на земельном участке 30 соток в тихом зеленом районе города.Ориентир: ул. Каблукова, ул. Лужская, Карташева, Плданская,...
    • 2/2 эт.
    29 000 000 Р
    Агент
    +7 (911) Показать номер
    Посмотреть контакты
    Помещение свободного назначения в Калининградская область, Калининград ... - Фото 1
    Помещение свободного назначения в Калининградская область, Калининград ... - Фото 2
    Продается нежилое помещение в Центральном районе г. Калининграда. Помещение расположено на первом и цокольном этаже многоквартирного дома 2008 года постройки.Отопление центральное(электрическое), коммуникации городские, отдельный вход, хороший ремонт.Возможен...
    • 1/11 эт.
    30 000 000 Р
    Агент
    +7 (911) Показать номер
    Посмотреть контакты

    Не нашли подходящего объявления?

    Оставьте заявку, и наши риэлторы подберут псн в районе Калининграда

    (0)