5 316 000 Р 69 860 $ или 59 930

Информация о квартире

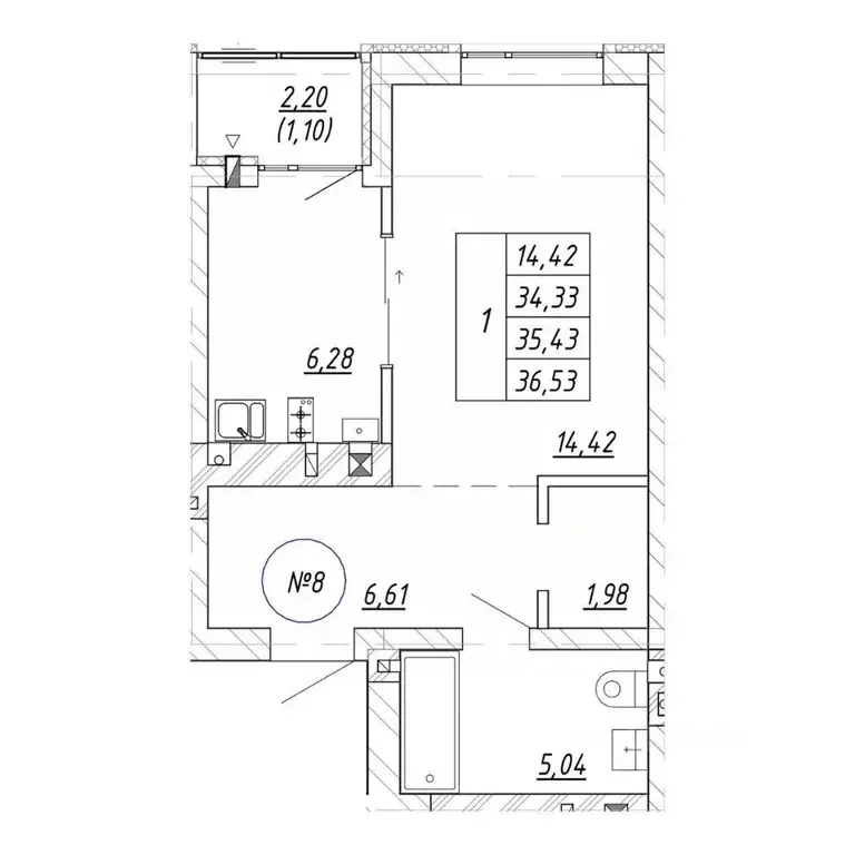
36 м2
Площадь
1
Комната
2
Этаж
4
Этажность

Дополнительная информация

Тип дома
кирпичный
Развернуть
Агент
+7 (901) 939-81-37
Начать чат с агентом

1-к кв. Калининградская область, Зеленоградск (36.54 м)

Продаётся 1-комнатная квартира в строящемся доме (Дом 18.1), срок сдачи: II-кв. 2028, общей площадью 36.54 кв.м., на 2 этаже. Новый жилой комплекс Яркий от застройщика СтройИнвестицияасположен по адресу: Калининградская обл., г. Зеленоградск, ул. Центральная улица.

Читать полностью
    Позвонить Написать
    5 316 000 Р69 860 $ или 59 930
    Агент
    +7 (901) 939-81-37
    Начать чат с агентом
    Похожие предложения в Зеленоградске
    1-к кв. Калининградская область, Зеленоградск  (27.0 м) - Фото 1
    1-к кв. Калининградская область, Зеленоградск  (27.0 м) - Фото 2
    1-комнатная квартира, общая площадь 27м², жилая 12м², кухня 6м²

    Супер предложение Инвестиционная квартира у моря комфорт-класса в живописной Малиновке, Зеленоградск В продаже — однокомнатная квартира площадью 29 м в современном малоэтажном жилом комплексе, окружённом природой и тишиной.Сдача дома — 1 квартал 2026...
    • 27 м²
    • 1-ком
    • 2/4 эт.
    • блочный
    5 200 000 Р
    Агент
    +7 (911) Показать номер
    Посмотреть контакты
    1-к кв. Калининградская область, Зеленоградск  (35.57 м) - Фото 1
    1-к кв. Калининградская область, Зеленоградск  (35.57 м) - Фото 2
    1-комнатная квартира, общая площадь 35м², жилая 14м², кухня 6м²

    10 минут пешком до моря Идеальная локация в развивающемся районе - вдали от городского шума и вблизи побережья.Семейная ипотека 4.6 для семей с одним или ДВУМЯ детьми Сельская ипотека 3 Рассрочка от застройщика 0 Продается уютная квартира комфорт-класса...
    • 35 м²
    • 1-ком
    • 4/4 эт.
    • кирпичный
    5 335 500 Р
    Агент
    +7 (984) Показать номер
    Посмотреть контакты
    1-к кв. Калининградская область, Зеленоградск  (36.54 м) - Фото 1
    1-к кв. Калининградская область, Зеленоградск  (36.54 м) - Фото 2
    1-комнатная квартира, общая площадь 36м²

    Продаётся 1-комнатная квартира в строящемся доме (Дом 17.2), срок сдачи: II-кв. 2028, общей площадью 36.54 кв.м., на 3 этаже. Новый жилой комплекс Яркий от застройщика СтройИнвестицияасположен по адресу: Калининградская обл., г. Зеленоградск, ул. Центральная...
    • 36 м²
    • 1-ком
    • 3/4 эт.
    • кирпичный
    5 316 000 Р
    Агент
    +7 (901) Показать номер
    Посмотреть контакты
    1-к кв. Калининградская область, Зеленоградск  (36.53 м) - Фото 1
    1-к кв. Калининградская область, Зеленоградск  (36.53 м) - Фото 2
    1-комнатная квартира, общая площадь 36м²

    Продаётся 1-комнатная квартира в строящемся доме (Дом 17.2), срок сдачи: II-кв. 2028, общей площадью 36.53 кв.м., на 1 этаже. Новый жилой комплекс Яркий от застройщика СтройИнвестицияасположен по адресу: Калининградская обл., г. Зеленоградск, ул. Центральная...
    • 36 м²
    • 1-ком
    • 1/4 эт.
    • кирпичный
    5 243 640 Р
    Агент
    +7 (901) Показать номер
    Посмотреть контакты
    1-к кв. Калининградская область, Зеленоградск  (36.53 м) - Фото 1
    1-к кв. Калининградская область, Зеленоградск  (36.53 м) - Фото 2
    1-комнатная квартира, общая площадь 36м²

    Продаётся 1-комнатная квартира в строящемся доме (Дом 16.2), срок сдачи: II-кв. 2028, общей площадью 36.53 кв.м., на 1 этаже. Новый жилой комплекс Яркий от застройщика СтройИнвестицияасположен по адресу: Калининградская обл., г. Зеленоградск, ул. Центральная...
    • 36 м²
    • 1-ком
    • 1/4 эт.
    • кирпичный
    5 243 640 Р
    Агент
    +7 (901) Показать номер
    Посмотреть контакты

    Не нашли подходящего объявления?

    Оставьте заявку, и наши риэлторы подберут квартиру в новостройке в районе Зеленоградска

    (0)