Реализация объекта недвижимости приостановлена

Информация о квартире

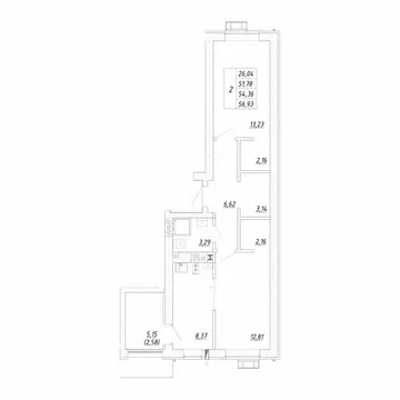
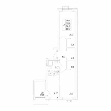
60.0 м2
Площадь
2
Комнаты
1
Этаж
4
Этажность
Развернуть

2-к кв. Калининградская область, Зеленоградск Вишневый квартал жилой ...

Продаётся 2-комнатная квартира в строящемся доме (ГП1, 1 этап), срок сдачи: IV-кв. 2026, общей площадью 59.58 кв.м., на 1 этаже. Новый жилой комплекс Вишневый квартал от компании Эллипсасположен в пос. Вишневое Калининградской области на ул. Глазурная.

Читать полностью

    Реализация объекта недвижимости приостановлена

    Не нашли подходящего объявления?

    Оставьте заявку, и наши риэлторы подберут квартиру в новостройке в районе Зеленоградска

    (0)