9 268 000 Р 121 800 $ или 104 500

Информация о квартире

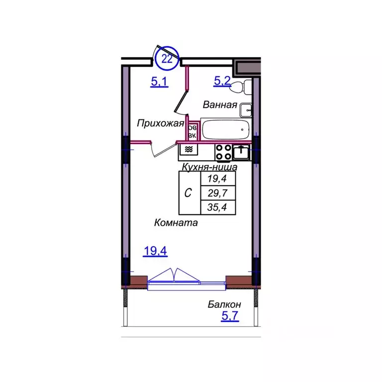
33 м2
Площадь
студия
Комнат
7
Этаж
7
Этажность
Развернуть
Агент
+7 (901) 939-80-19
Начать чат с агентом

Студия Калининградская область, Светлогорск Балтийская ул. (33.1 м)

Балтийская Резорт — новый гостиничный комплекс премиального формата в Светлогорске, созданный для тех, кто выбирает жизнь у моря без компромиссов или инвестиции с быстрой окупаемостью. А может быть все сразу.Первый в Светлогорске прямой и комфортный спуск к морю, без перепадов высоты, для тех, кто не любит кардио нагрузки и лестницы. Собственная экосистема сервиса — здесь каждый день напоминает об отдыхе, даже если вы приехали всего на выходные.Главная особенность комплекса — масштабная инфраструктура уровня курорта. Первое место в Светлогорске где можно задержаться до полуночи.В составе Балтийская Резорт: • Флагманский СПА-комплекс от создателей Баден Аква СПА с бассейном и зонами релакса • Современный фитнес-центр • Бильярд, караоке и ресторан — центр притяжения для отдыха и встреч • Уютные зоны для работы • Прачечная, супермаркет, салон красоты, сервисная компания • ЗАГС и площадки для церемоний в парке, у моря и на кровле • Подземный паркинг, охрана, видеонаблюдениеЖить в Балтийская Резорт — значит иметь собственный мир у моря, где быт решается автоматически, а время принадлежит вам.Инвестиционная привлекательность.Балтийская Резорт — это не только премиальный уровень жизни, но и сильная инвестиционная модель: • Проект расположен в топовой туристической зоне Светлогорска — высокий стабильный спрос на аренду круглый год. • Апартаменты могут передаваться в управление — полностью пассивный доход без вашего участия. • Капитализация проекта по прогнозам — 130 + к вводу в эксплуатацию. • Стартовая цена существенно ниже будущей рыночной стоимости — редкая возможность зайти на старте в один из самых сильных проектов региона.Качество и стандарты: • Потолки 3 метра, большие окна, продуманная архитектура • Апартаменты в отделке White box в подарок и возможностью передачи в управление • Собственная управляющая компания и сервис под ключ • ДДУ, ФЗ-214 • Ипотека, рассрочка, 100 оплатаЗвоните — проведём презентацию, подберём планировку и рассчитаем инвестиционный потенциал вашей покупки.Проектная декларация размещена на сайте Предложение ограничено. *Не является публичной офертой. Указанные цифры являются прогнозными. Расчет выполнен по состоянию на декабрь 2025. Реальная доходность может отличаться от расчетной и зависит от множества факторов, включая рыночную конъюнктуру, расходы на содержание объекта (налоги, ремонт, коммунальные платежи), а также возможные периоды простоя. Данный расчет не является гарантированным и не представляет собой финансовую рекомендацию.

Читать полностью
    Позвонить Написать
    9 268 000 Р121 800 $ или 104 500
    Агент
    +7 (901) 939-80-19
    Начать чат с агентом
    Похожие предложения в Светлогорске
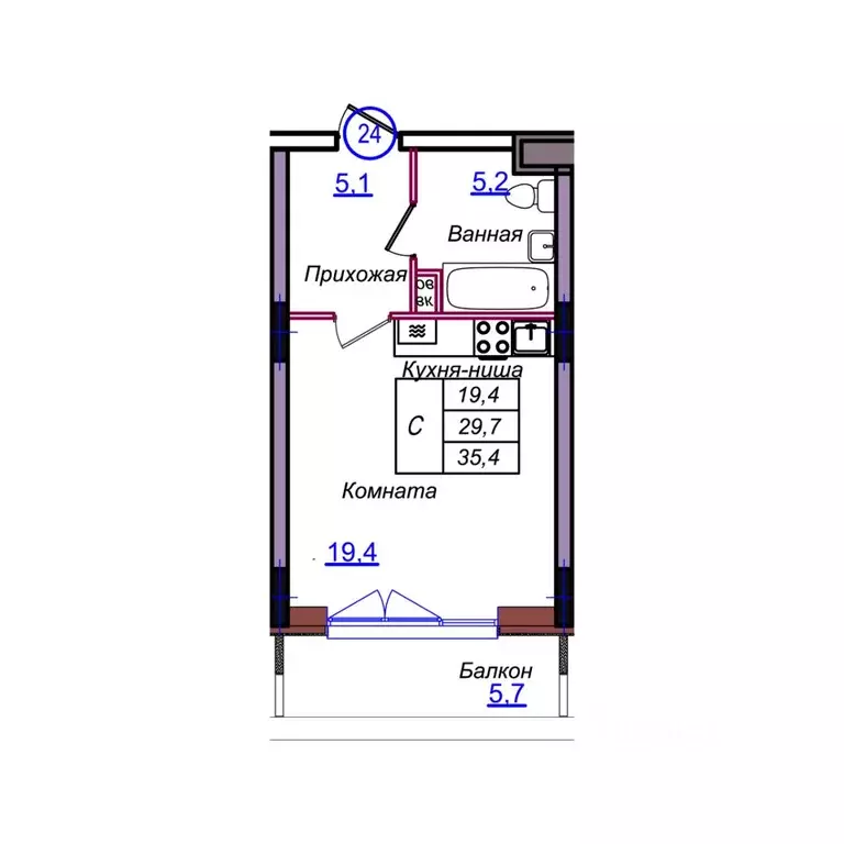
    Студия Калининградская область, Светлогорск Балтийская ул. (35.4 м) - Фото 1
    Студия Калининградская область, Светлогорск Балтийская ул. (35.4 м) - Фото 2
    студия, общая площадь 35м², жилая 19м²

    Балтийская Резорт — новый гостиничный комплекс премиального формата в Светлогорске, созданный для тех, кто выбирает жизнь у моря без компромиссов или инвестиции с быстрой окупаемостью. А может быть все сразу.Первый в Светлогорске прямой и комфортный спуск...
    • 35 м²
    • студия-ком
    • 2/7 эт.
    9 381 000 Р
    Агент
    +7 (901) Показать номер
    Посмотреть контакты
    Студия Калининградская область, Светлогорск Балтийская ул. (35.4 м) - Фото 1
    Студия Калининградская область, Светлогорск Балтийская ул. (35.4 м) - Фото 2
    студия, общая площадь 35м², жилая 19м²

    Балтийская Резорт — новый гостиничный комплекс премиального формата в Светлогорске, созданный для тех, кто выбирает жизнь у моря без компромиссов или инвестиции с быстрой окупаемостью. А может быть все сразу.Первый в Светлогорске прямой и комфортный спуск...
    • 35 м²
    • студия-ком
    • 2/7 эт.
    9 381 000 Р
    Агент
    +7 (901) Показать номер
    Посмотреть контакты
    Студия Калининградская область, Светлогорск Балтийская ул. (35.4 м) - Фото 1
    Студия Калининградская область, Светлогорск Балтийская ул. (35.4 м) - Фото 2
    студия, общая площадь 35м², жилая 19м²

    Балтийская Резорт — новый гостиничный комплекс премиального формата в Светлогорске, созданный для тех, кто выбирает жизнь у моря без компромиссов или инвестиции с быстрой окупаемостью. А может быть все сразу.Первый в Светлогорске прямой и комфортный спуск...
    • 35 м²
    • студия-ком
    • 2/7 эт.
    9 381 000 Р
    Агент
    +7 (901) Показать номер
    Посмотреть контакты
    Студия Калининградская область, Светлогорск Балтийская ул. (35.2 м) - Фото 1
    Студия Калининградская область, Светлогорск Балтийская ул. (35.2 м) - Фото 2
    студия, общая площадь 35м², жилая 19м²

    Балтийская Резорт — новый гостиничный комплекс премиального формата в Светлогорске, созданный для тех, кто выбирает жизнь у моря без компромиссов или инвестиции с быстрой окупаемостью. А может быть все сразу.Первый в Светлогорске прямой и комфортный спуск...
    • 35 м²
    • студия-ком
    • 2/7 эт.
    9 328 000 Р
    Агент
    +7 (901) Показать номер
    Посмотреть контакты
    Студия Калининградская область, Светлогорск Балтийская ул. (33.1 м) - Фото 1
    Студия Калининградская область, Светлогорск Балтийская ул. (33.1 м) - Фото 2
    студия, общая площадь 33м², жилая 19м²

    Балтийская Резорт — новый гостиничный комплекс премиального формата в Светлогорске, созданный для тех, кто выбирает жизнь у моря без компромиссов или инвестиции с быстрой окупаемостью. А может быть все сразу.Первый в Светлогорске прямой и комфортный спуск...
    • 33 м²
    • студия-ком
    • 7/7 эт.
    9 268 000 Р
    Агент
    +7 (901) Показать номер
    Посмотреть контакты

    Не нашли подходящего объявления?

    Оставьте заявку, и наши риэлторы подберут квартиру в новостройке в районе Светлогорска

    (0)