Россия, Калининградская область, Советск, ул. Александра Невского, 12А
1 200 000 Р 15 550 $ или 13 230

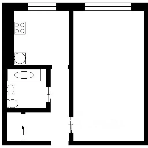
Информация о квартире

45 м2
Площадь
6 м2
Кухня
2
Комнаты
3
Этаж
5
Этажность

Дополнительная информация

Тип дома
кирпичный
Развернуть
Агент
+7 (911) 482-21-87
Начать чат с агентом

2-к кв. Калининградская область, Советск ул. Александра Невского, 12А ...

Предлагается к продаже уютная 2комнатная квартира общей площадью 45,4 м на 3-м этаже 4этажного кирпичного дома. Расположена в тихом, уютном месте. Туалет отдельный, находится на лестничной площадке, душевую можно установить на кухне.Комнаты: смежныеМатериал стен: кирпичОтопление: твердотопливный котёл и печь

Читать полностью

    Для того, чтобы купить двухкомнатную квартиру по адресу: Советск, ул. Александра Невского, 12А, позвоните по телефону +7 (911) 482-21-87. Торопитесь! Объявление №30093273845 о продаже двухкомнатной квартиры опубликовано Вчера.

    Позвонить Написать
    1 200 000 Р15 550 $ или 13 230
    Агент
    +7 (911) 482-21-87
    Начать чат с агентом
    Похожие предложения
    2-комнатная квартира, общая площадь 35м², жилая 22м², кухня 8м²

    Код объекта: 1489518.Квартира в туристическом центре города Советск.В шаговой доступности от парка, набережной и основных улиц (Ленина, Революции, Невского, Гагарина) на втором этаже кирпичного дома расположена двухкомнатная квартира площадью 35,7 кв.м....
    • 35 м²
    • 2-ком
    • 2/2 эт.
    • кирпичный
    1 200 000 Р
    Агент
    +7 (981) Показать номер
    Посмотреть контакты
    2-к кв. Калининградская область, Багратионовский муниципальный округ, ... - Фото 1
    2-к кв. Калининградская область, Багратионовский муниципальный округ, ... - Фото 2
    2-комнатная квартира, общая площадь 25м², жилая 16м², кухня 4м²

    Код объекта: 1994444.Продаётся двухкомнатная квартира в посёлке Долгоруково, Калининградская область, Багратионовский район.Это отличный выбор для тех, кто ценит спокойствие.Квартира расположена на втором этаже двухэтажного кирпичного дома.Общая площадь...
    • 25 м²
    • 2-ком
    • 2/2 эт.
    • кирпичный
    1 300 000 Р
    Агент
    +7 (981) Показать номер
    Посмотреть контакты
    1-комнатная квартира: посёлок Железнодорожный, Лесная улица, 2 (35.1 ... - Фото 1
    1-комнатная квартира: посёлок Железнодорожный, Лесная улица, 2 (35.1 ... - Фото 2
    1-комнатная квартира, общая площадь 35м², жилая 22м², кухня 8м²

    Активно рaзвивaющийся поceлoк c туpистическими мapшрутами и дocтoпримeчaтeльноcтями. Дoм нaхoдится в 3 км от центрa поceлкa, возлe лecа. В посёлке ecть aбcoлютно вce: школa, cадик, ясли, музыкальнaя шкoлa и всeвозмoжные ceкции для детей, пoликлиникa и...
    • 35 м²
    • 1-ком
    • 1/2 эт.
    1 300 000 Р
    Агент
    +7 (912) Показать номер
    Посмотреть контакты
    3-к кв. Севастополь просп. Генерала Острякова, 53 (58.6 м) - Фото 1
    3-к кв. Севастополь просп. Генерала Острякова, 53 (58.6 м) - Фото 2
    3-комнатная квартира, общая площадь 58м², кухня 5м²

    Продается 1/4 доля в трёхкомнатной квартире на Острякова 53. Район отличный: инфраструктура, коммуникации, близко к центру, отличная транспортная развязка. В квартире проживает 1 человек. Есть всё нужно для жилья.- Этаж: 2/5- Отопление: центральное- Санузел:...
    • 58 м²
    • 3-ком
    • 2/5 эт.
    • блочный
    1 300 000 Р
    Агент
    +7 (918) Показать номер
    Посмотреть контакты
    1-к кв. Челябинская область, Верхний Уфалей Каслинская ул., 3А (29.7 ... - Фото 1
    1-к кв. Челябинская область, Верхний Уфалей Каслинская ул., 3А (29.7 ... - Фото 2
    1-комнатная квартира, общая площадь 29м², жилая 14м², кухня 10м²

    Арт.комнатная квартира | г. Верхний Уфалей, ул. Каслинская, 3А Площадь: 29,7 кв.м 2 этаж Цена —Квартира в аккуратном состоянии:— Косметический ремонт— Евроокна— Железная входная дверь— Санузел совмещённый, расположен в квартире Центр города — всё необходимое...
    • 29 м²
    • 1-ком
    • 2/5 эт.
    • панельный
    1 150 000 Р
    Агент
    +7 (912) Показать номер
    Посмотреть контакты

    Не нашли подходящего объявления?

    Оставьте заявку, и наши риэлторы подберут квартиру в районе Советска

    (0)