Реализация объекта недвижимости приостановлена

Информация о квартире

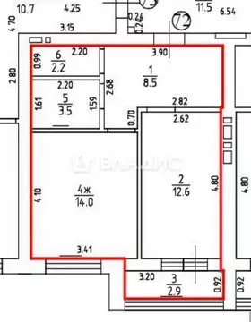
61.0 м2
Площадь
50.0 м2
Жилая
6.0 м2
Кухня
4
Комнаты
5
Этаж
5
Этажность
Развернуть

4-комнатная квартира: Советск, Калининградское шоссе, 1 (61.4 м)

Продаётся просторная четырёхкомнатная квартира общей площадью 61.4 м на последнем этаже пятиэтажного панельного дома в городе Советск Калининградской области. Жилое пространство составляет 45 м, кухня оборудована мебелью и техникой, включая холодильник, стиральную машину и водонагреватель. Высота потолков достигает 2.5 метров. Санузел совмещённый, окна выходят на тихий двор и оживлённую улицу, обеспечивая уют и светлое помещение.Преимуществом является наличие балкона, качественного ремонта («евро ) и удобного расположения мебели, позволяющей комфортно разместить всю семью. Во дворе имеется детская площадка и парковочные места для автомобилей. Рядом расположены школа, детский сад, поликлиника, парк отдыха, обеспечивающие комфортную жизнь семьям с детьми.Эта квартира станет отличным выбором для тех, кто ценит удобство проживания и хочет иметь рядом всё необходимое для комфортной семейной жизни. Код пользователя: 192270Номер в базе:

Читать полностью

    Реализация объекта недвижимости приостановлена

    Не нашли подходящего объявления?

    Оставьте заявку, и наши риэлторы подберут квартиру в районе Советска

    (0)