14 500 000 Р 179 300 $ или 155 300

Информация о коттедже

157 м2
Площадь
2
Этажность
8 cоток
Участок

Дополнительная информация

Дом продаётся вместе с участком
есть
Развернуть
Агент
+7 (981) 453-84-30
Начать чат с агентом

Дом в Калининградская область, Правдинск Комсомольская ул., 24 (158 м)

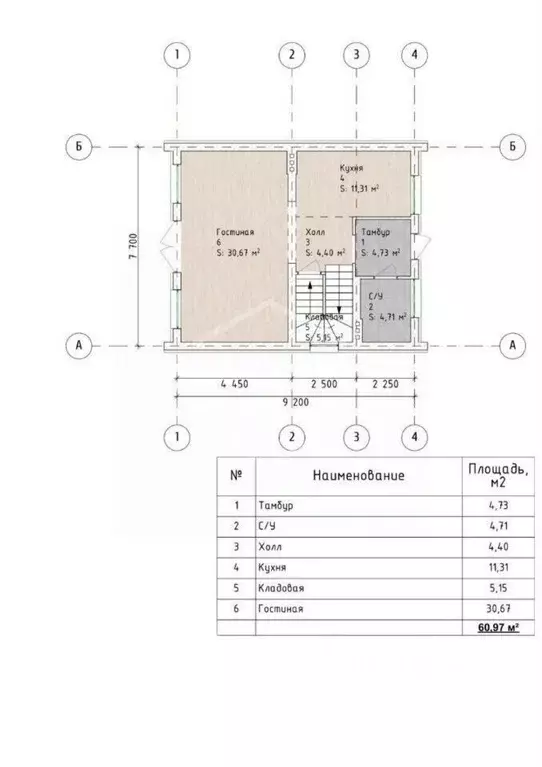
Продается кирпичный дом в поселке Правдинск Отличное место для жизни - экологически чистое, много зелени, вся необходимая инфраструктура находится в нескольких минутах ходьбы: два детских сада, школа, магазины, аптеки и т.д.Дом расположен на земельном участке 8 соток (назначение ИЖС)Площадь дома: 157,5 кв.м. Подъезд к дому — асфальтированный.1 этаж: Теплая веранда - 12 кв.м., кухня — 12 кв.м., гостиная 46,8 кв.м., + выход на террасу, кабинет -10,7 кв.м., прихожая — 10.9 кв.м., ванная комната — 3,7 кв.м., санузел -1,6 кв.м.Мансарда : три комнаты 19,2 кв.м.,+ выход на балкон, 14,8 кв.см, 15,7 кв.м., открытая зона для работы — 18,0 кв.м., санузел — 3,9 кв.м.Межкомнатные кирпичные стены , шириной в 40 см -зимой хорошо держат тепло, а летом - прохладу.Газ подключенКанализация, вода — центральные, свет — оплата по сельскому тарифу.Имеется гараж (строение узаконено) — 30 кв.м., достраивается баня.На участке посажены плодовые деревья, туи, розы, имеется место для отдыха под виноградными лозами. В доме сделан косметический ремонт, частично остается мебель.Правдинск - это поселок, где можно заниматься хозяйственной деятельностью (помимо дома продаются 8,5 гектар земли с назначением ЛПХ), рыбачить и жить современной жизнью недалеко от Калининграда (45 минут езды на машине по отличной дороге).Все документы готовы к быстрой сделке.Просмотр дома — по предварительному звонку. Код пользователя: 95676Номер в базе: 9684131

Читать полностью

    Для того, чтобы купить 2-этажный коттедж по адресу: Правдинск, ул. Комсомольская, 24, позвоните по телефону +7 (981) 453-84-30. Торопитесь! Объявление №50016510543 о продаже двухэтажного коттеджа опубликовано 30 октября 2025.

    Позвонить Написать
    14 500 000 Р179 300 $ или 155 300
    Агент
    +7 (981) 453-84-30
    Начать чат с агентом
    Похожие предложения
    Дом в Калининградская область, Черняховский муниципальный округ, пос. ... - Фото 1
    Дом в Калининградская область, Черняховский муниципальный округ, пос. ... - Фото 2
    2 этажа, общая площадь 138м², участок 3282 сотки

    Арт.УНИКАЛЬНОЕ ПРЕДЛОЖЕНИЕ ЭНЕРГЕТИЧЕСКОЕ МЕСТО КРАСИВЕЙШИЕ ЛАНДШАФТЫ И ВИДЫ ПОДХОДИТ ДЛЯ ПОКУПКИ В СОБСТВЕННОСТЬ ГРАЖДАНАМИ ИНОСТРАННЫХ ГОСУДАРСТВ 4 ВОДОЕМА , НА ТЕРРИТОРИИ, В ТОМ ЧИСЛЕ С РЫБОЙ АСФАЛЬТИРОВАННАЯ ИДЕАЛЬНАЯ ДОРОГА, ПРЯМО ДО ВОРОТ УСАДЬБЫ...
    • 2 эт.
    • 138 м²
    • 3 282 сот.
    16 000 000 Р
    Агент
    +7 (911) Показать номер
    Посмотреть контакты
    Дом в Калининградская область, Зеленоградский муниципальный округ, ... - Фото 1
    Дом в Калининградская область, Зеленоградский муниципальный округ, ... - Фото 2
    2 этажа, общая площадь 180м², участок 6 соток

    Арт.Мечтаете о собственном уголке счастья? Просторный дом с земельным участком подарит вам комфортную жизнь вдали от городской суеты Продается дом, расположенный в коттеджном посёлке комфорт класса Солнечная долина в городе Светлогорск на земельном...
    • 2 эт.
    • 180 м²
    • 6 сот.
    15 500 000 Р
    Агент
    +7 (981) Показать номер
    Посмотреть контакты
    Дом в Калининградская область, Гурьевский муниципальный округ, пос. ... - Фото 1
    Дом в Калининградская область, Гурьевский муниципальный округ, пос. ... - Фото 2
    1 этаж, общая площадь 130м², участок 8 соток

    Код объекта: 1332650. В продаже дом с земельным участком 8.5 соток в п. Родники. Ориентир: Московский пр - кт, п. Заозерье, п. Солнечное, п. Прибрежное.Характеристики дома:Строительство дома выполнено из качественных строительных материалов с соблюдением...
    • 1 эт.
    • 130 м²
    • 8 сот.
    14 000 000 Р
    Агент
    +7 (981) Показать номер
    Посмотреть контакты
    Дом в Калининградская область, Гурьевский муниципальный округ, пос. ... - Фото 1
    Дом в Калининградская область, Гурьевский муниципальный округ, пос. ... - Фото 2
    1 этаж, общая площадь 124м², участок 6 соток

    Эксклюзивное предложение Продается индивидуальный жилой дом в коттеджном посёлке премиум-класса Рублёвочка Юг.Возможно приобретение домов в этом же поселке других площадей и планировок (85 м2, 90 м2, 120 м2, 116 м2).Акция До 31 декабря 2024 года при...
    • 1 эт.
    • 124 м²
    • 6 сот.
    15 000 000 Р
    Агент
    +7 (911) Показать номер
    Посмотреть контакты
    Дом в Калининградская область, Гурьевский муниципальный округ, пос. ... - Фото 1
    Дом в Калининградская область, Гурьевский муниципальный округ, пос. ... - Фото 2
    1 этаж, общая площадь 130м², участок 6 соток

    Эксклюзивное предложение Продается индивидуальный жилой дом в коттеджном поселке премиум-класса Парк Хаус Родники.Возможно приобретение домов в этом же поселке других площадей и планировок (117 м2, 123 м2, 130 м2, 146 м2, 172 м2).О посёлке:- Коттеджный...
    • 1 эт.
    • 130 м²
    • 6 сот.
    14 600 000 Р
    Агент
    +7 (911) Показать номер
    Посмотреть контакты

    Не нашли подходящего объявления?

    Оставьте заявку, и наши риэлторы подберут купить дом в районе Правдинска

    (0)