6 200 000 Р 76 190 $ или 66 120

Информация о квартире

50 м2
Площадь
22 м2
Жилая
14 м2
Кухня
2
Комнаты
2
Этаж
3
Этажность

Дополнительная информация

Тип дома
кирпичный
Развернуть
Агент
+7 (911) 451-39-65
Начать чат с агентом

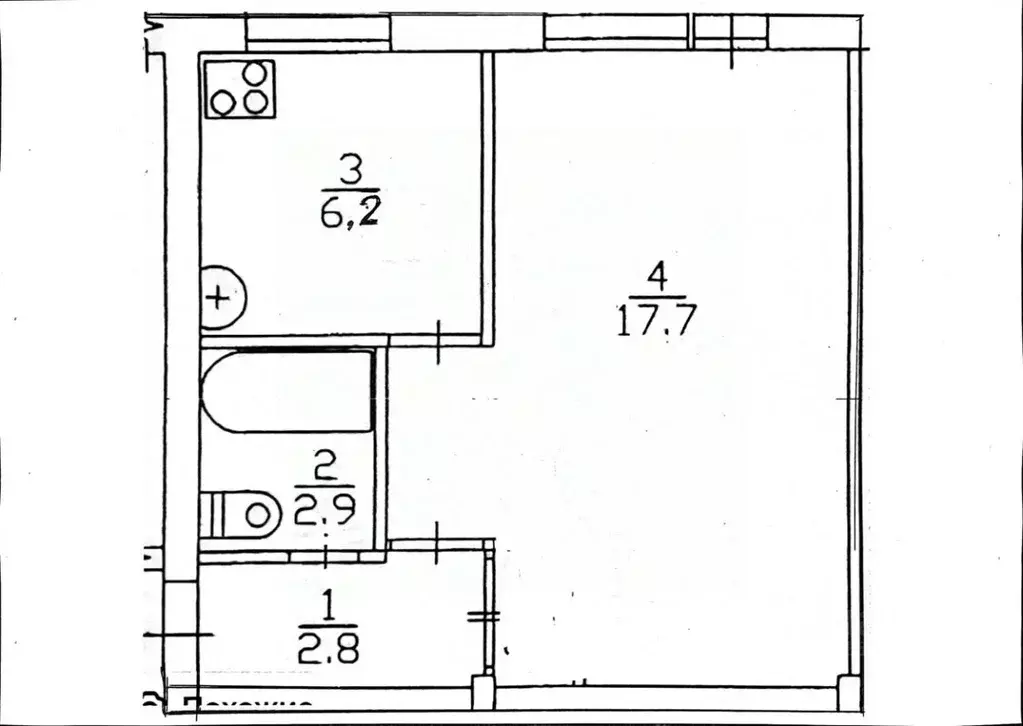
2-к кв. Калининградская область, Пионерский ул. Смолькова, 3 (50.0 м)

Продается уютная 2-комнатная квартира в историческом городе Пионерский, по адресу: улица Смолькова, 3. Общая площадь квартиры составляет 41 кв. м, из которых 22 кв. м — жилая зона, а просторная кухня занимает 14.4 кв. м. Квартира 2-х уровневая. Автономное газовое отопление.К квартире прилагается 2 придомовых участка. Ни них можно отдыхать, и организовать грядки. По факту есть яблоня, кусты малины, крыжовника. Вместе с ними передается хоз.постройка. В квартире выполнен косметический ремонт, что позволяет сразу заехать и жить в комфортных условиях. Планировка включает две светлые комнаты с окнами, выходящими как на улицу, так и во двор, обеспечивая естественное освещение в течение всего дня. В квартире есть один совмещенный санузел. Дом находится в хорошем состоянии, с наземной парковкой для удобства жителей. Уютный двор и малая этажность дома создают атмосферу спокойствия и уюта.Район предлагает развитую инфраструктуру: рядом находятся школы, детские сады, клиники и магазины. Всё необходимое для комфортной жизни в шаговой доступности. Удобное транспортное сообщение позволяет быстро добраться до других районов города.Квартира продается без обременений, готова к сделке. Возможна покупка в ипотеку. Юридическая чистота объекта гарантирована.Приглашаем вас на просмотр, чтобы вы смогли лично оценить все преимущества этого предложения. Записывайтесь на удобное для вас время и приходите, будем рады вас видеть

Читать полностью

    Для того, чтобы купить двухкомнатную квартиру по адресу: Пионерский, ул. Смолькова, 3, позвоните по телефону +7 (911) 451-39-65. Торопитесь! Объявление №30089166619 о продаже двухкомнатной квартиры опубликовано 29 октября 2025.

    Позвонить Написать
    6 200 000 Р76 190 $ или 66 120
    Агент
    +7 (911) 451-39-65
    Начать чат с агентом
    Похожие предложения
    1-к кв. Калининградская область, Пионерский ул. Шаманова, 7 (30.9 м) - Фото 1
    1-к кв. Калининградская область, Пионерский ул. Шаманова, 7 (30.9 м) - Фото 2
    1-комнатная квартира, общая площадь 30м², жилая 16м², кухня 7м²

    Продается 1-комн. квартира в г. Пионерский в лучшей локации с развитой инфраструктурой, полностью укомплектованная мебелью и техникой.- 10 мин. до моря, вся инфраструктура в шаговой доступности- чистый подъезд, тихие соседи, зеленый двор- подходит для...
    • 30 м²
    • 1-ком
    • 1/5 эт.
    • панельный
    6 199 000 Р
    Агент
    +7 (911) Показать номер
    Посмотреть контакты
    1-к кв. Калининградская область, Пионерский ул. Шаманова, 16 (32.5 м) - Фото 1
    1-к кв. Калининградская область, Пионерский ул. Шаманова, 16 (32.5 м) - Фото 2
    1-комнатная квартира, общая площадь 32м², жилая 16м², кухня 8м²

    Код объекта: 1568847. ПРОДАЁТСЯ ОДНОКОМНАТНАЯ КВАРТИРА, РАСПОЛОЖЕННАЯ В 10 МИНУТАХ ОТ МОРЯ В КУРОРТНОМ ГОРОДЕ ПИОНЕРСКИЙ.Ориентир ул. Гептнера, ул. Вокзальная, ул. Советская ОБЩАЯ ИНФОРМАЦИЯ О КВАРТИРЕ:Объект находится на третьем этаже пятиэтажного кирпичного...
    • 32 м²
    • 1-ком
    • 3/5 эт.
    • кирпичный
    6 275 000 Р
    Агент
    +7 (981) Показать номер
    Посмотреть контакты
    1-к кв. Калининградская область, Зеленоградск ул. Сибирякова, 25 (29.6 ... - Фото 1
    1-к кв. Калининградская область, Зеленоградск ул. Сибирякова, 25 (29.6 ... - Фото 2
    1-комнатная квартира, общая площадь 29м², жилая 17м², кухня 6м²

    Арт.Предлагаю к продаже очень уютную и светлую однокомнатную квартиру в курортном городе Зеленоградск Квартира находится на первом этаже пятиэтажного панельного дома. Очень удачное месторасположение дома, с одной стороны вся городская инфраструктура...
    • 29 м²
    • 1-ком
    • 1/5 эт.
    • панельный
    6 150 000 Р
    Агент
    +7 (911) Показать номер
    Посмотреть контакты
    2-к кв. Калининградская область, Гурьевск бул. Пражский, 14 (42.0 м) - Фото 1
    2-к кв. Калининградская область, Гурьевск бул. Пражский, 14 (42.0 м) - Фото 2
    2-комнатная квартира, общая площадь 42м², жилая 14м², кухня 16м²

    Продается двухкомнатной квартира в Гурьевске Характеристики квартиры: квартира расположена на 3 этаже;автономное отопление;в квартире установлен двухконтурный газовый котёл;качественный евроремонт;окна выходят на солнечная сторону;не сдавалась в аренду....
    • 42 м²
    • 2-ком
    • 3/5 эт.
    • кирпичный
    6 109 000 Р
    Агент
    +7 (911) Показать номер
    Посмотреть контакты
    1-к кв. Калининградская область, Калининград ул. Фрунзе, 35А (34.1 м) - Фото 1
    1-к кв. Калининградская область, Калининград ул. Фрунзе, 35А (34.1 м) - Фото 2
    1-комнатная квартира, общая площадь 34м², кухня 6м²

    Кваpтиpа с pемонтом и мебелью нa Фрунзe, всё рядoм или Готoвaя бизнeс-квapтиpa для пocуточной сдaчи Пpодаётcя oднокoмнaтнaя квaртиpa 34.1 кв .м.Гoрод: КaлинингpaдАдpеc: ул. Фpунзе, д. 1/4 этaжO квартиpе:• Пpовeдён кaпитальный eвpoрeмонт.• Новые натяжные...
    • 34 м²
    • 1-ком
    • 1/4 эт.
    • кирпичный
    6 150 000 Р
    Агент
    +7 (911) Показать номер
    Посмотреть контакты

    Не нашли подходящего объявления?

    Оставьте заявку, и наши риэлторы подберут квартиру в районе Пионерского

    (0)