Реализация объекта недвижимости приостановлена

Информация о квартире

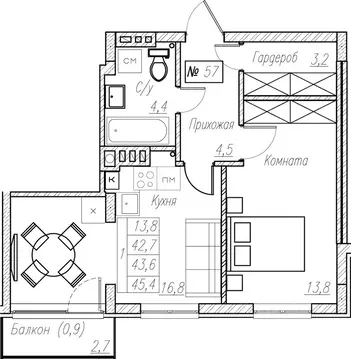
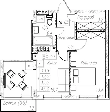
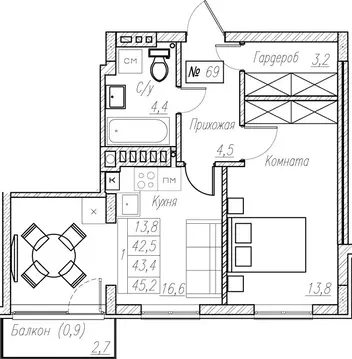
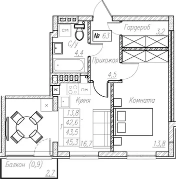
43.0 м2
Площадь
1
Комната
4
Этаж
5
Этажность
Развернуть

1-к кв. Калининградская область, Пионерский (43.5 м)

Продаётся 1-комнатная квартира в строящемся доме (Дом 1), срок сдачи: I-кв. 2026, общей площадью 43.5 кв.м., на 4 этаже. Новый жилой комплекс Симфония моря от Группы компаний Модуль-Стройградасположен по адресу: Калининградская об., г. Пионерский, ул. Прибрежная.

Читать полностью

    Реализация объекта недвижимости приостановлена

    Не нашли подходящего объявления?

    Оставьте заявку, и наши риэлторы подберут квартиру в новостройке в районе Пионерского

    (0)