Реализация объекта недвижимости приостановлена

Информация о квартире

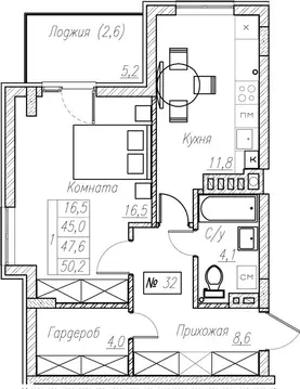
60.0 м2
Площадь
2
Комнаты
1
Этаж
4
Этажность

Дополнительная информация

Тип дома
кирпичный
Развернуть

2-к кв. Калининградская область, Пионерский Береговая ул. (60.2 м)

Продаются 2-комнатные апартаменты в строящемся доме (Дом 22), срок сдачи: II-кв. 2026, общей площадью 60.2 кв.м., на 1 этаже. Новый комплекс апартаментов Пионерский маяк от Группы компаний СТК-Балтасположен в г. Пионерский Калининградской области на ул. Береговая.

Читать полностью

    Реализация объекта недвижимости приостановлена

    Не нашли подходящего объявления?

    Оставьте заявку, и наши риэлторы подберут квартиру в новостройке в районе Пионерского

    (0)