80 000 Р 1 040 $ или 879

Информация об помещении

1
Этаж

Состояние и оснащение

Количество этажей
4
Развернуть
Агент
+7 (911) 454-17-22
Начать чат с агентом

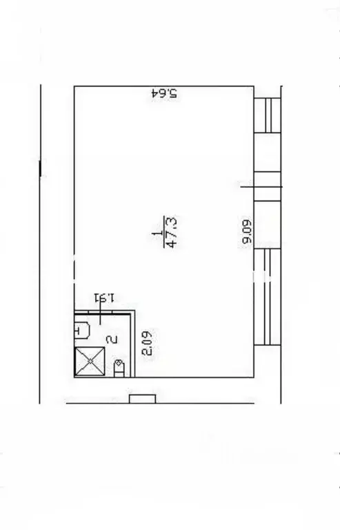
Помещение свободного назначения в Калининградская область, Калининград ...

Сдам в аренду помещение свободного назначения на 1 этаже площадью 67.60 кв.м. Помещение в сером ключе. Собственник за свой счёт выполнит подготовительные работы. Помещение имеет большой потенциал для различных видов деятельности. Собственник предоставляет арендные каникулы на 1,5 мес, что позволит Вам начать свое дело на очень выгодных условиях. Залог есть, сумма залога 80 000, есть возможность разделить залог на несколько частейВ помещении подключены все коммуникации: свет, центральное водоснабжение, отопление и канализация. Высота потолков составляет 4 метра.Ищете идеальное место для открытия магазина, офиса или кафе? Тогда это предложение именно для вас Площадь помещения позволит реализовать ваши бизнес-идеи и привлечь большое количество клиентов.Помещение находится на удобном 1 этаже, что обеспечит легкий доступ для посетителей. Рядом с ним находятся остановки общественного транспорта, что также является большим плюсом для будущего бизнеса.Номер объекта: 1/606870/22596

Читать полностью
    Позвонить Написать
    80 000 Р1 040 $ или 879
    Агент
    +7 (911) 454-17-22
    Начать чат с агентом
    Похожие предложения
    Помещение свободного назначения в Калининградская область, Калининград ... - Фото 1
    Помещение свободного назначения в Калининградская область, Калининград ... - Фото 2
    Прекрасная возможность снять помещение под свои нужды - в аренду предлагается свободного назначения помещение на 1 этаже, общей площадью 60.60 кв.м. Это отличное пространство для размещения офиса, магазина, студии или любого другого бизнеса. Помещение...
    • 1/4 эт.
    80 000 Р
    Агент
    +7 (911) Показать номер
    Посмотреть контакты
    Помещение свободного назначения в Калининградская область, Калининград ... - Фото 1
    Помещение свободного назначения в Калининградская область, Калининград ... - Фото 2
    Сдается помещение, под любой вид деятельности. Высокий цоколь с окнами во всех помещениях. Автономное газовое отопление. Несколько мокрых точек. Установлены две душевые кабинки, санузел. Транспортная доступность.Возможность работать 24/7. ВСЕ КОММУНАЛЬНЫЕ...
    • -1/4 эт.
    81 000 Р
    Агент
    +7 (911) Показать номер
    Посмотреть контакты
    Помещение свободного назначения в Калининградская область, Калининград ... - Фото 1
    Помещение свободного назначения в Калининградская область, Калининград ... - Фото 2
    Код объекта: 272981.Офис 85 кв.м. в центре Калининграда. Расположение и доступность:•Локация: центр г. Калининграда•Парковки: рядом несколько•Пешеходный трафик: высокий•Транспортная доступность•Реклама: oВозможность размещения внутри комплекса oВозможность...
    • 9/10 эт.
    80 750 Р
    Агент
    +7 (981) Показать номер
    Посмотреть контакты
    Помещение свободного назначения в Калининградская область, Калининград ... - Фото 1
    Помещение свободного назначения в Калининградская область, Калининград ... - Фото 2
    Арт.Сдаётся в аренду цокольное помещение (отдельный вход ).Общая площадь помещений 202 кв.мАдрес: г. Калининград, ул. Аллея Смелых, 72 (отдельно стоящее административное здание)Ключевые преимущества:1. Свежий ремонт: Помещение в отличном состоянии, готово...
    • -1/3 эт.
    80 000 Р
    Агент
    +7 (911) Показать номер
    Посмотреть контакты
    Помещение свободного назначения в Калининградская область, Гурьевск ... - Фото 1
    Помещение свободного назначения в Калининградская область, Гурьевск ... - Фото 2
    Код объекта: 2024874.Сдается в аренду коммерческое помещение в г. Гурьевск. Идеально подходит под магазин автозапчастей, косметический салон, магазин цветов, аптеку и другие виды деятельности.Точка выгодно размещается на въезде в город со стороны Большой...
    • 1/1 эт.
    80 000 Р
    Агент
    +7 (981) Показать номер
    Посмотреть контакты

    Не нашли подходящего объявления?

    Оставьте заявку, и наши риэлторы подберут псн в районе Калининграда

    (0)