15 000 Р 192 $ или 163

Информация о помещении и здании

2
Этаж
3
Этажность
Развернуть
Агент
+7 (911) 491-07-85
Начать чат с агентом

Офис в Калининградская область, Калининград пер. 1-й Менделеева, 32 ...

Предложение для вашего бизнеса в Калининграде Объект: коммерческое помещение свободного назначения на пер. Менделева.Аренда помещения 1 этажа, сдан2 этажа, 20-24 квм. - 15т, высота потолка 3,0 м.3 этажа, 20-24 квм. - 15т, высота потолка 3,0 м.При подписании договора необходимо внеси плату в размере 15т за 1 месяц вперед + залог в размере 15т (возвратный) + комиссия агентства 15т.Предусмотрены арендные каникулы.1-я линия. Мимо не проехать.Почему стоит обратить внимание?Выгодная цена: предложение актуально для тех, кто ищет выгодное вложение или место для развития своего дела. Не упустите шанс арендовать по привлекательной ставке Удобное расположение: помещение расположено в динамично развивающемся районе Калининграда. Близость к основным транспортным магистралям обеспечивает лёгкий доступ как для сотрудников, так и для клиентов. Удобная планировка: помещение предлагает свободный доступ по чипу. общий вход, что идеально подходит для различных видов бизнеса. Качественный ремонт: косметический ремонт выполнен с учётом современных требований, что позволяет сразу приступить к обустройству интерьера под ваш бизнес. Развитая инфраструктура: в непосредственной близости находятся все необходимые объекты для комфортной работы и жизни.Технические характеристики: Год постройки: 2023. Материал постройки: монолитный. Этажность: 3 этажа. Парковка: наземная. Этаж: 2,3. Отопление: газовое. теплый пол. своя котельная. Санузел: 1 на этаже. Дополнительно: интернет, вентиляция, пожарная сигнализация.Целевая аудитория:Бизнес-специалисты и профессионалы:Консультанты и эксперты: психологи, коучи, юристы, бухгалтеры, финансовые консультантыМедицинские специалисты: частные врачи, косметологи, массажисты, стоматологиОбразовательные специалисты: репетиторы, преподаватели иностранных языков, тренерыМалый бизнес и предприниматели:Представители услуг: мастера маникюра, визажисты, парикмахерыТорговые представители: мини-магазины, точки продаж, шоурумыОфисные работники: небольшие компании, стартапы, удаленные командыСпециализированные направления:Творческие мастерские: художники, дизайнеры, фотографыСервисные точки: ремонт техники, ателье, химчисткиПродуктовые точки: кофейни формата to go, снековыеДополнительные потенциальные арендаторы:Представительства компаний: небольшие филиалы, представительстваСкладские помещения: для хранения документов или небольших товаровПроизводственные мини-цеха: для мелкосерийного производстваОсобенности, привлекательные для целевой аудитории:Расположение в торгово-офисном здании: обеспечивает постоянный поток потенциальных клиентов2-3 этажи: удобное расположение для бизнес-целей, не слишком высокоПлощадь 20 кв.м.: оптимальна для небольшого бизнеса или личного кабинетаОтдельно стоящее здание: возможность организации отдельного входа или зоныКаналы привлечения целевой аудитории:Профессиональные сообщества: бизнес-клубы, ассоциации специалистовОнлайн-платформы: специализированные сайты по по

Читать полностью
    Позвонить Написать
    15 000 Р192 $ или 163
    Агент
    +7 (911) 491-07-85
    Начать чат с агентом
    Похожие предложения
    Офис в Калининградская область, Калининград ул. Александра Суворова, ... - Фото 1
    Офис в Калининградская область, Калининград ул. Александра Суворова, ... - Фото 2
    2-й этаж, всего 2 этажа

    Две остановки от Южного вокзала Своя частная огороженная парковка В отдельно стоящем здании сдаётся помещение 16 кв. м. Помещение расположено на 2 этаже 2-этажного здания. на ул. А. Суворова в г. Калининграде. В здании и помещении сделан качественный...
    • 2/2 эт.
    15 000 Р
    Агент
    +7 (911) Показать номер
    Посмотреть контакты
    Офис в Калининградская область, Калининград Спутник СНТ, проезд 4-й, ... - Фото 1
    Офис в Калининградская область, Калининград Спутник СНТ, проезд 4-й, ... - Фото 2
    2-й этаж, всего 2 этажа

    Предложение для вашего бизнеса в Калининграде Объект: коммерческое помещение свободного назначения 1-я Большая Окружная. (тер. СНТ Спутник , 4-й проезд, 92).Аренда помещения 2 этажа, 29 кв.м. - 15т, высота потолка 2,7 м. Отдельный вход. Есть возможность...
    • 2/2 эт.
    15 000 Р
    Агент
    +7 (911) Показать номер
    Посмотреть контакты
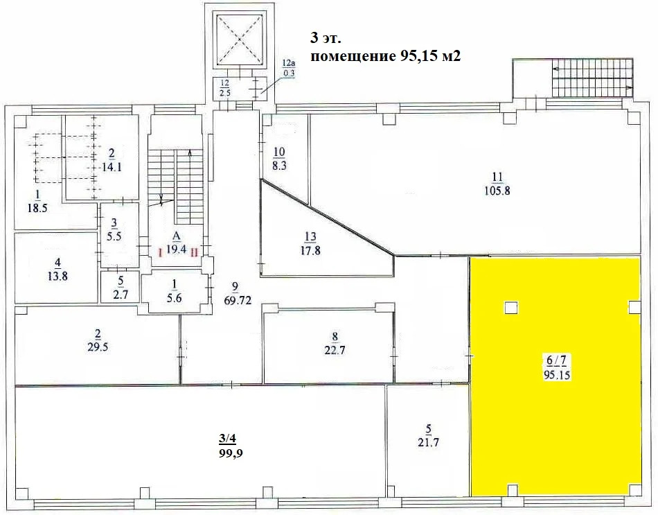
    Аренда офиса 95.15 м2 в СВАО (БЦ "Pilot House"). - Фото 1
    Аренда офиса 95.15 м2 в СВАО (БЦ "Pilot House"). - Фото 2
    Аренда офиса 95.15 м2 в СВАО (БЦ "Pilot House"). - Фото 3
    Аренда офиса 95.15 м2 в СВАО (БЦ "Pilot House"). - Фото 4
    Аренда офиса 95.15 м2 в СВАО (БЦ "Pilot House"). - Фото 5
    Аренда офиса 95.15 м2 в СВАО (БЦ "Pilot House"). - Фото 6
    Аренда офиса 95.15 м2 в СВАО (БЦ "Pilot House"). - Фото 7
    Аренда офиса 95.15 м2 в СВАО (БЦ "Pilot House"). - Фото 8
    Аренда офиса 95.15 м2 в СВАО (БЦ "Pilot House"). - Фото 9
    Аренда офиса 95.15 м2 в СВАО (БЦ "Pilot House"). - Фото 10
    Аренда офиса 95.15 м2 в СВАО (БЦ "Pilot House"). - Фото 11
    Аренда офиса 95.15 м2 в СВАО (БЦ "Pilot House"). - Фото 12
    Аренда офиса 95.15 м2 в СВАО (БЦ "Pilot House"). - Фото 13
    реализуемая площадь 95.2м², 3-й этаж, всего 4 этажа, открытая планировка

    Офис в аренду, площадью 95.15 кв.м, на 3 этаже 4-этажного бизнес-центра класса B в 15 мин. пешком от м.Владыкино, район Отрадное. Номер налоговой объекта - 15, предоставляется юридический адрес. Высота потолков: 3.5 м. Офис предоставляется в прямую аренду,...
    • 95.2 м²
    • B
    • 3/4 эт.
    • парковка
    114 200 Р /в месяц
    Агент
    +7 (933) Показать номер
    Посмотреть контакты
    Аренда офиса 77,3 м2 - Фото 1
    Аренда офиса 77,3 м2 - Фото 2
    Аренда офиса 77,3 м2 - Фото 3
    Аренда офиса 77,3 м2 - Фото 4
    Аренда офиса 77,3 м2 - Фото 5
    Аренда офиса 77,3 м2 - Фото 6
    Аренда офиса 77,3 м2 - Фото 7
    реализуемая площадь 77.3м², 7-й этаж, всего 8 этажей, коридорно-кабинетная планировка

    Помещение под офис площадью 77,3 кв.м, блок из 3-х кабинетов, на 7 этаже 8-этажного административного здания в 15 мин. пешком от м.Нагатинская, район Нагорный. Номер налоговой объекта - 26, предоставляется юридический адрес. Офис предоставляется в прямую...
    • 77.3 м²
    • C
    • 7/8 эт.
    96 630 Р /в месяц
    Агент
    +7 (903) Показать номер
    Посмотреть контакты
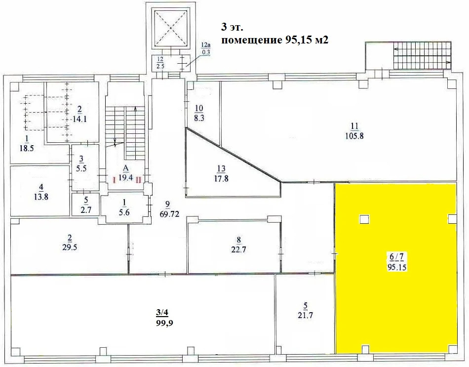
    Аренда офиса 95.15 м2 в СВАО (БЦ "Pilot House"). - Фото 1
    Аренда офиса 95.15 м2 в СВАО (БЦ "Pilot House"). - Фото 2
    Аренда офиса 95.15 м2 в СВАО (БЦ "Pilot House"). - Фото 3
    Аренда офиса 95.15 м2 в СВАО (БЦ "Pilot House"). - Фото 4
    Аренда офиса 95.15 м2 в СВАО (БЦ "Pilot House"). - Фото 5
    Аренда офиса 95.15 м2 в СВАО (БЦ "Pilot House"). - Фото 6
    Аренда офиса 95.15 м2 в СВАО (БЦ "Pilot House"). - Фото 7
    Аренда офиса 95.15 м2 в СВАО (БЦ "Pilot House"). - Фото 8
    Аренда офиса 95.15 м2 в СВАО (БЦ "Pilot House"). - Фото 9
    Аренда офиса 95.15 м2 в СВАО (БЦ "Pilot House"). - Фото 10
    Аренда офиса 95.15 м2 в СВАО (БЦ "Pilot House"). - Фото 11
    Аренда офиса 95.15 м2 в СВАО (БЦ "Pilot House"). - Фото 12
    Аренда офиса 95.15 м2 в СВАО (БЦ "Pilot House"). - Фото 13
    реализуемая площадь 95.2м², 3-й этаж, всего 4 этажа, открытая планировка

    Офис в аренду, площадью 95.15 кв.м, на 3 этаже 4-этажного бизнес-центра класса B в 15 мин. пешком от м.Владыкино, район Отрадное. Номер налоговой объекта - 15, предоставляется юридический адрес. Высота потолков: 3.5 м. Офис предоставляется в прямую аренду,...
    • 95.2 м²
    • B
    • 3/4 эт.
    • парковка
    114 200 Р /в месяц
    Агент
    +7 (933) Показать номер
    Посмотреть контакты

    Не нашли подходящего объявления?

    Оставьте заявку, и наши риэлторы подберут офис в районе Калининграда

    (0)