42 180 000 Р 525 800 $ или 458 600

Информация об помещении

1
Этаж

Состояние и оснащение

Количество этажей
1
Развернуть
Агент
+7 (911) 482-45-22
Начать чат с агентом

Помещение свободного назначения в Калининградская область, Калининград ...

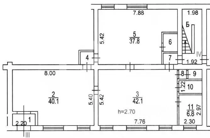
Арт.Продается коммерческое помещение в самом центре города Предлагаем вашему вниманию уникальное предложение — помещение площадью 140,6 кв.м, состоящее из двух отдельных зон: 75,2 кв.м и 65,4 кв.м. Оно расположено в самом сердце города, напротив ТЦ ПЛАЗА. В данный момент в помещении есть арендатор, что делает его отличным вариантом для инвестиций Преимущества:• Свежий косметический ремонт• 1 санузел• Охрана и видеонаблюдение для вашей безопасности• Пожарная сигнализация• Возможность подключения к интернет-провайдеру• Высокие потолки — 3,35 мНе упустите шанс разместить свой бизнес в удобном и престижном месте Звоните для получения дополнительной информации и организации просмотра.

Читать полностью
    Позвонить Написать
    42 180 000 Р525 800 $ или 458 600
    Агент
    +7 (911) 482-45-22
    Начать чат с агентом
    Похожие предложения
    Помещение свободного назначения в Калининградская область, Калининград ... - Фото 1
    Помещение свободного назначения в Калининградская область, Калининград ... - Фото 2
    Код объекта: 1036682.Продаётся двухэтажный дом в проходном месте на улице Старшины Дадаева. Здание общей площадью 210 кв. м. расположено на земельном участке площадью 6 соток. Удобно расположено с точки зрения бизнеса, благодаря постоянному автомобильному...
    • 1/2 эт.
    41 000 000 Р
    Агент
    +7 (981) Показать номер
    Посмотреть контакты
    Помещение свободного назначения в Калининградская область, Калининград ... - Фото 1
    Помещение свободного назначения в Калининградская область, Калининград ... - Фото 2
    Арт.Продаётся отдельно стоящее коммерческое строение в нежилом фонде. Общая площадь 1320 кв.м. ( 420 кв.м. офисное, 900 кв.м. складское ) площадь участка 18.19 сот., в аренде на 49 лет. Сделан косметический ремонт. Электричество есть, напряжение сети...
    • 1/2 эт.
    42 000 000 Р
    Агент
    +7 (911) Показать номер
    Посмотреть контакты
    Помещение свободного назначения в Москва Сигнальный 16 жилой комплекс, ... - Фото 1
    Помещение свободного назначения в Москва Сигнальный 16 жилой комплекс, ... - Фото 2
    В продаже помещение с обширной витринной группой Правильная прямоугольная форма помещения , все пространство используется максимально эффективно.В соседнем помещение подписана федеральная аптечная сеть, что является магнитом для притяжения бизнеса ...
    • 1/35 эт.
    42 400 000 Р
    Агент
    +7 (985) Показать номер
    Посмотреть контакты
    Продажа ПСН, Балашиха, Балашиха г. о., Чистопольская улица - Фото 1
    Продажа ПСН, Балашиха, Балашиха г. о., Чистопольская улица - Фото 2
    Продажа ПСН, Балашиха, Балашиха г. о., Чистопольская улица - Фото 3
    Продажа ПСН, Балашиха, Балашиха г. о., Чистопольская улица - Фото 4
    Продажа ПСН, Балашиха, Балашиха г. о., Чистопольская улица - Фото 5
    Продажа ПСН, Балашиха, Балашиха г. о., Чистопольская улица - Фото 6
    Продажа ПСН, Балашиха, Балашиха г. о., Чистопольская улица - Фото 7
    Продажа ПСН, Балашиха, Балашиха г. о., Чистопольская улица - Фото 8
    Продажа ПСН, Балашиха, Балашиха г. о., Чистопольская улица - Фото 9
    Продажа ПСН, Балашиха, Балашиха г. о., Чистопольская улица - Фото 10
    Продажа ПСН, Балашиха, Балашиха г. о., Чистопольская улица - Фото 11
    Продажа ПСН, Балашиха, Балашиха г. о., Чистопольская улица - Фото 12
    Продажа ПСН, Балашиха, Балашиха г. о., Чистопольская улица - Фото 13
    Продажа ПСН, Балашиха, Балашиха г. о., Чистопольская улица - Фото 14
    Продажа ПСН, Балашиха, Балашиха г. о., Чистопольская улица - Фото 15
    Продажа ПСН, Балашиха, Балашиха г. о., Чистопольская улица - Фото 16
    общая площадь 633.9м², полезная площадь 633.9м²

    . Нежилое помещение свободного назначения, этаж: 1, общая площадь 633,9 кв. м. Адрес: Московская область, г. Балашиха, ул. Чистопольская, д. 28.
    • 633.9 м²
    • 1/20 эт.
    42 270 700 Р
    PRO
    +7 (922) Показать номер
    Посмотреть контакты
    Помещение свободного назначения в Татарстан, Казань ул. Муштари, 2а ... - Фото 1
    Помещение свободного назначения в Татарстан, Казань ул. Муштари, 2а ... - Фото 2
    Продается помещение свободного назначения в ЖК премиум класса Вишневый Сад .Первый этаж на первой линии с отдельной входной группой отличная видимость и легкий доступ для клиентов/сотрудников. Хорошая площадь 119 кв.м. свобода планировки под любые...
    • 1/5 эт.
    43 000 000 Р
    Агент
    +7 (986) Показать номер
    Посмотреть контакты

    Не нашли подходящего объявления?

    Оставьте заявку, и наши риэлторы подберут псн в районе Калининграда

    (0)