45 000 000 Р 584 600 $ или 496 000

Состояние и оснащение

Количество этажей
2
Развернуть
Агент
+7 (911) 470-23-82
Начать чат с агентом

Помещение свободного назначения (457.5 м)

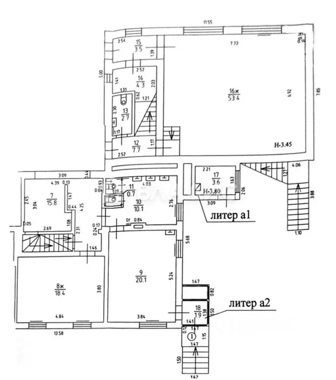
Код объекта: 2019841.Продам коммерческое помещение кабинетного типа в Центральном районе. В настоящее время работает, как лицензированное дошкольное учреждение (учебно-образовательный центр). Занимает 1/2 части дома с отдельным входом.Включает в себя два этажа, подвальное помещение и мансарду. Площадь основных помещений:1 этаж 53.4 / 10.1 / 20.1 / 18.4 / 15.8 кв.м2 этаж 54.2 / 19.4 / 20.5 / 9.5 кв.ммансарда 18.3 / 10.4 / 11.3 / 7.8 кв.м 3 санузла, учебные классы, кухня, актовый залОтопление автономное, водоснабжение и канализация центральные.Ухоженная, огороженная охраняемая территория с небольшим бассейном. Подойдет для продолжения работы детского сада или адаптации под клинику, студию, офис с залами. Звоните для организации просмотра.

Читать полностью
    Позвонить Написать
    45 000 000 Р584 600 $ или 496 000
    Агент
    +7 (911) 470-23-82
    Начать чат с агентом
    Похожие предложения
    Помещение свободного назначения в Калининградская область, Калининград ... - Фото 1
    Помещение свободного назначения в Калининградская область, Калининград ... - Фото 2
    Код объекта: 2019841.Продам коммерческое помещение кабинетного типа в Центральном районе.В настоящее время работает, как лицензированное дошкольное учреждение (учебно-образовательный центр).Занимает 1/2 части дома с отдельным входом.Включает в себя два...
    • 1/2 эт.
    45 000 000 Р
    Агент
    +7 (981) Показать номер
    Посмотреть контакты
    Помещение свободного назначения в Калининградская область, Калининград ... - Фото 1
    Помещение свободного назначения в Калининградская область, Калининград ... - Фото 2
    Арт.Предлагается к продаже одно из лучших инвестиционных предложений на рынке Калининграда — коммерческое помещение с готовым бизнесом и проверенными арендаторами. Это идеальный актив для пассивного дохода или диверсификации вашего портфеля.Ключевые...
    • 1/4 эт.
    45 900 000 Р
    Агент
    +7 (911) Показать номер
    Посмотреть контакты
    Помещение свободного назначения в Калининградская область, Калининград ... - Фото 1
    Помещение свободного назначения в Калининградская область, Калининград ... - Фото 2
    Арт.Продаётся Административное отдельно-стоящие здание с Земельным Участком (в собственности) на первой линии улицы Камской. В промышленном, индустриальномайоне города Калининград.Общая площадь здания 1391,7 м2 в трёх этажах, возможна надстройка ещё одного...
    • 1/3 эт.
    45 000 000 Р
    Агент
    +7 (911) Показать номер
    Посмотреть контакты
    Помещение свободного назначения в Калининградская область, Калининград ... - Фото 1
    Помещение свободного назначения в Калининградская область, Калининград ... - Фото 2
    Арт.Продается отдельно стоящее трехэтажное здание (третий этаж мансарда) с подвалом, расположенное в историческом центре Калининграда по ул. Больничная, д. 40. Общая площадь 222.5 м2. Земельный участок 582 м2.Здание предусмотрено под реконструкцию для...
    • 1/3 эт.
    45 000 000 Р
    Агент
    +7 (911) Показать номер
    Посмотреть контакты
    Помещение свободного назначения в Калининградская область, ... - Фото 1
    Помещение свободного назначения в Калининградская область, ... - Фото 2
    Арт.Идеальный вариант для Вашего бизнеса Коммерческое помещение расположено в городе-курорте Зеленоградск на ул. Бровцева 11а с пешеходным и автомобильным трафиком в большом жилом массиве.на высоком цокольном этаже семиэтажного жилого домаобщей площадью...
    • 1/7 эт.
    45 500 000 Р
    Агент
    +7 (911) Показать номер
    Посмотреть контакты

    Не нашли подходящего объявления?

    Оставьте заявку, и наши риэлторы подберут псн в районе Калининграда

    (0)