185 000 000 Р 2 376 900 $ или 2 043 400

Информация об помещении

1
Этаж

Состояние и оснащение

Количество этажей
6
Развернуть
Агент
+7 (981) 471-59-97
Начать чат с агентом

Помещение свободного назначения в Калининградская область, Калининград ...

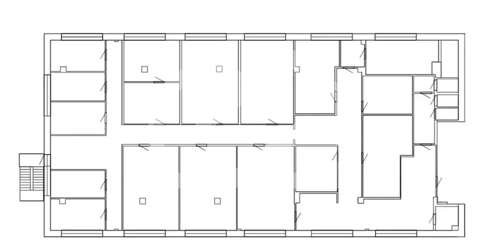
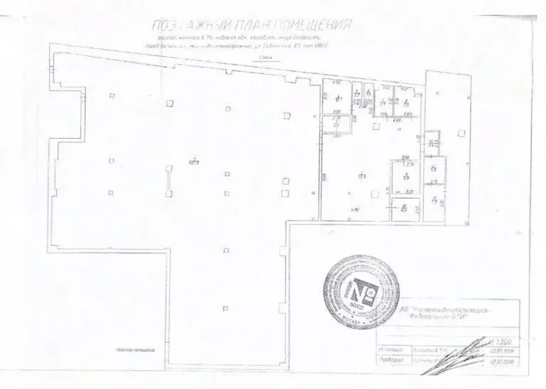
Код объекта: 1956960.Предлагаем к покупке готовый бизнес с окупаемостью 7 лет Вашему вниманию представляется лот в 5 уровнях в самом сердце города: Рыбная ДеревняЗдание является объектом культурного наследия и располагается по адресу: ул. Октябрьская 71. Общая квадратура: 795 м2 Данный адрес входит в САР Остров Октябрьский , что дает дополнительные преимущества по налогообложению бонусы для будущего владельца Объект представляет собой действующий коворкинг Bloks, сеть имеет 8 филиалов по всей России На данный момент заполняемость коворкинга составляет 95 и дает возможность дополнительно повысить доходность Зона коворкинга расположена на 1,2,3-х этажах и имеет общую экосистему и дизайн.2 и 3 этаж оснащены зоной отдыха, оборудованы кухнями, а также каждому арендатору по запросу предоставляется переговорная.Установлена сплит-система кондиционирования.Большая парковка на 40 мест.Первая линия, видовые кабинеты на Рыбную деревню и Третьяковскую галерею.Звоните для уточнения более подробной информации и более детального ознакомления с лотом Мы открыты к предложениям

Читать полностью
    Позвонить Написать
    185 000 000 Р2 376 900 $ или 2 043 400
    Агент
    +7 (981) 471-59-97
    Начать чат с агентом
    Похожие предложения
    Помещение свободного назначения в Калининградская область, Светлогорск ... - Фото 1
    Помещение свободного назначения в Калининградская область, Светлогорск ... - Фото 2
    Продается помещение свободного назначения площадью 214,7 кв.м на первом этаже в готовом (сданном) апарт-комплексе Promenade (Променад), входящем с состав гостинично-оздоровительно комплекса, включающего в себя отель международного класса, спа-комплекс,...
    • 1/5 эт.
    182 495 000 Р
    Агент
    +7 (911) Показать номер
    Посмотреть контакты
    Помещение свободного назначения в Калининградская область, Светлогорск ... - Фото 1
    Помещение свободного назначения в Калининградская область, Светлогорск ... - Фото 2
    Продается помещение свободного назначения площадью 223,5 кв.м на первом этаже в готовом (сданном) апарт-комплексе Promenade (Променад), входящем с состав гостинично-оздоровительно комплекса, включающего в себя отель международного класса, спа-комплекс,...
    • 1/5 эт.
    189 975 000 Р
    Агент
    +7 (911) Показать номер
    Посмотреть контакты
    Показ в удобное время. С АГЕНТАМИ РАБОТАЕМ. ПЛАТИМ ВОЗНАГРАЖДЕНИЕ. Здание расположено в центре автомобильного и пешеходного трафика на пересечении Кировской дамбы с ул. Несмелова. Здание стоит в отправной точке строящихся дублеров Горьковского шоссе от...
    • 1/2 эт.
    186 500 000 Р
    Агент
    +7 (933) Показать номер
    Посмотреть контакты
    Продается ПСН 7800 м2 - Фото 1
    Продается ПСН 7800 м2 - Фото 2
    Продается ПСН 7800 м2 - Фото 3
    Продается ПСН 7800 м2 - Фото 4
    Продается ПСН 7800 м2 - Фото 5
    Продается ПСН 7800 м2 - Фото 6
    Продается ПСН 7800 м2 - Фото 7
    Продается ПСН 7800 м2 - Фото 8
    Продается ПСН 7800 м2 - Фото 9
    Продается ПСН 7800 м2 - Фото 10
    полезная площадь 7800м²

    Предлагаем вашему вниманию производственно-складской комплекс по адресу: Московская область, г. о Коломна, пос. Заречный, Производственная территория. На шести ЗУ (находящихся в собственности владельца актива) общей площадью 74 455 м расположены 16...
    • 7 800 м²
    • 1/3 эт.
    180 000 000 Р
    Агент
    +7 (968) Показать номер
    Посмотреть контакты
    Продается здание 1810 м2 - Фото 1
    Продается здание 1810 м2 - Фото 2
    Продается здание 1810 м2 - Фото 3
    Продается здание 1810 м2 - Фото 4
    Продается здание 1810 м2 - Фото 5
    Продается здание 1810 м2 - Фото 6
    Продается здание 1810 м2 - Фото 7
    Продается здание 1810 м2 - Фото 8
    Продается здание 1810 м2 - Фото 9
    Продается здание 1810 м2 - Фото 10
    Продается здание 1810 м2 - Фото 11
    Продается здание 1810 м2 - Фото 12
    Продается здание 1810 м2 - Фото 13
    Продается здание 1810 м2 - Фото 14
    Продается здание 1810 м2 - Фото 15
    Продается здание 1810 м2 - Фото 16
    Продается здание 1810 м2 - Фото 17
    Продается здание 1810 м2 - Фото 18
    Продается здание 1810 м2 - Фото 19
    Продается здание 1810 м2 - Фото 20
    полезная площадь 1810м²

    Продается деловой центр "Успенский" общей площадью 1810 м2. на земельном участке 1276 м.кв. Объект и земля находятся в собственности. Этажей в здании 4, + мансардное и подвальное помещение, всего 60 помещений, все заняты арендаторами. МАП по запросу. Здание...
    • 1 810 м²
    • 4 этажа
    200 000 000 Р
    Агент
    +7 (923) Показать номер
    Посмотреть контакты

    Не нашли подходящего объявления?

    Оставьте заявку, и наши риэлторы подберут псн в районе Калининграда

    (0)