6 900 000 Р 87 180 $ или 75 130

Информация об помещении

цоколь
Этаж

Состояние и оснащение

Количество этажей
10
Развернуть
Агент
+7 (911) 473-73-26
Начать чат с агентом

Помещение свободного назначения в Калининградская область, Калининград ...

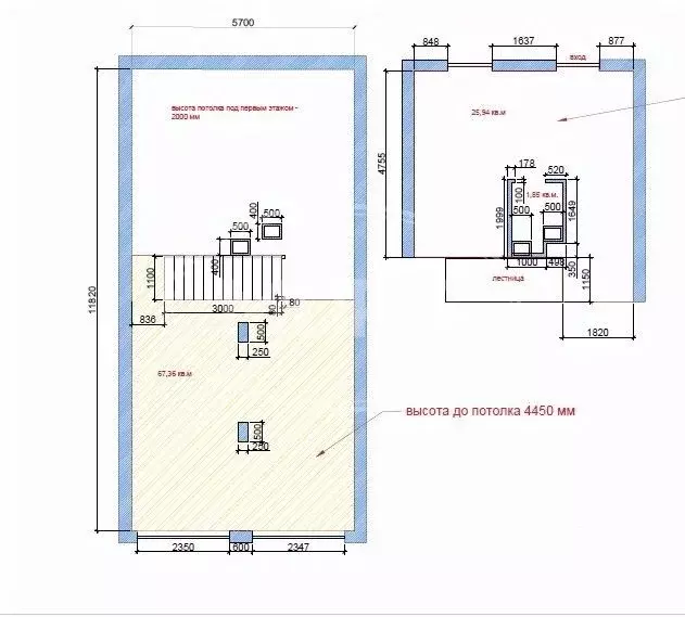
Арт.Предлагается к продаже коммерческое нежилое помещение свободного назначения площадью 243 кв.м. по ул. Интернациональной в Московском районе гор. Калининграда. Помещение расположено в подвальном этаже многоквартирного жилого дома переменной этажности, с максимальной этажностью 10 этажей, имеет изолированный вход и центральные коммуникации.Характеристики нежилого помещения: Высота потолков - 2,85 м.Объект недвижимости включает 5 помещений - 47,4 кв.м., 29,7 кв.м., 59,1 кв.м., 59,6 кв.м., 47,2 кв.м. Электроснабжение 15 кВт;Центральное отопление; Центральное водоснабжение и водоотведение. На благоустроенной территории здания предусмотрены открытые гостевые парковочные места. Имеется круглосуточный доступ в помещение. Объект находится в оживленном квартале новостроек, уже введенных в эксплуатацию и заселенных. Хорошая транспортная доступность, высокий автомобильный и пешеходный трафик, остановки общественного транспорта. Рядом находятся МАОУ СОШ 46 с углубленным изучением отдельных предметов и МАДОУ ЦРР д/с 114. Подходит под ипотеку. Предлагаемое помещение позволит вашему бизнесу оказаться в локации с высоким спросом на различные виды потребительских услуг и предоставит новые возможности в его развитии Готовы ответить на любые вопросы и обсудить условия приобретения объекта.Также к Вашим услугам полное юридическое сопровождение при проведении сделки и осуществлении расчетов.

Читать полностью
    Позвонить Написать
    6 900 000 Р87 180 $ или 75 130
    Агент
    +7 (911) 473-73-26
    Начать чат с агентом
    Похожие предложения
    Помещение свободного назначения в Калининградская область, Калининград ... - Фото 1
    Помещение свободного назначения в Калининградская область, Калининград ... - Фото 2
    Код объекта: 1840465.Предлагаем к покупке двухуровневое коммерческое помещение в ЖК Риттерхоф Большие окна делают помещение максимально светлы,а два уровня позволят вам использовать площадь максимально полезно для ваших целей.Идеально подойдет как в...
    • 1/8 эт.
    6 800 000 Р
    Агент
    +7 (981) Показать номер
    Посмотреть контакты
    Помещение свободного назначения в Калининградская область, Калининград ... - Фото 1
    Помещение свободного назначения в Калининградская область, Калининград ... - Фото 2
    Арт.Продается помещение свободного назначения площадью 29,2 м2, в отдельно стоящем здании небольшого торгового центра, расположенного на первой линии одной из главных магистралей города - Московском проспекте, в пяти минутах от делового центра. Отличная...
    • 1/1 эт.
    6 800 000 Р
    Агент
    +7 (911) Показать номер
    Посмотреть контакты
    Помещение свободного назначения в Калининградская область, Пионерский ... - Фото 1
    Помещение свободного назначения в Калининградская область, Пионерский ... - Фото 2
    Код объекта: 1976058.УНИКАЛЬНОЕ ПРЕДЛОЖЕНИЕ ПРОДАЮТСЯ АППАРТАМЕНТЫ На 1 этаже. Отдельный вход с улицы Можно использовать как офис, студию, парикмахерскую и для других коммерческих целей А можно переделать в жилую квартиру с пропиской...
    • 1/9 эт.
    6 800 000 Р
    Агент
    +7 (981) Показать номер
    Посмотреть контакты
    Продажа ПСН, Казань, ул. Коллективная - Фото 1
    Продажа ПСН, Казань, ул. Коллективная - Фото 2
    Продажа ПСН, Казань, ул. Коллективная - Фото 3
    Продажа ПСН, Казань, ул. Коллективная - Фото 4
    общая площадь 105м², полезная площадь 105м²

    Объект №54322 Отличное месторасположение.Ново-Савиновский район, ул. Коллективная 27. Продается помещение общей площадью 105 кв.м, в подвале 5 этажного кирпичного дома, со своей входной группой. Комнаты 62 кв.м, 16.6 кв.м, 13.6 кв.м,6 кв.м. Имеется санузел,...
    • 105 м²
    • -1-й эт.
    7 000 000 Р
    Агент
    +7 (843) Показать номер
    Агентство
    ФЛЭТ
    Посмотреть контакты
    Помещение свободного назначения в Краснодарский край, Краснодар ул. ... - Фото 1
    Помещение свободного назначения в Краснодарский край, Краснодар ул. ... - Фото 2
    Арт.Помещение в новом ЖК ДыханиеСобственник. Без комиссии.Площадь: 45,4 м2- Отдельный вход- Высота потолка 3,35 м- Коммуникации центральные- Санузел- Напротив сквер и прогулочная зона- Электричество 10 кВтЗвоните, организую показ.
    • 1/16 эт.
    6 900 000 Р
    Агент
    +7 (989) Показать номер
    Посмотреть контакты

    Не нашли подходящего объявления?

    Оставьте заявку, и наши риэлторы подберут псн в районе Калининграда

    (0)