358 000 000 Р 4 664 400 $ или 3 965 300

Информация о помещении и здании

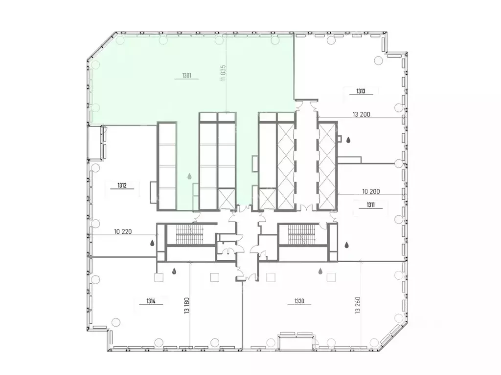
подвал
Этаж
5
Этажность
Развернуть
Агент
+7 (911) 473-73-26
Начать чат с агентом

Офис в Калининградская область, Калининград ул. Богдана Хмельницкого, ...

Арт.Предлагается к продаже незавершенный строительством объект - административное здание общей площадью 4644,3 м2. Объект находится в центральной части города Калининграда. Отличная транспортная доступность, высокий автомобильный трафик, остановки общественного транспорта позволяют легко и быстро добраться до места расположения объекта из любой части города. Поблизости расположены Южный железнодорожный вокзал, рекреационные объекты, а также объекты туристической и спортивной инфраструктуры, архитектурные достопримечательности.На здание, в виде объекта незавершенного строительством, зарегистрировано право собственности. Степень готовности объекта - 85 . Этажность здания - 5 надземных и 2 подземных этажа. Установлено два скоростных лифта грузоподъемностью 1125 кг. Все инженерные сети к зданию подведены, технологическое подключение оплачено. Назначение объекта может быть реализовано в зависимости от потребностей потенциального покупателя - для размещение государственных и муниципальных служб и организаций, офисов коммерческих предприятий, в т.ч. страховых, финансовых компаний и банков, под медицинские и образовательные услуги, услуги гостиничного сектора (HoReCa) и пр. Предлагаемое решение позволит вашему бизнесу оказаться в самом центре городской деловой и культурной жизни и предоставит новые возможности в его развитии Готовы ответить на любые вопросы и обсудить условия приобретения объекта. Также к Вашим услугам полное юридическое сопровождение при проведении сделки и осуществлении расчетов.

Читать полностью
    Позвонить Написать
    358 000 000 Р4 664 400 $ или 3 965 300
    Агент
    +7 (911) 473-73-26
    Начать чат с агентом
    Похожие предложения
    Офис (1189 м) - Фото 1
    Офис (1189 м) - Фото 2
    2-й этаж, всего 9 этажей

    Продажа офиса в БЦ Святогор II. Класс В+ЦАО, район Замоскворечье.2-й этаж, площадь - 1189 кв.м. Планировка смешанная, все офисы - с полностью выполненной внутренней отделкой.По состоянию на I квартал 2025 года офисы сданы в аренду нескольким арендаторам...
    • 2/9 эт.
    368 590 016 Р
    Агент
    +7 (966) Показать номер
    Посмотреть контакты
    Продажа офиса, м. Тульская, Холодильный пер. - Фото 1
    Продажа офиса, м. Тульская, Холодильный пер. - Фото 2
    Продажа офиса, м. Тульская, Холодильный пер. - Фото 3
    Продажа офиса, м. Тульская, Холодильный пер. - Фото 4
    Продажа офиса, м. Тульская, Холодильный пер. - Фото 5
    Продажа офиса, м. Тульская, Холодильный пер. - Фото 6
    Продажа офиса, м. Тульская, Холодильный пер. - Фото 7
    Продажа офиса, м. Тульская, Холодильный пер. - Фото 8
    Продажа офиса, м. Тульская, Холодильный пер. - Фото 9
    общая площадь офисного здания 757.1м², реализуемая площадь 757.1м², 9-й этаж, всего 13 этажей

    Продажа офиса в новом БЦ класса А, в 5 минутах пешком от м.Тульская. Площадь офиса 757,1 м2. Офис занимает половину 9-го этажа новой Башни Рябов на территории Товарищества Рябовской мануфактуры (на плане этажа - блок БР 9-2-2). Планировка свободная. Высота...
    • 757.1 м²
    • 9/13 эт.
    363 408 000 Р
    Агент
    +7 (903) Показать номер
    Посмотреть контакты
    м Цветной Бульвар, ул Трубная, 1172 м2, Здание (ном. объекта: 8071) - Фото 1
    м Цветной Бульвар, ул Трубная, 1172 м2, Здание (ном. объекта: 8071) - Фото 2
    м Цветной Бульвар, ул Трубная, 1172 м2, Здание (ном. объекта: 8071) - Фото 3
    м Цветной Бульвар, ул Трубная, 1172 м2, Здание (ном. объекта: 8071) - Фото 4
    м Цветной Бульвар, ул Трубная, 1172 м2, Здание (ном. объекта: 8071) - Фото 5
    м Цветной Бульвар, ул Трубная, 1172 м2, Здание (ном. объекта: 8071) - Фото 6
    м Цветной Бульвар, ул Трубная, 1172 м2, Здание (ном. объекта: 8071) - Фото 7
    м Цветной Бульвар, ул Трубная, 1172 м2, Здание (ном. объекта: 8071) - Фото 8
    м Цветной Бульвар, ул Трубная, 1172 м2, Здание (ном. объекта: 8071) - Фото 9
    м Цветной Бульвар, ул Трубная, 1172 м2, Здание (ном. объекта: 8071) - Фото 10
    общая площадь офисного здания 1172м², реализуемая площадь 1172м², 4-й этаж, всего 4 этажа

    Здание 1172 масположенное в 5 минутах от станции метро Цветной Бульвар. Центральные коммуникации, кирпичные стены,жб перекрытия, 4 этажа, потолки 4 метра, 40 квт электрической мощности. Земельный участок 3.6 сотки в собственности, продается отдельно(исходя...
    • 1 172 м²
    • 4/4 эт.
    350 000 000 Р
    Агент
    +7 (968) Показать номер
    Агентство
    Телус
    Посмотреть контакты
    м. Алексеевская, Графский переулок, 2600м2 "Продажа здания" (ном. ... - Фото 1
    м. Алексеевская, Графский переулок, 2600м2 "Продажа здания" (ном. ... - Фото 2
    м. Алексеевская, Графский переулок, 2600м2 "Продажа здания" (ном. ... - Фото 3
    м. Алексеевская, Графский переулок, 2600м2 "Продажа здания" (ном. ... - Фото 4
    м. Алексеевская, Графский переулок, 2600м2 "Продажа здания" (ном. ... - Фото 5
    общая площадь офисного здания 2608м², реализуемая площадь 2608м², 3-й этаж, всего 3 этажа

    Свободная планировка. Кондиционирование. Приточно-вытяжная вентиляция. Пожарная сигнализация. Охрана, система контроля доступа.Видеонаблюдение по периметру. Паркинг. Оптико-волоконная связь Объект №.
    • 2 608 м²
    • 3/3 эт.
    370 000 000 Р
    Агент
    +7 (926) Показать номер
    Агентство
    Телус
    Посмотреть контакты
    м. Аннино, Кирпичные выемки, БЦ Южные ворота. АБ (ном. объекта: 405) - Фото 1
    м. Аннино, Кирпичные выемки, БЦ Южные ворота. АБ (ном. объекта: 405) - Фото 2
    м. Аннино, Кирпичные выемки, БЦ Южные ворота. АБ (ном. объекта: 405) - Фото 3
    м. Аннино, Кирпичные выемки, БЦ Южные ворота. АБ (ном. объекта: 405) - Фото 4
    м. Аннино, Кирпичные выемки, БЦ Южные ворота. АБ (ном. объекта: 405) - Фото 5
    м. Аннино, Кирпичные выемки, БЦ Южные ворота. АБ (ном. объекта: 405) - Фото 6
    м. Аннино, Кирпичные выемки, БЦ Южные ворота. АБ (ном. объекта: 405) - Фото 7
    м. Аннино, Кирпичные выемки, БЦ Южные ворота. АБ (ном. объекта: 405) - Фото 8
    м. Аннино, Кирпичные выемки, БЦ Южные ворота. АБ (ном. объекта: 405) - Фото 9
    м. Аннино, Кирпичные выемки, БЦ Южные ворота. АБ (ном. объекта: 405) - Фото 10
    м. Аннино, Кирпичные выемки, БЦ Южные ворота. АБ (ном. объекта: 405) - Фото 11
    м. Аннино, Кирпичные выемки, БЦ Южные ворота. АБ (ном. объекта: 405) - Фото 12
    м. Аннино, Кирпичные выемки, БЦ Южные ворота. АБ (ном. объекта: 405) - Фото 13
    м. Аннино, Кирпичные выемки, БЦ Южные ворота. АБ (ном. объекта: 405) - Фото 14
    м. Аннино, Кирпичные выемки, БЦ Южные ворота. АБ (ном. объекта: 405) - Фото 15
    м. Аннино, Кирпичные выемки, БЦ Южные ворота. АБ (ном. объекта: 405) - Фото 16
    общая площадь офисного здания 2200м², реализуемая площадь 2200м², всего 5 этажей

    -1 этаж в Бизнес центре. по документам 2200 м. Фактически 2700м2 Высота потолков 8 метров. Мап . Договор 5 лет с индексацией 10%. Открытая планировка. . Центральные коммуникации.Коммунальные платежи оплачивает арендатор. продажа из расчета окупаемость...
    • 2 200 м²
    • 5 этажей
    350 000 000 Р
    Агент
    +7 (965) Показать номер
    Агентство
    Телус
    Посмотреть контакты

    Не нашли подходящего объявления?

    Оставьте заявку, и наши риэлторы подберут офис в районе Калининграда

    (0)