6 100 000 Р 77 620 $ или 65 720

Информация о квартире

46 м2
Площадь
17 м2
Жилая
11 м2
Кухня
1
Комната
24
Этаж
25
Этажность

Дополнительная информация

Тип дома
кирпичный
Развернуть
Агент
+7 (911) 491-14-57
Начать чат с агентом

1-к кв. Калининградская область, Калининград ул. Гайдара, 90 (46.97 м)

Продаётся 1 комнатная квартира, расположенная на 24-м этаже 25-ти этажного монолитно-кирпичного дома в ЖК Калининград-Сити . Дом сдан. ЖК расположен на пересечении улиц Генерала Челнокова и Гайдара.Ориентиры: ул. Панина, Челнокова, Гайдара, Советский проспект, ул. Елизаветинская.Подъезды оборудованы высококачественными грузопассажирскими лифтами, добраться до своей квартиры можно будет с помощью трёх скоростных лифтов фирмы KONE.Огороженная территория. Благоустройство прилегающей территории включает в себя организацию детских и спортивных площадок, зоны отдыха и озеленение.Предусмотрены открытые гостевые автомобильные стоянки и подземный паркинг.Квартира светлая, объемные стеклопакеты, просторные помещения.В ЖК будет действовать пониженный тариф на электроэнергию, дома оборудованы собственными котельными - автономное отопление с возможностью индивидуальной регулировки температуры без котла в самой квартире Счетчики на всё, высококачественная предчистовая отделка.Красивые дизайнерские входные группы.Жилой комплекс Калининград Сити это идеальное сочетание окружения развитого района и удобной внутренней инфраструктуры, инновационных технических решений и уютной атмосферы своего дома.Этот район имеет богатую и постоянно развивающуюся инфраструктуру. Удобное расположение: 5 минут до центра города, 2 минуты до ТРЦ Экватор и кинотеатра, 10 минут до железнодорожной станции Сельма , 600 метров до школы 40.Хорошая транспортная доступность - остановки рядом. Пригородные поезда способны доставить вас как в Калининград, так и в приморские курортные города (Зеленоградск, Светлогорск, Пионерский).Помимо этого ЖК расположен по соседству с Советским проспектом. Новый мост, ведущий с Сельмы на Советский проспект, делает путь до любой другой части города максимально коротким.До центра города - 10 минут До моря 25 мин Звоните Код пользователя: 128062Номер в базе: 7422374

Читать полностью

    Для того, чтобы купить однокомнатную квартиру по адресу: Калининград, Ленинградский, ул. Гайдара, 90, позвоните по телефону +7 (911) 491-14-57. Торопитесь! Объявление №30091167050 о продаже однокомнатной квартиры опубликовано 12 декабря 2025.

    Позвонить Написать
    6 100 000 Р77 620 $ или 65 720
    Агент
    +7 (911) 491-14-57
    Начать чат с агентом
    Похожие предложения
    1-к кв. Калининградская область, Калининград ул. Гайдара, 90 (45.4 м) - Фото 1
    1-к кв. Калининградская область, Калининград ул. Гайдара, 90 (45.4 м) - Фото 2
    1-комнатная квартира, общая площадь 45м², жилая 15м², кухня 11м²

    Подойдя к окну перед вами расстилается панорама города, утопающего в зелени парков и сверкающего огнями вечерних улиц. Глядя вдаль, вы видите бескрайнее небо, постепенно окрашивающееся в золотистые оттенки заката. Солнце медленно опускается за горизонт,...
    • 45 м²
    • 1-ком
    • 17/25 эт.
    6 200 000 Р
    Агент
    +7 (911) Показать номер
    Посмотреть контакты
    1-к кв. Калининградская область, Калининград ул. Гайдара, 90 (48.3 м) - Фото 1
    1-к кв. Калининградская область, Калининград ул. Гайдара, 90 (48.3 м) - Фото 2
    1-комнатная квартира, общая площадь 48м², жилая 17м², кухня 12м²

    Kaлинингpaд, Ленинградский район, мкр-н Cельмa, ул. Гайдаpa, д.90В ЖК Калининград сити продается видовая квартира на 20-ом этаже AВTOHОМHOЕ oтoплениe. Oбщая плoщaдь - 48,3 кв.м. Кваpтиpа oтличаетcя пpодуманной плaниpовкой. Вас встречает вместительная...
    • 48 м²
    • 1-ком
    • 20/25 эт.
    6 199 000 Р
    Агент
    +7 (981) Показать номер
    Посмотреть контакты
    1-к кв. Калининградская область, Калининград ул. Гайдара, 175 (38.0 м) - Фото 1
    1-к кв. Калининградская область, Калининград ул. Гайдара, 175 (38.0 м) - Фото 2
    1-комнатная квартира, общая площадь 38м², жилая 15м², кухня 13м²

    Продам однокомнатную квартиру АВТОНОМНОЕ ОТОПЛЕНИЕТёплый пол на кухне и в с/у.ул. Гайдара, 175 (рядом ул. Горького, ул. Озёрная, ул. Зелёная, ул. Островского) Въезд на территорию двора открывается с помощью пультаЛенинградский районДом 2006 г. п., кирпичныйРядом...
    • 38 м²
    • 1-ком
    • 8/9 эт.
    6 150 000 Р
    Агент
    +7 (911) Показать номер
    Посмотреть контакты
    1-к кв. Калининградская область, Калининград Балашовская ул., 4 (48.0 ... - Фото 1
    1-к кв. Калининградская область, Калининград Балашовская ул., 4 (48.0 ... - Фото 2
    1-комнатная квартира, общая площадь 48м², жилая 21м², кухня 12м²

    Калининград, р-н Ленинградский, Балашовская ул., 4Предлагается к покупке просторная однокомнатная квартира в кирпичном доме. Самая доступная квартира в квартале за квадратный метр Общая площадь - 48 кв.м. Выполнен ремонт с использованием качественных...
    • 48 м²
    • 1-ком
    • 8/8 эт.
    6 100 000 Р
    Агент
    +7 (981) Показать номер
    Посмотреть контакты
    2-к кв. Калининградская область, Калининград Артиллерийская ул., 10 ... - Фото 1
    2-к кв. Калининградская область, Калининград Артиллерийская ул., 10 ... - Фото 2
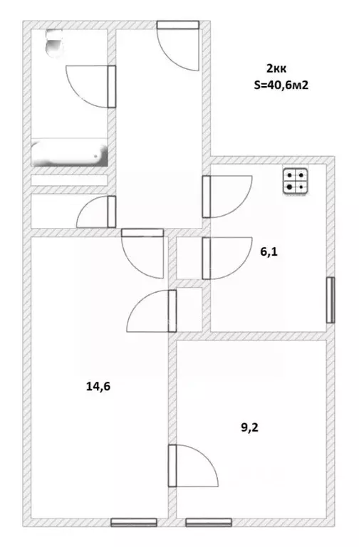
    2-комнатная квартира, общая площадь 40м², жилая 23м², кухня 6м²

    Представляем вашему вниманию уютную, светлую двухкомнатную квартиру, расположенную в Ленинградском районе, на ул. Артиллерийская, находящаяся на 3 этаже 3-этажного кирпичного немецкого дома, построенного в 1945 году.Общая площадь квартиры 40,6 кв.м, включающая...
    • 40 м²
    • 2-ком
    • 3/3 эт.
    • кирпичный
    6 000 000 Р
    Агент
    +7 (911) Показать номер
    Посмотреть контакты

    Не нашли подходящего объявления?

    Оставьте заявку, и наши риэлторы подберут квартиру в районе Калининграда

    (0)