8 136 167 Р 103 500 $ или 88 920

Информация о квартире

34 м2
Площадь
15 м2
Жилая
студия
Комнат
7
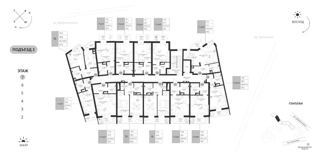
Этаж
7
Этажность
Развернуть
Агент
+7 (966) 267-96-42
Начать чат с агентом

Студия Калининградская область, Калининград просп. Калинина, 117 (34.9 ...

Акция Черная пятница Х8 .Цена действует только при 100 оплате (в т.ч. при ипотеке без субсидирования) или рассрочке до 6 месяцев при первоначальном взносе от 50 . Срок действия акции: 08.11.25-07.12.25. в данный период необходимо произвести оплату, не является публичной офертой, предложение ограничено. Акция не суммируется ни с какими другими акциями на сайте.Жилой комплекс бизнес-класса в самом центре города со СПА-комплексом, круглогодичным подогреваемым бассейном и собственной управляющей компанией. Комплекс окружен городскими достопримечательностями:- Южный парк- набережная Рыбной деревни- остров Канта, - филиалы Третьяковской галереи и Большого театра- музей Фридландские ворота.Архитектура подчеркивает историческое наследие локации. Комбинированный фасад с элементами балтийского стиля в современном воплощении.Закрытая территория, двор-сад, арт-объекты и вертикальное озеленение. Комьюнити-центр, фитнес-клуб, своя поликлиника.Подходит как для комфортной жизни в центре города с природой, особенной средой и тишиной, так и для инвестиций: каждый метр работает на капитализацию.Комплекс состоит из 2-х 7-этажных домов: 126 квартир и 298 квартир На 1-м этаже располагаются коммерческие помещения. Подземный паркинг рассчитан на 105 машиномест. Квартиры предлагаются в отделке white box.Квартира в ЖК Фридланд 2 очередь - надежная гавань Ваших сбережений. Квартира приобретается по договору долевого участия с эскроу счетом. Возможна оплата и с использованием ипотеки или 100 оплатой за счёт собственных средств. Звоните, с радостью проведем консультацию в удобное для Вас время Акция не суммируется ни с какими другими акциями на сайте. Все акции, кроме Черной пятницы , Спец.цена на данный лот , К8 дарит подаркиассчитываются от базовой стоимости.Застройщик ООО СЗ СпецСтрой , проектная декларация размещена на сайте .

Читать полностью
    Позвонить Написать
    8 136 167 Р103 500 $ или 88 920
    Агент
    +7 (966) 267-96-42
    Начать чат с агентом
    Похожие предложения
    Студия Калининградская область, Калининград просп. Калинина, 117 (34.7 ... - Фото 1
    Студия Калининградская область, Калининград просп. Калинина, 117 (34.7 ... - Фото 2
    студия, общая площадь 34м², жилая 15м²

    Акция Черная пятница Х8 .Цена действует только при 100 оплате (в т.ч. при ипотеке без субсидирования) или рассрочке до 6 месяцев при первоначальном взносе от 50 . Срок действия акции: 08.11.25-07.12.25. в данный период необходимо произвести оплату,...
    • 34 м²
    • студия-ком
    • 7/7 эт.
    8 089 542 Р
    Агент
    +7 (966) Показать номер
    Посмотреть контакты
    Студия Калининградская область, Калининград просп. Калинина, 117 (34.8 ... - Фото 1
    Студия Калининградская область, Калининград просп. Калинина, 117 (34.8 ... - Фото 2
    студия, общая площадь 34м², жилая 15м²

    Акция Черная пятница Х8 .Цена действует только при 100 оплате (в т.ч. при ипотеке без субсидирования) или рассрочке до 6 месяцев при первоначальном взносе от 50 . Срок действия акции: 08.11.25-07.12.25. в данный период необходимо произвести оплату,...
    • 34 м²
    • студия-ком
    • 6/7 эт.
    8 032 466 Р
    Агент
    +7 (966) Показать номер
    Посмотреть контакты
    Студия Калининградская область, Калининград просп. Калинина, 117 (35.1 ... - Фото 1
    Студия Калининградская область, Калининград просп. Калинина, 117 (35.1 ... - Фото 2
    студия, общая площадь 35м², жилая 15м²

    Акция Черная пятница Х8 .Цена действует только при 100 оплате (в т.ч. при ипотеке без субсидирования) или рассрочке до 6 месяцев при первоначальном взносе от 50 . Срок действия акции: 08.11.25-07.12.25. в данный период необходимо произвести оплату,...
    • 35 м²
    • студия-ком
    • 6/7 эт.
    8 101 712 Р
    Агент
    +7 (966) Показать номер
    Посмотреть контакты
    Студия Калининградская область, Калининград просп. Калинина, 117 (35.1 ... - Фото 1
    Студия Калининградская область, Калининград просп. Калинина, 117 (35.1 ... - Фото 2
    студия, общая площадь 35м², жилая 15м²

    Акция Черная пятница Х8 .Цена действует только при 100 оплате (в т.ч. при ипотеке без субсидирования) или рассрочке до 6 месяцев при первоначальном взносе от 50 . Срок действия акции: 08.11.25-07.12.25. в данный период необходимо произвести оплату,...
    • 35 м²
    • студия-ком
    • 5/7 эт.
    8 021 649 Р
    Агент
    +7 (966) Показать номер
    Посмотреть контакты
    2-к кв. Калининградская область, Калининград Суздальская ул. (62.36 м) - Фото 1
    2-к кв. Калининградская область, Калининград Суздальская ул. (62.36 м) - Фото 2
    2-комнатная квартира, общая площадь 62м²

    Продаётся 2-комнатная квартира в строящемся доме (Дом 3 (2 этап)), срок сдачи: IV-кв. 2025, общей площадью 62.36 кв.м., на 8 этаже. Новый жилой комплекс Суздальский-3 от Группы компаний Модуль-Стройградасположен в Ленинградском районе Калининграда...
    • 62 м²
    • 2-ком
    • 8/9 эт.
    • кирпичный
    8 102 440 Р
    Агент
    +7 (901) Показать номер
    Посмотреть контакты

    Не нашли подходящего объявления?

    Оставьте заявку, и наши риэлторы подберут квартиру в новостройке в районе Калининграда

    (0)