5 058 585 Р 62 660 $ или 54 630

Информация о квартире

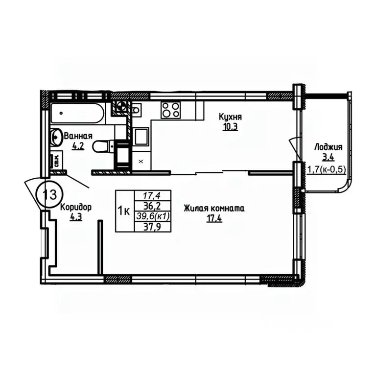
37 м2
Площадь
17 м2
Жилая
10 м2
Кухня
1
Комната
3
Этаж
9
Этажность
Развернуть
Агент
+7 (901) 939-89-27
Начать чат с агентом

1-к кв. Калининградская область, Калининград Теодор Кроне жилой ...

Теодор Кроне — современный жилой квартал комфорт+ класса в самом сердце Центрального района.Здесь всё продумано для тех, кто ценит качество, эстетику и полноценную жизнь рядом со всем необходимым.Удобный выезд на основные транспортные развязки — вы быстро доберётесь в любую точку города.Главная особенность новых очередей ЖК Теодор Кроне — уникальная концепция комьюнити-центра, объединяющего 99 повседневных сервисов прямо в пределах жилого квартала.Экосистема заботы, удобства и общения.На территории комплекса:- СПА-центр и фитнес-зал- Современный коворкинг- Кафе-пекарня и магазин у дома- Поликлиника и аптека- Детский клуб и бьюти-салон- Прачечная и пункт химчистки- Управляющая компания с дополнительными сервисами: прокат, домашний мастер, клининг.Жить в Теодор Кроне — значит тратить меньше времени на быт и больше на себя.Природа и уют в шаге от дома.Благоустроенная территория с набережной и собственным озером, прогулочными и велосипедными маршрутами, детскими площадками и уютным парком Теодор Кроне создаёт атмосферу отдыха и вдохновения каждый день.Качество и стиль.- Предчистовая отделка White Box — чтобы вы могли реализовать свой дизайн без лишних хлопот.- Дизайнерские входные группы и лобби.- Квартиры по ДДУ, ФЗ 21.- Оплата: ипотека, рассрочка от застройщика или 100 оплата.Звоните — покажем квартиру и проведём консультацию в удобное для вас время Застройщик: ООО СЗ Эко-Город .Проектная декларация размещена на сайте Предложение ограничено. Цена действительна до 01.12.25 или до её отмены застройщиком.

Читать полностью
    Позвонить Написать
    5 058 585 Р62 660 $ или 54 630
    Агент
    +7 (901) 939-89-27
    Начать чат с агентом
    Похожие предложения в Калининграде
    1-к кв. Калининградская область, Калининград Теодор Кроне жилой ... - Фото 1
    1-к кв. Калининградская область, Калининград Теодор Кроне жилой ... - Фото 2
    1-комнатная квартира, общая площадь 37м², жилая 17м², кухня 10м²

    Теодор Кроне — современный жилой квартал комфорт+ класса в самом сердце Центрального района.Здесь всё продумано для тех, кто ценит качество, эстетику и полноценную жизнь рядом со всем необходимым.Удобный выезд на основные транспортные развязки — вы быстро...
    • 37 м²
    • 1-ком
    • 5/9 эт.
    5 096 763 Р
    Агент
    +7 (901) Показать номер
    Посмотреть контакты
    1-к кв. Калининградская область, Калининград Теодор Кроне жилой ... - Фото 1
    1-к кв. Калининградская область, Калининград Теодор Кроне жилой ... - Фото 2
    1-комнатная квартира, общая площадь 37м², жилая 17м², кухня 10м²

    Теодор Кроне — современный жилой квартал комфорт+ класса в самом сердце Центрального района.Здесь всё продумано для тех, кто ценит качество, эстетику и полноценную жизнь рядом со всем необходимым.Удобный выезд на основные транспортные развязки — вы быстро...
    • 37 м²
    • 1-ком
    • 5/9 эт.
    5 110 247 Р
    Агент
    +7 (901) Показать номер
    Посмотреть контакты
    1-к кв. Калининградская область, Калининград Теодор Кроне жилой ... - Фото 1
    1-к кв. Калининградская область, Калининград Теодор Кроне жилой ... - Фото 2
    1-комнатная квартира, общая площадь 38м², жилая 17м², кухня 10м²

    Теодор Кроне — современный жилой квартал комфорт+ класса в самом сердце Центрального района.Здесь всё продумано для тех, кто ценит качество, эстетику и полноценную жизнь рядом со всем необходимым.Удобный выезд на основные транспортные развязки — вы быстро...
    • 38 м²
    • 1-ком
    • 1/9 эт.
    5 092 824 Р
    Агент
    +7 (901) Показать номер
    Посмотреть контакты
    1-к кв. Калининградская область, Калининград Теодор Кроне жилой ... - Фото 1
    1-к кв. Калининградская область, Калининград Теодор Кроне жилой ... - Фото 2
    1-комнатная квартира, общая площадь 38м², жилая 17м², кухня 10м²

    Теодор Кроне — современный жилой квартал комфорт+ класса в самом сердце Центрального района.Здесь всё продумано для тех, кто ценит качество, эстетику и полноценную жизнь рядом со всем необходимым.Удобный выезд на основные транспортные развязки — вы быстро...
    • 38 м²
    • 1-ком
    • 1/9 эт.
    5 092 824 Р
    Агент
    +7 (901) Показать номер
    Посмотреть контакты
    1-к кв. Калининградская область, Калининград Теодор Кроне жилой ... - Фото 1
    1-к кв. Калининградская область, Калининград Теодор Кроне жилой ... - Фото 2
    1-комнатная квартира, общая площадь 37м², жилая 17м², кухня 10м²

    Теодор Кроне — современный жилой квартал комфорт+ класса в самом сердце Центрального района.Здесь всё продумано для тех, кто ценит качество, эстетику и полноценную жизнь рядом со всем необходимым.Удобный выезд на основные транспортные развязки — вы быстро...
    • 37 м²
    • 1-ком
    • 3/9 эт.
    5 071 968 Р
    Агент
    +7 (901) Показать номер
    Посмотреть контакты

    Не нашли подходящего объявления?

    Оставьте заявку, и наши риэлторы подберут квартиру в новостройке в районе Калининграда

    (0)