6 696 300 Р 82 290 $ или 71 420

Информация о квартире

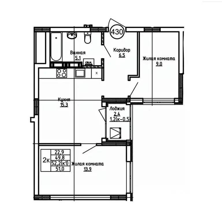
51 м2
Площадь
22 м2
Жилая
2
Комнаты
6
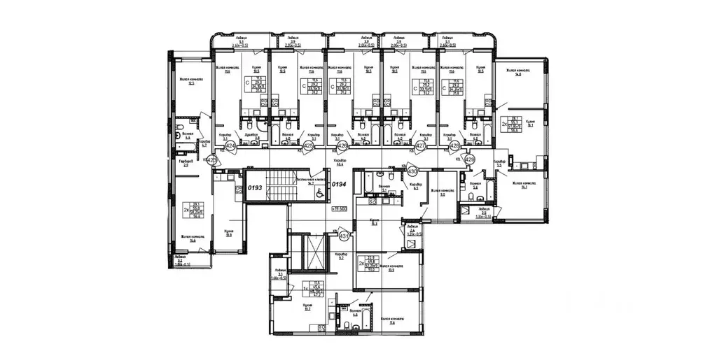
Этаж
9
Этажность
Развернуть
Агент
+7 (901) 939-89-27
Начать чат с агентом

2-к кв. Калининградская область, Калининград ул. 1-я Большая окружная ...

Теодор Кроне — современный жилой квартал комфорт+ класса в самом сердце Центрального района.Здесь всё продумано для тех, кто ценит качество, эстетику и полноценную жизнь рядом со всем необходимым.Удобный выезд на основные транспортные развязки — вы быстро доберётесь в любую точку города.Главная особенность новых очередей ЖК Теодор Кроне — уникальная концепция комьюнити-центра, объединяющего 99 повседневных сервисов прямо в пределах жилого квартала.Экосистема заботы, удобства и общения.На территории комплекса:- СПА-центр и фитнес-зал- Современный коворкинг- Кафе-пекарня и магазин у дома- Поликлиника и аптека- Детский клуб и бьюти-салон- Прачечная и пункт химчистки- Управляющая компания с дополнительными сервисами: прокат, домашний мастер, клининг.Жить в Теодор Кроне — значит тратить меньше времени на быт и больше на себя.Природа и уют в шаге от дома.Благоустроенная территория с набережной и собственным озером, прогулочными и велосипедными маршрутами, детскими площадками и уютным парком Теодор Кроне создаёт атмосферу отдыха и вдохновения каждый день.Качество и стиль.- Предчистовая отделка White Box — чтобы вы могли реализовать свой дизайн без лишних хлопот.- Дизайнерские входные группы и лобби.- Квартиры по ДДУ, ФЗ 21.- Оплата: ипотека, рассрочка от застройщика или 100 оплата.Звоните — покажем квартиру и проведём консультацию в удобное для вас время Застройщик: ООО СЗ Эко-Город .Проектная декларация размещена на сайте Предложение ограничено. Цена действительна до 01.12.25 или до её отмены застройщиком.

Читать полностью
    Позвонить Написать
    6 696 300 Р82 290 $ или 71 420
    Агент
    +7 (901) 939-89-27
    Начать чат с агентом
    Похожие предложения в Калининграде
    1-к кв. Калининградская область, Калининград ул. 1-я Большая окружная ... - Фото 1
    1-к кв. Калининградская область, Калининград ул. 1-я Большая окружная ... - Фото 2
    1-комнатная квартира, общая площадь 50м², жилая 14м², кухня 27м²

    Теодор Кроне — современный жилой квартал комфорт+ класса в самом сердце Центрального района.Здесь всё продумано для тех, кто ценит качество, эстетику и полноценную жизнь рядом со всем необходимым.Удобный выезд на основные транспортные развязки — вы быстро...
    • 50 м²
    • 1-ком
    • 1/9 эт.
    6 785 988 Р
    Агент
    +7 (901) Показать номер
    Посмотреть контакты
    2-к кв. Калининградская область, Калининград ул. 1-я Большая окружная ... - Фото 1
    2-к кв. Калининградская область, Калининград ул. 1-я Большая окружная ... - Фото 2
    2-комнатная квартира, общая площадь 51м², жилая 22м²

    Теодор Кроне — современный жилой квартал комфорт+ класса в самом сердце Центрального района.Здесь всё продумано для тех, кто ценит качество, эстетику и полноценную жизнь рядом со всем необходимым.Удобный выезд на основные транспортные развязки — вы быстро...
    • 51 м²
    • 2-ком
    • 4/9 эт.
    6 644 790 Р
    Агент
    +7 (901) Показать номер
    Посмотреть контакты
    2-к кв. Калининградская область, Калининград ул. 1-я Большая окружная ... - Фото 1
    2-к кв. Калининградская область, Калининград ул. 1-я Большая окружная ... - Фото 2
    2-комнатная квартира, общая площадь 51м², жилая 22м²

    Теодор Кроне — современный жилой квартал комфорт+ класса в самом сердце Центрального района.Здесь всё продумано для тех, кто ценит качество, эстетику и полноценную жизнь рядом со всем необходимым.Удобный выезд на основные транспортные развязки — вы быстро...
    • 51 м²
    • 2-ком
    • 9/9 эт.
    6 773 565 Р
    Агент
    +7 (901) Показать номер
    Посмотреть контакты
    2-к кв. Калининградская область, Калининград ул. 1-я Большая окружная ... - Фото 1
    2-к кв. Калининградская область, Калининград ул. 1-я Большая окружная ... - Фото 2
    2-комнатная квартира, общая площадь 51м², жилая 22м²

    Теодор Кроне — современный жилой квартал комфорт+ класса в самом сердце Центрального района.Здесь всё продумано для тех, кто ценит качество, эстетику и полноценную жизнь рядом со всем необходимым.Удобный выезд на основные транспортные развязки — вы быстро...
    • 51 м²
    • 2-ком
    • 8/9 эт.
    6 747 810 Р
    Агент
    +7 (901) Показать номер
    Посмотреть контакты
    2-к кв. Калининградская область, Калининград ул. 1-я Большая окружная ... - Фото 1
    2-к кв. Калининградская область, Калининград ул. 1-я Большая окружная ... - Фото 2
    2-комнатная квартира, общая площадь 51м², жилая 22м²

    Теодор Кроне — современный жилой квартал комфорт+ класса в самом сердце Центрального района.Здесь всё продумано для тех, кто ценит качество, эстетику и полноценную жизнь рядом со всем необходимым.Удобный выезд на основные транспортные развязки — вы быстро...
    • 51 м²
    • 2-ком
    • 7/9 эт.
    6 722 055 Р
    Агент
    +7 (901) Показать номер
    Посмотреть контакты

    Не нашли подходящего объявления?

    Оставьте заявку, и наши риэлторы подберут квартиру в новостройке в районе Калининграда

    (0)