9 576 960 Р 120 000 $ или 103 000

Информация о квартире

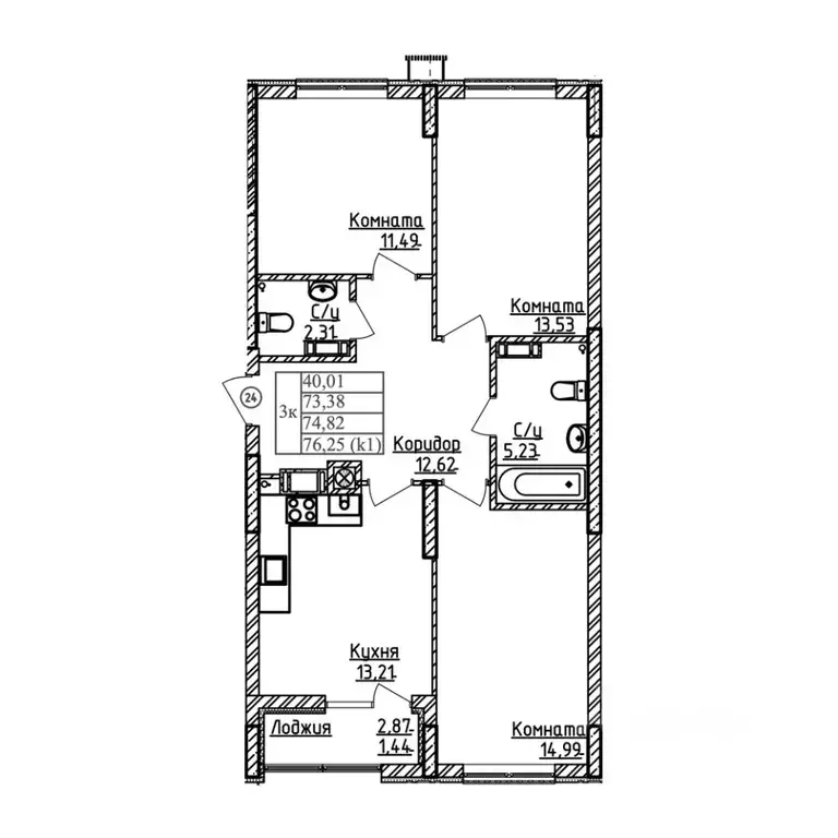
74 м2
Площадь
40 м2
Жилая
13 м2
Кухня
3
Комнаты
7
Этаж
9
Этажность
Развернуть
Агент
+7 (901) 939-89-27
Начать чат с агентом

3-к кв. Калининградская область, Калининград ул. Дубовая Аллея (74.82 ...

Теодор Кроне — современный жилой квартал комфорт+ класса в самом сердце Центрального района.Здесь всё продумано для тех, кто ценит качество, эстетику и полноценную жизнь рядом со всем необходимым.Удобный выезд на основные транспортные развязки — вы быстро доберётесь в любую точку города.Главная особенность новых очередей ЖК Теодор Кроне — уникальная концепция комьюнити-центра, объединяющего 99 повседневных сервисов прямо в пределах жилого квартала.Экосистема заботы, удобства и общения.На территории комплекса:- СПА-центр и фитнес-зал- Современный коворкинг- Кафе-пекарня и магазин у дома- Поликлиника и аптека- Детский клуб и бьюти-салон- Прачечная и пункт химчистки- Управляющая компания с дополнительными сервисами: прокат, домашний мастер, клининг.Жить в Теодор Кроне — значит тратить меньше времени на быт и больше на себя.Природа и уют в шаге от дома.Благоустроенная территория с набережной и собственным озером, прогулочными и велосипедными маршрутами, детскими площадками и уютным парком Теодор Кроне создаёт атмосферу отдыха и вдохновения каждый день.Качество и стиль.- Предчистовая отделка White Box — чтобы вы могли реализовать свой дизайн без лишних хлопот.- Дизайнерские входные группы и лобби.- Квартиры по ДДУ, ФЗ 21.- Оплата: ипотека, рассрочка от застройщика или 100 оплата.Звоните — покажем квартиру и проведём консультацию в удобное для вас время Застройщик: ООО СЗ Эко-Город .Проектная декларация размещена на сайте Предложение ограничено. Срок действия акции — до 01.10.25 или до её отмены застройщиком.

Читать полностью
    Позвонить Написать
    9 576 960 Р120 000 $ или 103 000
    Агент
    +7 (901) 939-89-27
    Начать чат с агентом
    Похожие предложения в Калининграде
    1-к кв. Калининградская область, Калининград Мой Город жилой комплекс ... - Фото 1
    1-к кв. Калининградская область, Калининград Мой Город жилой комплекс ... - Фото 2
    1-комнатная квартира, общая площадь 46м²

    Продается комфортабельная 1 комнатная квартира 230 на Советском проспекте, 50 в ЖК МОЙ ГОРОД Свяжитесь с нами прямо сейчас, чтобы получить эксклюзивное предложение по покупке квартиры. Мы обсудим все детали и создадим выгодные и индивидуальные условия...
    • 46 м²
    • 1-ком
    • 4/10 эт.
    9 520 200 Р
    Агент
    +7 (966) Показать номер
    Посмотреть контакты
    1-к кв. Калининградская область, Калининград Мой Город жилой комплекс ... - Фото 1
    1-к кв. Калининградская область, Калининград Мой Город жилой комплекс ... - Фото 2
    1-комнатная квартира, общая площадь 40м²

    Продаётся комфортабельная 1-комнатная квартира 358 на Советском проспекте, 50 в ЖК МОЙ ГОРОД Свяжитесь с нами прямо сейчас, чтобы получить эксклюзивное предложение по покупке квартиры. Мы обсудим все детали и создадим выгодные и индивидуальные условия...
    • 40 м²
    • 1-ком
    • 4/10 эт.
    9 531 600 Р
    Агент
    +7 (966) Показать номер
    Посмотреть контакты
    1-к кв. Калининградская область, Калининград Мой Город жилой комплекс ... - Фото 1
    1-к кв. Калининградская область, Калининград Мой Город жилой комплекс ... - Фото 2
    1-комнатная квартира, общая площадь 46м²

    Продается комфортабельная 1 комнатная квартира 89 на Советском проспекте, 50 в ЖК МОЙ ГОРОД Свяжитесь с нами прямо сейчас, чтобы получить эксклюзивное предложение по покупке квартиры. Мы обсудим все детали и создадим выгодные и индивидуальные условия...
    • 46 м²
    • 1-ком
    • 3/10 эт.
    9 520 200 Р
    Агент
    +7 (966) Показать номер
    Посмотреть контакты
    1-к кв. Калининградская область, Калининград Мой Город жилой комплекс ... - Фото 1
    1-к кв. Калининградская область, Калининград Мой Город жилой комплекс ... - Фото 2
    1-комнатная квартира, общая площадь 40м², жилая 14м², кухня 15м²

    Продаётся комфортабельная 1-комнатная квартира 347 на Советском проспекте, 50 в ЖК МОЙ ГОРОД Свяжитесь с нами прямо сейчас, чтобы получить эксклюзивное предложение по покупке квартиры. Мы обсудим все детали и создадим выгодные и индивидуальные условия...
    • 40 м²
    • 1-ком
    • 3/10 эт.
    9 524 550 Р
    Агент
    +7 (966) Показать номер
    Посмотреть контакты
    1-к кв. Калининградская область, Калининград Мой Город жилой комплекс ... - Фото 1
    1-к кв. Калининградская область, Калининград Мой Город жилой комплекс ... - Фото 2
    1-комнатная квартира, общая площадь 40м²

    Продаётся комфортабельная 1-комнатная квартира 301 на Советском проспекте, 50 в ЖК МОЙ ГОРОД Свяжитесь с нами прямо сейчас, чтобы получить эксклюзивное предложение по покупке квартиры. Мы обсудим все детали и создадим выгодные и индивидуальные условия...
    • 40 м²
    • 1-ком
    • 4/10 эт.
    9 597 400 Р
    Агент
    +7 (966) Показать номер
    Посмотреть контакты

    Не нашли подходящего объявления?

    Оставьте заявку, и наши риэлторы подберут квартиру в новостройке в районе Калининграда

    (0)