Реализация объекта недвижимости приостановлена

Информация о квартире

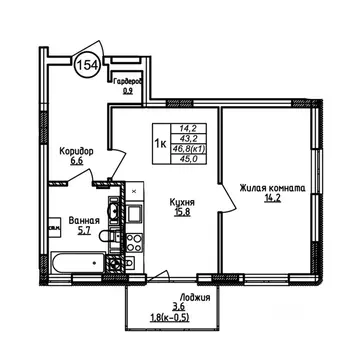
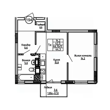
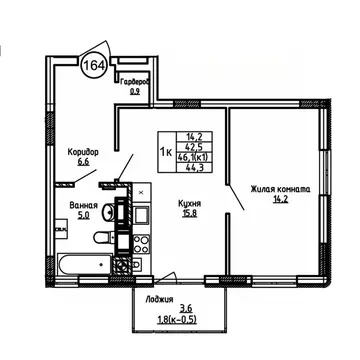
55.0 м2
Площадь
2
Комнаты
1
Этаж
9
Этажность

Дополнительная информация

Тип дома
кирпичный
Развернуть

2-к кв. Калининградская область, Калининград Новгородская ул., 3Ак5 ...

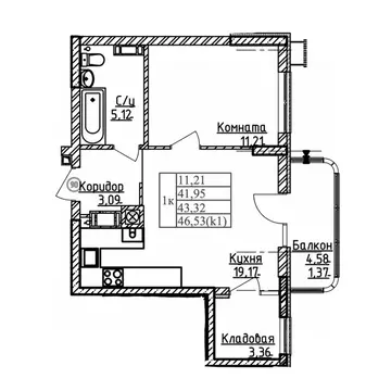
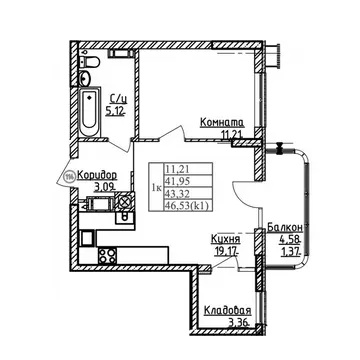
Квартира: 2 к 55,98 кв.м., 1 этаж в комплексе Новый город, 1 очередь, корп.5, сдача: 1кв. , этажей: 9, адрес Калининград г., Новгородская ул., д. 3А/5, Застройщик: КалининградСтройИнвест. Жилой комплекс это уникальный ансамбль домов с просторными дворами, расположен в микрорайоне им. А. Космодемьянского г. Калининграда. Это тихое зеленое место с одной стороны окружено лиственным лесом, с другой стороны озерами. Семь девятиэтажных домов с разнообразными планировками и квадратурой квартир, офисами, кладовыми, благоустроенной придомовой территорией. Фасады домов утепляются и отделываются по системе Теплоавангард. Затем снаружи стены окрашиваются краской контрастных оттенков и декорируются клинкерной плиткой. Стены 1-2 этажей из силикатного кирпича, выше из крупноформатного керамического камня. Оконные проемы в квартирах индивидуального исполнения с нестандартными оконными переплетами. На лоджиях и в офисных помещениях применяется сплошное панорамное остекление. С внутренней стороны панорамных лоджий устанавливаются металлические ограждения. Для панорамных конструкций используются стеклопакеты с триплексной системой остекления. Окна и балконные двери однокамерные стеклопакеты с низкоэмиссионным покрытием. Также устанавливаются входные усиленные и утепленные входные двери индивидуального изготовления. Отопление в квартирах осуществляется от автоматических газовых котлов, они же обеспечивают нагрев воды. Территория жилого комплекса огорожена. Внутри размещаются пять детских игровых площадок, физкультурные площадки и площадки для отдыха взрослых с лавочками и урнами. Кроме того, при жилом комплексе запланировано 101 парковочное место. В домах 1 и 7 на первых этажах разместятся офисы. В подвалах всех запроектированы хозяйственные кладовые. Для временного хранения отходов предусмотрены мусорные камеры и площадки для мусорных контейнеров. Застройщик обещает максимально сохранить существующие зеленые насаждения, а также дополнительно высадить на внутренней территории и по периметру ЖК 815 кустарников и 119 деревьев. Все вопросы по эксплуатации новостройки будет решать собственная управляющая компания. Номер объекта: 2/536946/23538

Читать полностью

    Реализация объекта недвижимости приостановлена

    Не нашли подходящего объявления?

    Оставьте заявку, и наши риэлторы подберут квартиру в новостройке в районе Калининграда

    (0)