11 929 664 Р 146 400 $ или 124 700

Информация о квартире

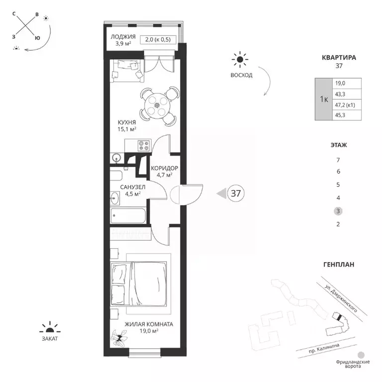
45 м2
Площадь
19 м2
Жилая
1
Комната
3
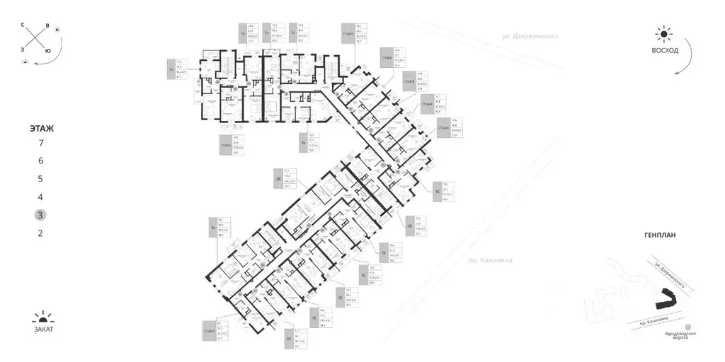
Этаж
7
Этажность
Развернуть
Агент
К8 Комплексный девелопмент (застройщик)
+7 (901) 939-83-61
Начать чат с агентом

1-к кв. Калининградская область, Калининград просп. Калинина, 117 ...

Жилой комплекс бизнес-класса в самом центре города со СПА-комплексом, круглогодичным подогреваемым бассейном и собственной управляющей компанией. Комплекс окружен городскими достопримечательностями:- Южный парк- набережная Рыбной деревни- остров Канта, - филиалы Третьяковской галереи и Большого театра- музей Фридландские ворота.Архитектура подчеркивает историческое наследие локации. Комбинированный фасад с элементами балтийского стиля в современном воплощении.Закрытая территория, двор-сад, арт-объекты и вертикальное озеленение. Комьюнити-центр, фитнес-клуб, своя поликлиника.Подходит как для комфортной жизни в центре города с природой, особенной средой и тишиной, так и для инвестиций: каждый метр работает на капитализацию.Комплекс состоит из 2-х 7-этажных домов: 126 квартир и 298 квартир На 1-м этаже располагаются коммерческие помещения. Подземный паркинг рассчитан на 105 машиномест. Квартиры предлагаются в отделке white box.Квартира в ЖК Фридланд 2 очередь - надежная гавань Ваших сбережений. Квартира приобретается по договору долевого участия с эскроу счетом. Возможна оплата и с использованием ипотеки или 100 оплатой за счёт собственных средств. Звоните, с радостью проведем консультацию в удобное для Вас время Застройщик ООО СЗ СпецСтрой , проектная декларация размещена на сайте .

Читать полностью
    Позвонить Написать
    11 929 664 Р146 400 $ или 124 700
    Агент
    К8 Комплексный девелопмент (застройщик)
    +7 (901) 939-83-61
    Начать чат с агентом
    Похожие предложения в Калининграде
    Студия Калининградская область, Калининград просп. Калинина, 117 (42.2 ... - Фото 1
    Студия Калининградская область, Калининград просп. Калинина, 117 (42.2 ... - Фото 2
    студия, общая площадь 42м², жилая 19м²

    Жилой комплекс бизнес-класса в самом центре города со СПА-комплексом, круглогодичным подогреваемым бассейном и собственной управляющей компанией. Комплекс окружен городскими достопримечательностями:- Южный парк- набережная Рыбной деревни- остров Канта,...
    • 42 м²
    • студия-ком
    • 4/7 эт.
    11 319 390 Р
    Агент
    +7 (901) Показать номер
    Посмотреть контакты
    1-к кв. Калининградская область, Калининград просп. Калинина, 117 ... - Фото 1
    1-к кв. Калининградская область, Калининград просп. Калинина, 117 ... - Фото 2
    1-комнатная квартира, общая площадь 48м², жилая 16м²

    Жилой комплекс бизнес-класса в самом центре города со СПА-комплексом, круглогодичным подогреваемым бассейном и собственной управляющей компанией. Комплекс окружен городскими достопримечательностями:- Южный парк- набережная Рыбной деревни- остров Канта,...
    • 48 м²
    • 1-ком
    • 3/7 эт.
    12 746 043 Р
    Агент
    +7 (901) Показать номер
    Посмотреть контакты
    1-к кв. Калининградская область, Калининград просп. Калинина, 117 ... - Фото 1
    1-к кв. Калининградская область, Калининград просп. Калинина, 117 ... - Фото 2
    1-комнатная квартира, общая площадь 47м², жилая 14м²

    Жилой комплекс бизнес-класса в самом центре города со СПА-комплексом, круглогодичным подогреваемым бассейном и собственной управляющей компанией. Комплекс окружен городскими достопримечательностями:- Южный парк- набережная Рыбной деревни- остров Канта,...
    • 47 м²
    • 1-ком
    • 7/7 эт.
    12 663 742 Р
    Агент
    +7 (901) Показать номер
    Посмотреть контакты
    1-к кв. Калининградская область, Калининград просп. Калинина, 117 ... - Фото 1
    1-к кв. Калининградская область, Калининград просп. Калинина, 117 ... - Фото 2
    1-комнатная квартира, общая площадь 47м², жилая 16м²

    Жилой комплекс бизнес-класса в самом центре города со СПА-комплексом, круглогодичным подогреваемым бассейном и собственной управляющей компанией. Комплекс окружен городскими достопримечательностями:- Южный парк- набережная Рыбной деревни- остров Канта,...
    • 47 м²
    • 1-ком
    • 2/7 эт.
    12 012 003 Р
    Агент
    +7 (901) Показать номер
    Посмотреть контакты
    1-к кв. Калининградская область, Калининград просп. Калинина, 117 ... - Фото 1
    1-к кв. Калининградская область, Калининград просп. Калинина, 117 ... - Фото 2
    1-комнатная квартира, общая площадь 48м², жилая 14м²

    Жилой комплекс бизнес-класса в самом центре города со СПА-комплексом, круглогодичным подогреваемым бассейном и собственной управляющей компанией. Комплекс окружен городскими достопримечательностями:- Южный парк- набережная Рыбной деревни- остров Канта,...
    • 48 м²
    • 1-ком
    • 4/7 эт.
    12 900 030 Р
    Агент
    +7 (901) Показать номер
    Посмотреть контакты

    Не нашли подходящего объявления?

    Оставьте заявку, и наши риэлторы подберут квартиру в новостройке в районе Калининграда

    (0)