11 500 000 Р 136 900 $ или 118 200

Информация о коттедже

215 м2
Площадь
2
Этажность
6 cоток
Участок

Дополнительная информация

Дом продаётся вместе с участком
есть
Развернуть
Агент
+7 (911) 481-03-38
Начать чат с агентом

Дом в Калининградская область, Калининград Весна СНТ, ул. Лейтенанта ...

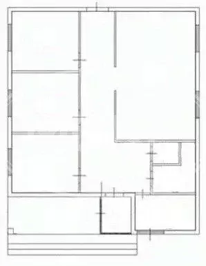
**Описание объекта недвижимости**Продается просторный двухэтажный кирпичный дом площадью 215 кв.м. в Калининграде, Центральный район. Дом расположен на земельном участке размером 5.5 соток и имеет статус жилого. По планировке предусмотрены пять жилых комнат, просторная кухня-гостиная, два санузла и балкон.**Характеристики объекта:**- **Материалы стен:** Газоблоки;- **Количество этажей:** Два; - **Тип отопления:** Автономное газовое;- **Водоснабжение:** Скважина;- **Электроэнергия:** Подключена;- **Газ:** Есть;- **Канализация:** Септик.На территории также имеется гараж, встроенный в дом, что является удобным решением для автовладельцев. Кроме того, на участке установлена теплица, а также огорожен забором, что обеспечивает безопасность и приватность.Участок относится к категории садового некоммерческого товарищества (СНТ).Дом требуетемонта, что дает новым владельцам возможность обустроить его по своему вкусу.Отличное местоположение, асфальтированные дороги и наличие остановки общественного транспорта.Этот дом станет отличным вариантом для тех, кто мечтает о комфортной жизни в районе с развитой инфраструктурой.Возможен обмен Номер в базе: J23408

Читать полностью

    Для того, чтобы купить 2-этажный коттедж по адресу: Калининград, Центральный, Весна СНТ, позвоните по телефону +7 (911) 481-03-38. Торопитесь! Объявление №50015587994 о продаже двухэтажного коттеджа опубликовано 15 марта 2026.

    Позвонить Написать
    11 500 000 Р136 900 $ или 118 200
    Агент
    +7 (911) 481-03-38
    Начать чат с агентом
    Похожие предложения в Калининграде
    Дом в Калининградская область, Калининград Золотой Петушок ДНТ, ул. ... - Фото 1
    Дом в Калининградская область, Калининград Золотой Петушок ДНТ, ул. ... - Фото 2
    1 этаж, общая площадь 116м², участок 4 сотки

    Код объекта: 2080664.Продаётся одноэтажный дом площадью 116,6 кв. м в ДНТ Золотой Петушок .Дом построен в 2023 году.В доме четыре комнаты с общей площадью 64 кв. м. из них одна комната кухня-студия площадью 29,7 кв. м.Высота потолков — 3 метра, что создаёт...
    • 1 эт.
    • 116 м²
    • 4 сот.
    11 000 000 Р
    Агент
    +7 (981) Показать номер
    Посмотреть контакты
    Дом в Калининградская область, Калининград Мечта СНТ, пер. Бригадный ... - Фото 1
    Дом в Калининградская область, Калининград Мечта СНТ, пер. Бригадный ... - Фото 2
    3 этажа, общая площадь 245м², участок 6 соток

    Код объекта: 1885288.Продается отличный теплый дом для большой и дружной семьи в Центральном районе Калининграда, конец улицы Катина, СНТ Мечта , Бригадный переулок. Дом расположен в районе частной жилой застройки в тихом и уютном месте. Это отличное...
    • 3 эт.
    • 245 м²
    • 6 сот.
    11 500 000 Р
    Агент
    +7 (981) Показать номер
    Посмотреть контакты
    Дом в Калининградская область, Калининград пер. 1-й Менделеева, 16 ... - Фото 1
    Дом в Калининградская область, Калининград пер. 1-й Менделеева, 16 ... - Фото 2
    2 этажа, общая площадь 196м², участок 5 соток

    В продаже дом 196 м2, со встроенным гаражом, снт Лето. Престижный р-н города Amalienay. Доступна вся городская инфраструктура: городской транспорт(до остановки 100 м); школы 21, 4, гимназия 1 - 1,6 км - 1,8 км; дет/сад 37, Академия детства 1,5 км;...
    • 2 эт.
    • 196 м²
    • 5 сот.
    11 800 000 Р
    Агент
    +7 (911) Показать номер
    Посмотреть контакты
    Дом в Калининградская область, Калининград Золотой Петушок ДНТ, ул. ... - Фото 1
    Дом в Калининградская область, Калининград Золотой Петушок ДНТ, ул. ... - Фото 2
    2 этажа, общая площадь 120м², участок 7 соток

    Код объекта: 2055076.Отдел загородной недвижимости предлагает к продаже жилой дом ремонтом, мебелью и настоящей баней, расположенный в Центральном районе г.Калининграда по адресу: СНТ Золотой Петушок , ул.Вишневая.Ориентиры: ул.1-я Большая окружная,...
    • 2 эт.
    • 120 м²
    • 7 сот.
    11 500 000 Р
    Агент
    +7 (981) Показать номер
    Посмотреть контакты
    Дом в Калининградская область, Калининград Радуга СНТ, пер. Лысенко ... - Фото 1
    Дом в Калининградская область, Калининград Радуга СНТ, пер. Лысенко ... - Фото 2
    2 этажа, общая площадь 140м², участок 5 соток

    Код объекта: 1758534.Уединенная жизнь в центре города: индивидуальный дом для вашего комфортаПредставьте себе идеальный баланс: тишина и приватность вашего собственного дома всего в 7 минутах от динамичного центра Калининграда. Этот дом построен для тех,...
    • 2 эт.
    • 140 м²
    • 5 сот.
    11 500 000 Р
    Агент
    +7 (981) Показать номер
    Посмотреть контакты

    Не нашли подходящего объявления?

    Оставьте заявку, и наши риэлторы подберут купить дом в районе Калининграда

    (0)