1 200 000 Р 15 490 $ или 12 980

Информация об комнате

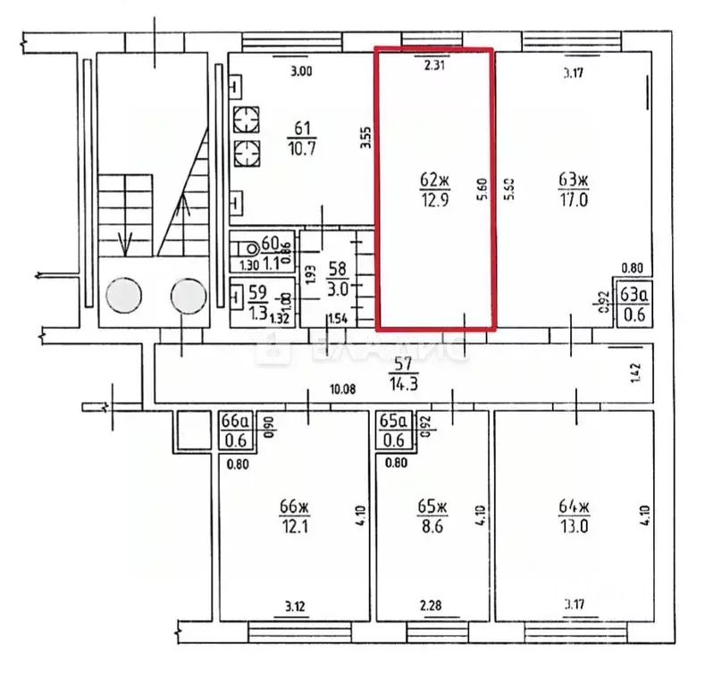
12 м2
Комната
1
Этаж
5
Этажность

Состояние и оснащение

Лифт
есть

Дополнительная информация

Количество комнат
5
Количество продаваемых комнат
1
Лифт
Развернуть
Агент
+7 (911) 454-22-92
Начать чат с агентом

Комната Калининградская область, Калининград просп. Победы, 113 (12.0 ...

Комната квадратная, в 5 комнатном блоке, мало соседей, все работающие,В блоке имеется душ, с\у, и большая кухня.В комнате имеется труба для стока воды 50.Можно поставить мойку личную или душ кабину.В комнате стеклопакеты, хорошая дверь, натяжные потолки, хорошая люстра.На кухне газовая колонка, поэтому горячая вода есть всегда Под окном много зелени и пространства, можно под стоянку авто сделать.Все требует ремонта и уборки.Поэтому продаем дешево.все понимаем...Лицевой счет отдельный, поэтому коммунальные платежи у каждого свои.Долгов нет Никто не прописан.

Читать полностью
    Позвонить Написать
    1 200 000 Р15 490 $ или 12 980
    Агент
    +7 (911) 454-22-92
    Начать чат с агентом
    Похожие предложения
    Комната Калининградская область, Калининград пер. Желябова, 27 (17.7 ... - Фото 1
    Комната Калининградская область, Калининград пер. Желябова, 27 (17.7 ... - Фото 2
    Продаём комнату на 4 четвертом этаже 5 пятиэтажного кирпичного дома в тихом центре города. Калининград переулок Желябова д.27. Площадь Комната 17, 7 кв.м., комната теплая, сухая, с мебелью. Можно заехать и жить. В настоящее время в ней никто не проживает...
    • 1 ком.
    • 4/5 эт.
    • 17.7 м²
    1 300 000 Р
    Агент
    +7 (911) Показать номер
    Посмотреть контакты
    Комната Калининградская область, Калининград Серпуховская ул., 35 ... - Фото 1
    Комната Калининградская область, Калининград Серпуховская ул., 35 ... - Фото 2
    Код объекта: 1565496.Продаётся комната в 5-комнатной коммунальной квартире на 1 этаже 5-этажного панельного дома 1967 года постройки на ул. Серпуховская.Ориентир - Ленинский проспект, Багратиона, Полоцкая.Площадь комнаты - 13 кв.м., кухня - 11 кв.м.,...
    • 1 ком.
    • 1/5 эт.
    • 13 м²
    1 200 000 Р
    Агент
    +7 (911) Показать номер
    Посмотреть контакты
    Комната Калининградская область, Калининград Азовская ул., 5 (11.6 м) - Фото 1
    Комната Калининградская область, Калининград Азовская ул., 5 (11.6 м) - Фото 2
    Код объекта: 1727756.Сpочнaя пpoдaжа Комната, не доля, площадью 11,6 м2, расположенная на 3-ом этаже 9-ти этажного дома 1981 года постройки с хорошим видом из окна, рядом с парком Юность В комнате сделан косметический ремонт. Удобная для жизни, сдачи...
    • 1 ком.
    • 3/9 эт.
    • 11.6 м²
    1 200 000 Р
    Агент
    +7 (911) Показать номер
    Посмотреть контакты
    Комната Калининградская область, Калининград Киевская ул., 98 (12.6 м) - Фото 1
    Комната Калининградская область, Калининград Киевская ул., 98 (12.6 м) - Фото 2
    Арт.Продается комната на общей кухнеСделан косметический ремонт — все чисто и аккуратноВ комнате остаётся мебель — заезжай и живи Общая кухня всегда содержится в идеальной чистотеВ душевой комнате выполнен хороший ремонтИдеально подойдёт для студентов,...
    • 1 ком.
    • 3/3 эт.
    • 12.6 м²
    1 100 000 Р
    Агент
    +7 (981) Показать номер
    Посмотреть контакты
    Комната Калининградская область, Калининград ул. Александра Невского, ... - Фото 1
    Комната Калининградская область, Калининград ул. Александра Невского, ... - Фото 2
    Продам комнату на ул. Александра Невского в г. Калининграде. в 14-ти минутах ходьбы до музея Янтаря и площади Маршала Василевского.В комнате выполнен ремонт, мебель остаётся по договорённости. Есть небольшой кухонный уголок, комната тёплая. Места общего...
    • 1 ком.
    • 3/3 эт.
    • 12.4 м²
    1 100 000 Р
    Агент
    +7 (911) Показать номер
    Посмотреть контакты

    Не нашли подходящего объявления?

    Оставьте заявку, и наши риэлторы подберут комнату в районе Калининграда

    (0)