Реализация объекта недвижимости приостановлена

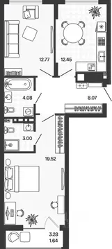
Информация о квартире

56.0 м2
Площадь
28.0 м2
Жилая
15.0 м2
Кухня
1
Комната
2
Этаж
4
Этажность
Развернуть

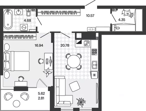
1-комнатная квартира: Лесное, КА Отрада Resort (56.2 м)

Однокомнатные апартаменты в комплексе апартаментов OTRADA RESORT на побережье Балтийского моря. Калининградская область, Светлогорский р-н, пос. Лесное.8.1 — прихожая 4,6 м8.2 — кухня-столовая 15,1 м8.3 — жилая комната 28,8 м8.4 — санузел 4,3 м8.5 — балкон 3,4 мОбщая площадь апартаментов: 56,2 м

Читать полностью

    Реализация объекта недвижимости приостановлена

    Не нашли подходящего объявления?

    Оставьте заявку, и наши риэлторы подберут квартиру в новостройке в районе Лесного

    (0)