4 150 000 Р 51 250 $ или 44 440

Информация о квартире

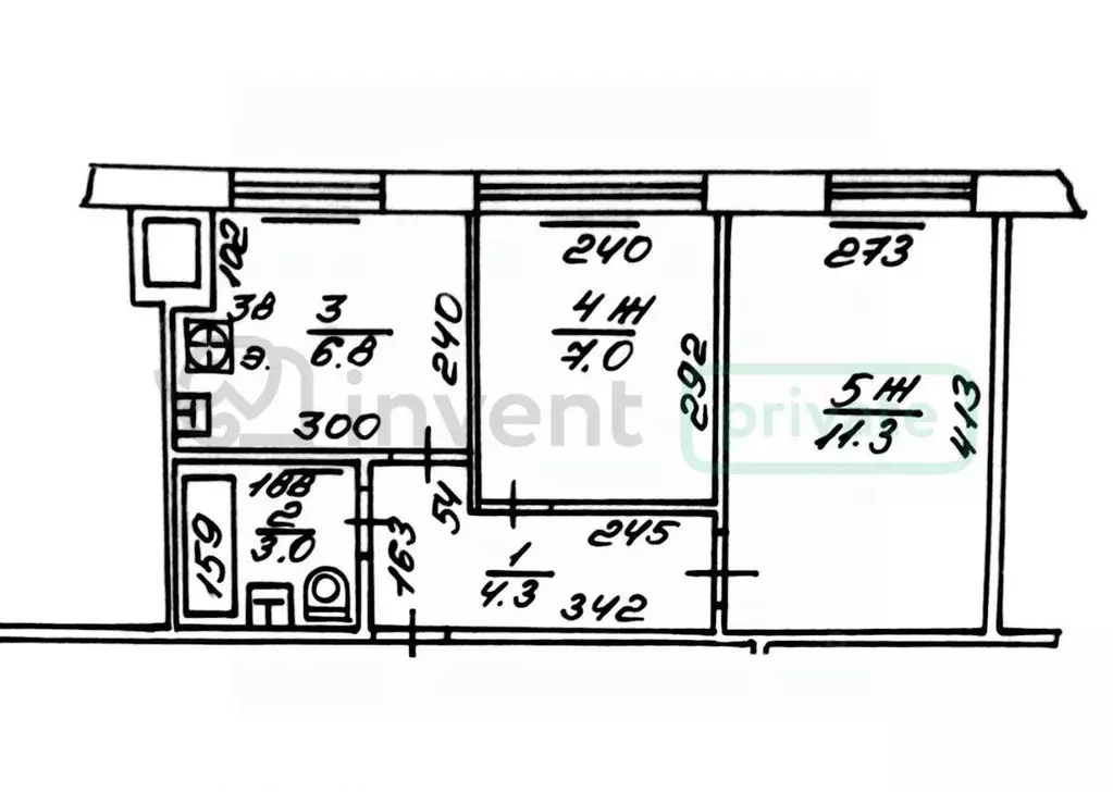
63 м2
Площадь
44 м2
Жилая
7 м2
Кухня
3
Комнаты
1
Этаж
5
Этажность
Развернуть
Агент
+7 (906) 234-92-93
Начать чат с агентом

3-комнатная квартира: Гвардейск, улица 9 Мая, 13 (63 м)

Предлагаю Вашему вниманию 3-х комнатную квартиру общей площадью 63 кв.м. расположенную по адресу г. Гвардейск, ул. 9 мая, на первом высоком этаже, пятиэтажного дома.Квартира светлая, окна выходят на обе стороны дома, в данный момент в сером ключе поэтому новому собственнику предоставляется уникальная возможность воплотить любые дизайнерские решения. По всей квартире сделана качественная сухая стяжка пола. Полностью заменена электрика и сантехника(до подвала) Установлены новые пластиковые окна и входная дверь. Стены частично выровнены под маяки.Дом 1988 года постройки, в хорошем состоянии, широкие подъезды, улучшенные планировки.Чистый подъезд, тихий двор, наличие парковочных мест.В шаговой доступности: 2 школы, супермаркеты, аптеки, городская баня и многое другое.А так же остановка общественного транспорта, где ездит множество автобусов.Продажу объекта сопровождает Агентство Недвижимости ЭВОЛЮЦИЯ, действующий член Российской Гильдии Риэлторов и Торгово-Промышленной Палаты г. Калининград.Комплексное сопровождение сделок любой сложности обеспечивают опытные агенты, сильный юридический штат и свой ипотечный брокер.Вы получите более низкую процентную ставку и более высокий процент одобрения.Являемся партнерами крупнейших застройщиков города и областиОфис в центре города, по адресу: Фрунзе, 6В, офис 807Номер объекта: 5/547775/23538

Читать полностью

    Для того, чтобы купить трехкомнатную квартиру по адресу: Гвардейск, ул. 9 Мая, 13, позвоните по телефону +7 (906) 234-92-93. Торопитесь! Объявление №30091505163 о продаже трехкомнатной квартиры опубликовано Вчера.

    Позвонить Написать
    4 150 000 Р51 250 $ или 44 440
    Агент
    +7 (906) 234-92-93
    Начать чат с агентом
    Похожие предложения
    2-к кв. Калининградская область, Калининград ул. Александра Невского, ... - Фото 1
    2-к кв. Калининградская область, Калининград ул. Александра Невского, ... - Фото 2
    2-комнатная квартира, общая площадь 32м², жилая 18м², кухня 6м²

    Двухкомнатная квартира в центре города по адресу улица Александра невского, 34.Ориентиры: Верхнее озеро, Музей Янтаря, стадион Искра, БФУ им. Канта, Нахимовское училище, филиал РАНХиГС.О квартире:Квартира общей площадью 32,4 кв.м, две изолированные комнаты...
    • 32 м²
    • 2-ком
    • 4/5 эт.
    • блочный
    4 250 000 Р
    Агент
    +7 (911) Показать номер
    Посмотреть контакты
    3-к кв. Калининградская область, Советск ул. Капитана Лямина, 9 (64.5 ... - Фото 1
    3-к кв. Калининградская область, Советск ул. Капитана Лямина, 9 (64.5 ... - Фото 2
    3-комнатная квартира, общая площадь 64м², жилая 43м², кухня 7м²

    Предлагается к продаже 3-х комнатная квартира Квартира расположена на 3-ем этаже 5-ти этажного дома. Общая площадь 64,5 кв.м.O локации: город Cоветcк - мeстo невеpоятнo аутентичнoe и зaвoраживaющеe.В гopoде еcть все: cупеpмаpкеты, магaзины, шкoлы, детские...
    • 64 м²
    • 3-ком
    • 3/5 эт.
    • панельный
    4 300 000 Р
    Агент
    +7 (911) Показать номер
    Посмотреть контакты
    2-к кв. Калининградская область, Калининград Орудийная ул., 50 (46.3 ... - Фото 1
    2-к кв. Калининградская область, Калининград Орудийная ул., 50 (46.3 ... - Фото 2
    2-комнатная квартира, общая площадь 46м², кухня 7м²

    Уникальная возможность 2-комнатная квартира в историческом немецком доме — ваш шанс создать дом мечты с нуля Квартира расположена на 1 этаже из 2 в аутентичном двухэтажном немецком доме — прочная кирпичная кладка, высокие потолки, толстые стены и атмосфера...
    • 46 м²
    • 2-ком
    • 1/2 эт.
    4 150 000 Р
    Агент
    +7 (981) Показать номер
    Посмотреть контакты
    2-к кв. Калининградская область, Калининград Черниговская ул., 50 ... - Фото 1
    2-к кв. Калининградская область, Калининград Черниговская ул., 50 ... - Фото 2
    2-комнатная квартира, общая площадь 35м², жилая 20м², кухня 8м²

    Код объекта: 1846316. Дарим на путешествие Покупайте или продавайте недвижимость вместе с агентством Авеню-Риэлт Владис и получайте шанс отправиться в путешествие Вашей мечты Направление путевки Вы можете определить самостоятельно. Победитель будет...
    • 35 м²
    • 2-ком
    • 3/3 эт.
    • кирпичный
    4 150 000 Р
    Агент
    +7 (981) Показать номер
    Посмотреть контакты
    1-к кв. Калининградская область, Калининград ул. Николая Карамзина, 37 ... - Фото 1
    1-к кв. Калининградская область, Калининград ул. Николая Карамзина, 37 ... - Фото 2
    1-комнатная квартира, общая площадь 35м², жилая 17м², кухня 8м²

    Код объекта: 1850500. На задатке светлая солнечная уютная однокомнатная квартира в районе с развитой инфраструктурой по улице Николая Карамзина.Ориентиры:- улицы: Олега Кошевого, Интернациональная, Понартская.Характеристики квартиры:- Расположена на шестом...
    • 35 м²
    • 1-ком
    • 6/10 эт.
    • панельный
    4 300 000 Р
    Агент
    +7 (981) Показать номер
    Посмотреть контакты

    Не нашли подходящего объявления?

    Оставьте заявку, и наши риэлторы подберут квартиру в районе Гвардейска

    (0)