10 300 000 Р 133 000 $ или 114 600

Информация о коттедже

150 м2
Площадь
1
Этажность
6 cоток
Участок

Дополнительная информация

Дом продаётся вместе с участком
есть
Развернуть
Агент
+7 (911) 851-21-24
Начать чат с агентом

Дом в Калининградская область, Гурьевский муниципальный округ ул. ...

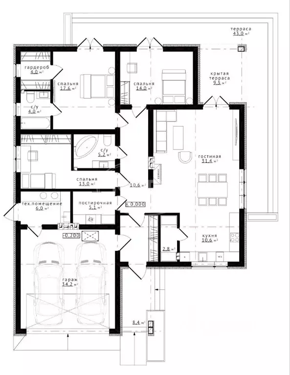
Предлагается качественный, с продуманной планировкой дом в одном из лучших посёлков Калининградской области.ТЕХНИЧЕСКИЕ ХАРАКТЕРИСТИКИ:-фундамент монолитная плита 300мм., утеплённая пеноплексом 50мм,-стены газосиликат 250 мм (внутренние стены 150 мм) утеплены полистиролом 100мм.,-окна и двери обрамлены противопожарной ватой, -потолок на первом этаже: минвата 150мм, пароизоляция и OSB, высота потолков в чистом варианте -3 метра-по всему периметру дома и внутри дома залит армопояс 200мм.,-на стенные блоки размещён мауэрлат, он обеспечивает надёжное крепление стропильной системы к стенам здания, что важно для устойчивости и долговечности всей конструкции,-крепкая крыша покрыта качественной модульной черепицей, все водосточные трубы металлические,-окна установлены с трёхкамерным стеклопакетом, снаружи цвет антрацит, внутри белый с рефлекторным (зеркальным) покрытием стекла.-заведено в дом электричество 8 кВт (есть возможность увеличения),-газ проходит вдоль участка ( канализация и вода ещё не проведены). Уже закуплены качественные материалы для фасада (цементная плитка, декор элементы для окон), трубы для воды, провода для света, утеплитель для крыши, ВСЁ ЭТО ОСТАЕТСЯ ПОКУПАТЕЛЮ.ПЛАНИРОВКА дома включает: четыре отдельные комнаты (одна из них мастер-спальня с гардеробной и санузлом), кухню-гостиную, техническое помещение с выходом на чердак, крытое парковочное место.ДОМ СТРОИЛСЯ ДЛЯ СВОЕЙ СЕМЬИ, ПОЭТОМУ ОН КРЕПКИЙ, НАДЁЖНЫЙ, КАЧЕСТВЕННЫЙ Земельный участок (39:03:080902:3890) 6 соток, ровный, сухой, на него завезено много грунта и песка.ПРЕИМУЩЕСТВА РАЙОНА:-к дому прекрасные подъездные пути по бетонной дороге и освещенной улице. Въезд в поселок через шлагбаум, есть оборудованная детская площадка, озеро для прогулок,-в посёлке Ласкино детский сад, школьный автобус возит детей в школу, фельдшерско-акушерский пункт, Почта России, Озон, четыре супермаркета, СТО, репетиторы для детей и взрослых, услуги мастеров красоты,есторан, спа-комплекс, открытый бассейн, теннисный корт, Парк с прудом и фонтаном. Дом Коттедж Таунхаус Дача Земельный участок ДомВ Калининграде ДомуОзера ДомнаМоре ЧастныйДомКалининградская областьНомер объекта: 1/593833/22596

Читать полностью

    Для того, чтобы купить 1-этажный коттедж по адресу: Речная улица, позвоните по телефону +7 (911) 851-21-24. Торопитесь! Объявление №50016614551 о продаже одноэтажного коттеджа опубликовано 30 ноября 2025.

    Позвонить Написать
    10 300 000 Р133 000 $ или 114 600
    Агент
    +7 (911) 851-21-24
    Начать чат с агентом
    Похожие предложения в Гурьевском районе
    Дом в Калининградская область, Гурьевский муниципальный округ, пос. ... - Фото 1
    Дом в Калининградская область, Гурьевский муниципальный округ, пос. ... - Фото 2
    1 этаж, общая площадь 85м², участок 5 соток

    Арт.Продам дом в современном коттеджном посёлке. Отличное место для тех кто хочет жить рядом с городом, на границе с заповедным местом и без городского шума и суеты. Общая площадь: 85 кв.м.Автономное газовое отопление.Большая кухня-гостиная с выходом...
    • 1 эт.
    • 85 м²
    • 5 сот.
    11 000 000 Р
    Агент
    +7 (911) Показать номер
    Посмотреть контакты
    Дом в Калининградская область, Гурьевский муниципальный округ, пос. ... - Фото 1
    Дом в Калининградская область, Гурьевский муниципальный округ, пос. ... - Фото 2
    1 этаж, общая площадь 82м², участок 5 соток

    Код объекта: 1862797.Продаётся 1-этажный дом 2025 года постройки в п. Дорожный Гурьевского муниципального округа на улице Рижская.Ориентир - п. Орловка, п. Медведевка, п. Малиновка.О доме:- фундамент - ленточный на монолитной плите;- стены - газосиликатный...
    • 1 эт.
    • 82 м²
    • 5 сот.
    10 500 000 Р
    Агент
    +7 (981) Показать номер
    Посмотреть контакты
    Дом в Калининградская область, Гурьевский муниципальный округ, пос. ... - Фото 1
    Дом в Калининградская область, Гурьевский муниципальный округ, пос. ... - Фото 2
    1 этаж, общая площадь 87м², участок 6 соток

    Код объекта: 1860515.Отдел загородной недвижимости предлагает к продаже дом в сером ключе, расположенный по адресу: Калининградская область,Гурьевский муниципальный округ, п.ГолубевоОриентиры: п.Ласкино, п.Шоссейное,Голубые озера, карьер Мечта . Одноэтажный...
    • 1 эт.
    • 87 м²
    • 6 сот.
    9 300 000 Р
    Агент
    +7 (981) Показать номер
    Посмотреть контакты
    Дом в Калининградская область, Гурьевский муниципальный округ, ... - Фото 1
    Дом в Калининградская область, Гурьевский муниципальный округ, ... - Фото 2
    2 этажа, общая площадь 107м², участок 12 соток

    Код объекта: 1888366.Уникальное предложение для тех, кто ищет спокойствие и уют за пределами городской суеты Продаётся двухэтажный дом в Гурьевском муниципальном округе, садовое товарищество Коммунальник , идеально подходящий для круглогодичного проживания.Дом...
    • 2 эт.
    • 107 м²
    • 12 сот.
    9 950 000 Р
    Агент
    +7 (981) Показать номер
    Посмотреть контакты
    Дом в Калининградская область, Гурьевский муниципальный округ, пос. ... - Фото 1
    Дом в Калининградская область, Гурьевский муниципальный округ, пос. ... - Фото 2
    1 этаж, общая площадь 167м², участок 7 соток

    Код объекта: 1576751.Дом 167 м на участке 7,74 сот.Цена за серый ключ от 65 000р. за м. Функциональная планировка: - просторная кухня-гостиная 42 м- 1 мастер-спальня (+ свой гардероб и санузел)- 2 спальни- санузел- постирочная- тех помещение- гараж на...
    • 1 эт.
    • 167 м²
    • 7 сот.
    10 855 500 Р
    Агент
    +7 (981) Показать номер
    Посмотреть контакты

    Не нашли подходящего объявления?

    Оставьте заявку, и наши риэлторы подберут купить дом в районе Гурьевского района

    (0)