8 400 000 Р 103 700 $ или 89 280

Информация о коттедже

115 м2
Площадь
1
Этажность
6 cоток
Участок

Дополнительная информация

Дом продаётся вместе с участком
есть
Развернуть
Агент
+7 (981) 471-59-97
Начать чат с агентом

Дом в Калининградская область, Гурьевский муниципальный округ, пос. ...

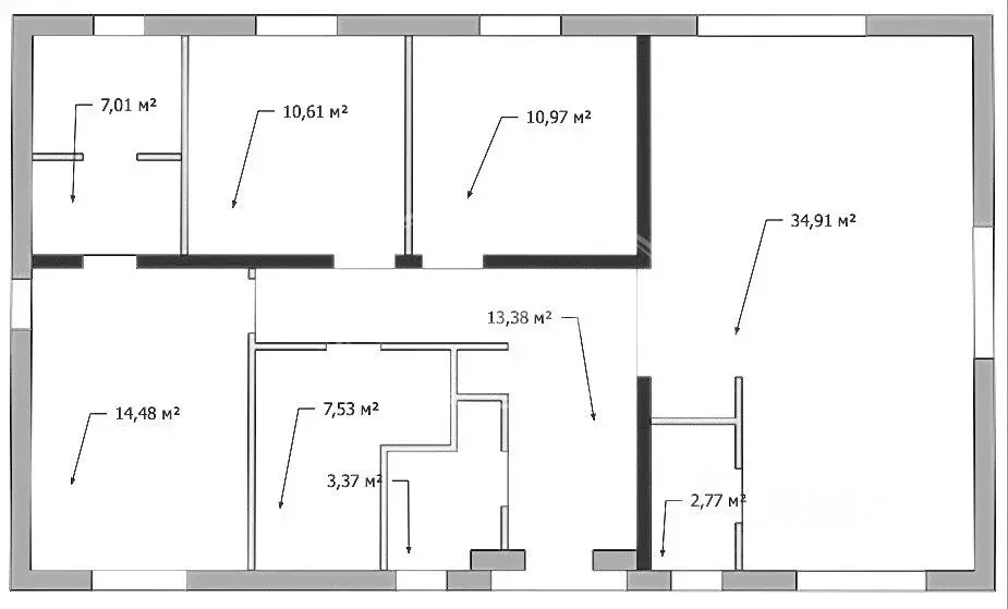
Код объекта: 1389170. Продается дом с тремя спальнями и большой кухней-гостиной.ПОДХОДИТ ПОД СЕМЕЙНУЮ И IT-ИПОТЕКУ Если вы мечтаете жить вдали от городской суеты, но при этом поблизости с цивилизацией, то мы хотим вам предложить к покупке стильный дом, отвечающий на все критерии комфортной жизни.Дом расположен на участке в 6 соток, ровной прямоугольной формы. К дому ведет хорошая подъездная дорога.Общая площадь дома 123 кв.м, по внутренним помещениям с учетом перегородок 112 кв.м.Большая просторная кухня-гостиная, площадью почти 35 кв. м соберет большую семью теплыми вечерами вместе. Так-же в кухне имеется небольшая кладовка, площадью 3 кв.м, которая для хозяйки послужит отличным дополнительным местом хранения запасов для всей семьи.В доме помимо двух спален, есть классная изолированная продуманная мастер-спальня, со своей проходной гардеробной и собственным полноценным санузлом.Общий санузел, площадью 7,5 кв.м, предполагает вмещение и полноценной ванны и просторной душевой одновременно. При необходимости место под ванну имеется возможность оборудовать под небольшую сауну.В доме очень удачная планировка для большой семьи. Расположение помещений даёт возможность с комфортом разместить от трех домочадцев.В доме выполнен качественный серый ключ. Выполнена разводка электрики и сантехники, проведен теплый пол по всему дому, залита стяжка, оштукатурены стены, утеплены перекрытия и кровля. Вам останется сделать чистовой ремонт с учётом вашим пожеланий и предпочтений.Все необходимые коммуникации в доме имеются: электричество, ЛОС, скважина.Не упустите возможность приобрести для своей семьи прекрасный дом в перспективном районе Калининграда.Звоните, с удовольствием проведём вам показ дома и ответим на все интересующие вас вопросы.

Читать полностью

    Для того, чтобы купить 1-этажный коттедж по адресу: Заозерье, Песочная улица, позвоните по телефону +7 (981) 471-59-97. Торопитесь! Объявление №50016342828 о продаже одноэтажного коттеджа опубликовано 2 дня назад.

    Позвонить Написать
    8 400 000 Р103 700 $ или 89 280
    Агент
    +7 (981) 471-59-97
    Начать чат с агентом
    Похожие предложения
    Дом в Калининградская область, Гурьевский муниципальный округ, пос. ... - Фото 1
    Дом в Калининградская область, Гурьевский муниципальный округ, пос. ... - Фото 2
    1 этаж, общая площадь 119м², участок 4 сотки

    ПРОДАЕТСЯ ДОМ МЕЧТЫ в РАССРОЧКУ — Индивидуальные условия для каждого покупателя ЦЕНА 2-КОМНАТНОЙ КВАРТИРЫ = ГОТОВЫЙ ДОМ 120 м Расположение:п. Заозерье Всего 10 минут от Калининграда в тихом уютном месте15 минут до центра города5 минут от Московского...
    • 1 эт.
    • 119 м²
    • 4 сот.
    8 500 000 Р
    Агент
    +7 (981) Показать номер
    Посмотреть контакты
    Дом в Калининградская область, Гурьевский муниципальный округ, пос. ... - Фото 1
    Дом в Калининградская область, Гурьевский муниципальный округ, пос. ... - Фото 2
    2 этажа, общая площадь 101м², участок 10 соток

    Код объекта: 1795282. Уникальное предложение для тех, кто мечтает о собственном доме Продаётся двухэтажный дом, построенный в 2025 году. На участке площадью 10 соток можно воплотить любые ландшафтные идеи, любые дополнительные строения (баня, гараж,...
    • 2 эт.
    • 101 м²
    • 10 сот.
    8 500 000 Р
    Агент
    +7 (981) Показать номер
    Посмотреть контакты
    Дом в Калининградская область, Гурьевский муниципальный округ ул. ... - Фото 1
    Дом в Калининградская область, Гурьевский муниципальный округ ул. ... - Фото 2
    1 этаж, общая площадь 118м², участок 6 соток

    Ваш новый образ жизни в уютном доме качественной постройки в п. Ласкино. Общая площадь 118 м2 с удобной, продуманной планировкой:- просторная, светлая кухня гостиная - три раздельные комнаты- котельная- просторный коридор- санузелСостояние серый ключ....
    • 1 эт.
    • 118 м²
    • 6 сот.
    8 500 000 Р
    Агент
    +7 (981) Показать номер
    Посмотреть контакты
    Дом в Калининградская область, Гурьевский муниципальный округ, пос. ... - Фото 1
    Дом в Калининградская область, Гурьевский муниципальный округ, пос. ... - Фото 2
    1 этаж, общая площадь 78м², участок 5 соток

    Арт.ОТЛИЧНОЕ ПРЕДЛОЖЕНИЕ В продаже новый дом 78 м.кв. на участке 5 соток земли с ГАЗОВЫМ АВТОНОМНЫМ ОТОПЛЕНИЕМ О доме: общая площадь 78 м.кв. Кухня-гостиная 28,8 м. кв.; Две комнаты 13,63 и 11,93 м.кв.; ...
    • 1 эт.
    • 78 м²
    • 5 сот.
    8 400 000 Р
    Агент
    +7 (911) Показать номер
    Посмотреть контакты
    Дом в Калининградская область, Гурьевский муниципальный округ, пос. ... - Фото 1
    Дом в Калининградская область, Гурьевский муниципальный округ, пос. ... - Фото 2
    1 этаж, общая площадь 70м², участок 4 сотки

    Арт.Продается частный дом в коттеджном поселке Южный парк на юге города Калининград (практически в черте города ул. Аллея смелых / Южный обход). 3 минуты езды до крупных торговых центров и магазинов, 15 минут до центра города и 40 минут до побережья...
    • 1 эт.
    • 70 м²
    • 4 сот.
    8 500 000 Р
    Агент
    +7 (910) Показать номер
    Посмотреть контакты

    Не нашли подходящего объявления?

    Оставьте заявку, и наши риэлторы подберут купить дом в районе Заозерья

    (0)