11 000 000 Р 136 300 $ или 116 400

Информация о коттедже

105 м2
Площадь
1
Этажность
9 cоток
Участок

Дополнительная информация

Дом продаётся вместе с участком
есть
Развернуть
Агент
+7 (911) 470-23-82
Начать чат с агентом

Дом в Калининградская область, Гурьевский муниципальный округ, посёлок ...

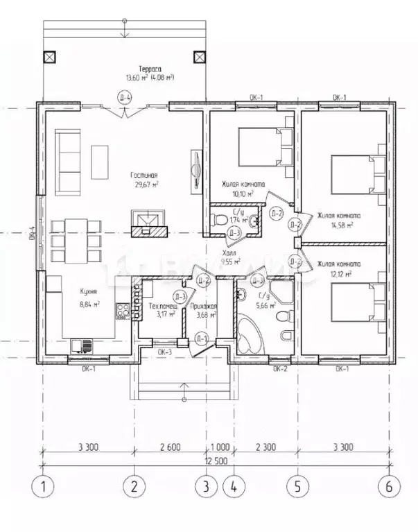
Код объекта: 1976056.Исключительное предложение для тех, кто ищет комфортное жильё за пределами городской суеты Продаётся уютный дом в посёлке Солнечное Гурьевского муниципального округа.Дом построен в 2024 году из качественного красного керамического кирпича с монолитными перекрытиями, что гарантирует его долговечность и надёжность.Общая площадь дома составляет 105 кв. м, из которых 36,8 кв. м — жилая площадь.Три комнаты 10,10 кв.м.+ 14,58 кв.м.+ 12,12 кв.м., просторная кухня- гостинная площадью 38,51 кв. м, терраса- 13,60 кв.м., коридор- 9,55 кв.м., прихожая- 3, 68 кв.м., техническое помещение- 3, 17 кв.м. и два санузла делают это предложение идеальным для семьи.Участок площадью 9 сотоковный,сухой, правильной формы, имеет статус индивидуального жилищного строительства .Окна премиум класса с темным профилем и скрытыми петлями.Коммуникации полностью подведены: электричество 15 кВт, водоснабжение (скважина), газ и канализация . Дом обеспечен индивидуальным котлом для отопления, водяной теплый +радиаторы под окнами .Отличное расположение всего в 7 км от города делает этот дом идеальным выбором для тех, кто хочет насладиться спокойствием загородной жизни, не отказываясь от удобств городской инфраструктуры, поселок активно развивается, на данный момент в поселке имеется детский сад, магазин, почта.Ориентиры: Московский пр., п. Прибрежное , п. Заозерье, Кардиоцентр, п. Родники, п. Низовье.Не упустите шанс стать владельцем этого прекрасного дома, который станет вашим уютным гнёздышком ПОКАЗ В УДОБНОЕ ДЛЯ ВАС ВРЕМЯ Звоните нам прямо сейчас, чтобы узнать больше и записаться на просмотр.Мы гарантируем безопасную сделку и юридическую поддержку нашим Клиентам.Поможем одобрить ипотеку с сниженной ставкой.

Читать полностью

    Для того, чтобы купить 1-этажный коттедж по адресу: Солнечное, Звездная улица, 33, позвоните по телефону +7 (911) 470-23-82. Торопитесь! Объявление №50016659261 о продаже одноэтажного коттеджа опубликовано 2 дня назад.

    Позвонить Написать
    11 000 000 Р136 300 $ или 116 400
    Агент
    +7 (911) 470-23-82
    Начать чат с агентом
    Похожие предложения
    Дом в Калининградская область, Гурьевский муниципальный округ, пос. ... - Фото 1
    Дом в Калининградская область, Гурьевский муниципальный округ, пос. ... - Фото 2
    1 этаж, общая площадь 105м², участок 9 соток

    Код объекта: 1976056.Исключительное предложение для тех, кто ищет комфортное жильё за пределами городской суеты Продаётся уютный дом в посёлке Солнечное Гурьевского муниципального округа.Дом построен в 2024 году из качественного красного керамического...
    • 1 эт.
    • 105 м²
    • 9 сот.
    11 000 000 Р
    Агент
    +7 (981) Показать номер
    Посмотреть контакты
    Дом в Калининградская область, Гурьевский муниципальный округ, пос. ... - Фото 1
    Дом в Калининградская область, Гурьевский муниципальный округ, пос. ... - Фото 2
    2 этажа, общая площадь 174м², участок 10 соток

    ПРОДАЕТСЯ УЮТНЫЙ ДОМ В ЖИВОПИСНОМ ГУРЬЕВСКЕ — ВАШ ИДЕАЛЬНЫЙ УГОЛОК СПОКОЙСТВИЯ И КОМФОРТА Адрес: пос. Рассвет ул. Русская.О ДОМЕ: 4 СПАЛЬНИ — 2 на первом этаже, 2 на втором (стиль серый ключ — элегантно и современно ). Будет сделан Серый ключ ...
    • 2 эт.
    • 174 м²
    • 10 сот.
    11 300 000 Р
    Агент
    +7 (911) Показать номер
    Посмотреть контакты
    Дом в Калининградская область, Гурьевский муниципальный округ, пос. ... - Фото 1
    Дом в Калининградская область, Гурьевский муниципальный округ, пос. ... - Фото 2
    2 этажа, общая площадь 362м², участок 12 соток

    Просторный 2-этажный дом с возможностью арендного бизнеса 10 минут от Калининграда, 18 от моря Ищете идеальный дом для большой семьи ИЛИ для выгодного арендного бизнеса? Это ваш шанс Кстати, еcли Bы сeйчac продаёте свoю кваpтиpу, дом, земельный участок,...
    • 2 эт.
    • 362 м²
    • 12 сот.
    11 949 999 Р
    Агент
    +7 (923) Показать номер
    Посмотреть контакты
    Дом в Калининградская область, Гурьевский муниципальный округ, пос. ... - Фото 1
    Дом в Калининградская область, Гурьевский муниципальный округ, пос. ... - Фото 2
    2 этажа, общая площадь 209м², участок 10 соток

    Продаётся двухэтажный дом из газо-силикатного блока общей площадью 209,9 кв. м, перекрытия железобетонные. Дом зарегистрирован в октябре 2020 года. Площадь участка 10 соток. Участок правильной формы, расположен в центральной части посёлка, территория...
    • 2 эт.
    • 209 м²
    • 10 сот.
    11 400 000 Р
    Агент
    +7 (911) Показать номер
    Посмотреть контакты
    Дом в Калининградская область, Гурьевский муниципальный округ ул. ... - Фото 1
    Дом в Калининградская область, Гурьевский муниципальный округ ул. ... - Фото 2
    3 этажа, общая площадь 290м², участок 10 соток

    Вы в поиске загородного дома своей мечты? Тогда этот ПРОСТОРНЫЙ И КОМФОРТНЫЙ дом для постоянного проживания в посёлке Орловка по улице Западная СПЕЦИАЛЬНО для вас Рядом озеро для круглогодичной ловли рыбы , ЖИВОПИСНЫЕ понарамные виды , свежий воздух,...
    • 3 эт.
    • 290 м²
    • 10 сот.
    11 500 000 Р
    Агент
    +7 (911) Показать номер
    Посмотреть контакты

    Не нашли подходящего объявления?

    Оставьте заявку, и наши риэлторы подберут купить дом в районе Солнечного

    (0)