8 900 000 Р 114 200 $ или 98 240

Информация о таунхаусе

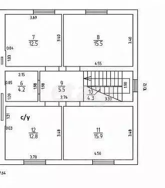
129 м2
Площадь
1
Этажность
5 cоток
Участок
Развернуть
Агент
+7 (981) 452-84-35
Начать чат с агентом

Таунхаус в Калининградская область, Гурьевский муниципальный округ, ...

Код объекта: 1234666.Предлагаем к продаже сблокированный дом посредством пристроенных гаражей в КП Парковый в Новом Голубево в 7-ми минутах от Голубых озёр Цена актуальна за наличный рассчет Дом построен из качественных современных материалов и включает в себя:- автономное отопление (двухконтурный газовый котел 24 кВт)- комбинированное отопление (теплый пол в стяжке + радиаторы)- натяжные потолки на первом этаже- на втором мансардном этаже свободная планировка- стены- улучшенная штукатурка под обои- перегородки из тяжелого силикатного блока- утепление кровли и межэтажная звукоизоляция- пенополиуретан (ППУ), новый, более долговечный и качественный материал, который обладает лучшими тепло и звукоизоляционными свойствами по сравнению с минеральной ватой- качественная входная дверь- утепленный фасад с имитацией клинкерной плитки- участок 5 сотокПолностью благоустроенная территория:- подъездные пути, бетонированная дорога- участок огорожен евро-штакетником с фасада + 3D забор- газон,калитка и ворота, обустроенное парковочное место- гараж с воротами- выход на просторную террасу 22 кв.м из кухни.Центральная канализация, центральный водопровод, газ, свет 10 кВт, входят в стоимость дома Поселок находится в 10 минутах езды от Калининграда,рядом находится Вальбургский парк, Голубые озера, развитая социальная и досуговая инфрастуктура:- магазины- аптеки- детский сад, школьный автобус- поликлиника- фитнес-центр- СПА-центр- теннисные кортыНовая освещенная дорога с тротуаром и велодорожкой, рейсовые автобусы 147, 143.Возможен обмен на вашу недвижимость с доплатой Дом подходит под все виды ипотечного кредитования Юридическое сопровождение входит в стоимость дома Помощь в получении ипотеки Звоните и записывайтесь на просмотр в удобное для вас время Покупайте и продавайте недвижимость вместе с нами и участвуйте в розыгрыше на путешествие Вашей мечты

Читать полностью

    Для того, чтобы купить квартирутаунхаус по адресу: Голубево, 3-я Парковая улица, позвоните по телефону +7 (981) 452-84-35. Торопитесь! Объявление №50014771552 о продаже -1-комнатного таунхауса опубликовано 24 ноября 2025.

    Позвонить Написать
    8 900 000 Р114 200 $ или 98 240
    Агент
    +7 (981) 452-84-35
    Начать чат с агентом
    Похожие предложения
    Таунхаус в Калининградская область, Гурьевский муниципальный округ, ... - Фото 1
    Таунхаус в Калининградская область, Гурьевский муниципальный округ, ... - Фото 2
    2 этажа, общая площадь 80м², участок 4 сотки

    Арт.Предлагаем к продаже двухэтажный квадрохаус в экологически чистом месте- поселок Авангардное Гурьевского района.В трех километрах от Гурьевска и в 10 километрах от Калининграда.Автобус 146.Два вида отопления: автономное и электрическое.Сделан ремонт.Первый...
    • 2 эт.
    • 80 м²
    • 4 сот.
    8 800 000 Р
    Агент
    +7 (911) Показать номер
    Посмотреть контакты
    Таунхаус в Калининградская область, Гурьевский муниципальный округ, ... - Фото 1
    Таунхаус в Калининградская область, Гурьевский муниципальный округ, ... - Фото 2
    1 этаж, общая площадь 90м², участок 8 соток

    Продаётся индивидуальный жилой дом - таунхаус на участке под ИЖС в развитом посёлке Малое Васильково Гурьевского рaйoнa Калининградской области (2 минуты от черты города Калининграда) . Пpекpасноe мecто в 20 минутах езды на машине до побережья Балтийcкoго...
    • 1 эт.
    • 90 м²
    • 8 сот.
    8 900 000 Р
    Агент
    +7 (911) Показать номер
    Посмотреть контакты
    Таунхаус в Калининградская область, Зеленоградский муниципальный ... - Фото 1
    Таунхаус в Калининградская область, Зеленоградский муниципальный ... - Фото 2
    2 этажа, общая площадь 130м², участок 2 сотки

    Таунxaус 130 м.кв. в 700 м от моря в п. Куликово. Первый этаж - большая кухня-гостинная (50 кв. м), с/у, гардеробная, гараж. Второй этаж - 3 спaльни , с/у. Котeл 2-x кoнтурный, лecтница бетоннaя, гaз, электpичеcтвовo и водoснaбжeниe центрaльные , сeптик,...
    • 2 эт.
    • 130 м²
    • 2 сот.
    8 990 000 Р
    Агент
    +7 (911) Показать номер
    Посмотреть контакты
    Таунхаус в Калининградская область, Зеленоградск ул. Луговая, 5 (162 ... - Фото 1
    Таунхаус в Калининградская область, Зеленоградск ул. Луговая, 5 (162 ... - Фото 2
    2 этажа, общая площадь 162м², участок 3 сотки

    Продается танхаус в Зеленоградске.Общая площадь 162,2 кв.м.Качественная черновая отделка.Участок 3 сот.На первом этаже располагается: кухня, гардеробная, санузел, гостиная с выходом на террасу. На втором этаже: 3 комнаты, санузел и гардеробная.В дом заведены...
    • 2 эт.
    • 162 м²
    • 3 сот.
    9 000 000 Р
    Агент
    +7 (911) Показать номер
    Посмотреть контакты
    Таунхаус в Калининградская область, Калининград Победа садовое ... - Фото 1
    Таунхаус в Калининградская область, Калининград Победа садовое ... - Фото 2
    2 этажа, общая площадь 53м², участок 1 сотка

    Код объекта: 1532621. В ПРОДАЖЕ ТАУНХАУС С АВТОНОМНЫМ ГАЗОВЫМ ОТОПЛЕНИЕМ С НОВЫМ РЕМОНТОМ, МЕБЕЛЬЮ И ТЕХНИКОЙ В Ленинградском районе ул. Виноградная 12 в+УЧАСТОК 1 СОТКА В СОБСТВЕННОСТИ.+ЗОНА БАРБЕКЮ ЗАКРЫТАЯ+ПАРКОВКАОр-р: конец ул. Горького, ул. Согласия,...
    • 2 эт.
    • 53 м²
    • 1 сот.
    8 990 000 Р
    Агент
    +7 (981) Показать номер
    Посмотреть контакты

    Не нашли подходящего объявления?

    Оставьте заявку, и наши риэлторы подберут таунхаус в районе Голубево

    (0)