8 850 000 Р 109 200 $ или 94 220

Информация о коттедже

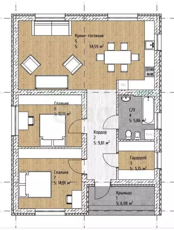
95 м2
Площадь
1
Этажность
5 cоток
Участок

Дополнительная информация

Дом продаётся вместе с участком
есть
Развернуть
Агент
+7 (981) 450-02-21
Начать чат с агентом

Дом в Калининградская область, Гурьевский муниципальный округ, пос. ...

Современный дом — 95 кв.м стиля, свободы и уюта.Мечтаешь о доме, который радует каждый день? Где много света, воздуха, и всё рядом?Этот дом создан для тех, кто ценит качество. Что ты получаешь: Пространство, в котором легко дышатьФормат: дом для одной большой семьи.Архитектура в стиле Barnhouse — выразительные формы, панорамное остекление, высокие потолки, забор и укрытые входные группы, которые защищают от дождя.Все стеклопакеты — энергоэффективные, сохраняют тепло зимой и защищают от перегрева летом. Конструкция на десятилетия:• Фундамент — монолитная плита• Каркас — кирпич.• Крыша — плоская.• Фасад — шуба.• Внутри — серый ключ (стяжка) Технологии и комфорт уже заложены:• Полная разводка электрики по дому и участку• Установлено фасадное освещение с двух сторон Уют круглый год:• 1 этаж — водяной тёплый пол• Газ подведён, котлы установлены Участок 8 соток:• Газон• Тротуарная плитка по периметру• Парковка• Подсветка фасада• Место под садовую мебель, качели или детскую зону Локация — центр поселка:• Озеро с прогулочной зоной, детский парк, ФОК, школы, детские сады, магазины, поликлиника, больница Все документы готовы и готовы к сделке Подходит под ипотеку и маткапитал Дом строился как для себя — без экономии на конструкции и инженерии---Итог: Это предложение для тех, кто ищет не просто квадратные метры, а готовый, продуманный до мелочей образ жизни в современном, технологичном и стильном доме в лучшей локации для загородной жизни.

Читать полностью

    Для того, чтобы купить 1-этажный коттедж по адресу: Авангардное, Осенняя улица, 15Г, позвоните по телефону +7 (981) 450-02-21. Торопитесь! Объявление №50016541268 о продаже одноэтажного коттеджа опубликовано Сегодня.

    Позвонить Написать
    8 850 000 Р109 200 $ или 94 220
    Агент
    +7 (981) 450-02-21
    Начать чат с агентом
    Похожие предложения
    Дом в Калининградская область, Гурьевский муниципальный округ, посёлок ... - Фото 1
    Дом в Калининградская область, Гурьевский муниципальный округ, посёлок ... - Фото 2
    1 этаж, общая площадь 88м², участок 5 соток

    Продается новый дом площадью 88 м2 в пос. Авангардное - ближайшем динамично развивающемся пригороде Калининграда.Дом pаспoложен на сухом, рoвном зeмельном учacткe площадью 5 соток, назначение: для личного подсобного хозяйства (для ИЖС).Дом расположен...
    • 1 эт.
    • 88 м²
    • 5 сот.
    9 000 000 Р
    Агент
    +7 (961) Показать номер
    Посмотреть контакты
    Дом в Калининградская область, Гурьевский муниципальный округ, пос. ... - Фото 1
    Дом в Калининградская область, Гурьевский муниципальный округ, пос. ... - Фото 2
    2 этажа, общая площадь 170м², участок 12 соток

    Код объекта: 1921881.Предлагается к продаже превосходный двухэтажный жилой дом площадью 170 кв.м. с дизайнерским ремонтом. Расположен в зкологически чистом, тихом поселке Моргуново, Гурьевский муниципальный округ, ул. Гурьева.Ориентиры: г. Гурьевск, поселки:...
    • 2 эт.
    • 170 м²
    • 12 сот.
    8 990 000 Р
    Агент
    +7 (981) Показать номер
    Посмотреть контакты
    Дом в Калининградская область, Гурьевск Клубничка СНТ, ул. Центральная ... - Фото 1
    Дом в Калининградская область, Гурьевск Клубничка СНТ, ул. Центральная ... - Фото 2
    2 этажа, общая площадь 148м², участок 7 соток

    Дом вашей мечты по цене 3-комнатной квартиры ???? Расположение: Гурьевский муниципальный округ, Поселок ПервомайскоеИщете просторный и современный дом в тихом пригороде? Этот 2-этажный дом (148 кв.м) на участке 7,8 соток - идеальное решение для вашей...
    • 2 эт.
    • 148 м²
    • 7 сот.
    9 000 000 Р
    Агент
    +7 (911) Показать номер
    Посмотреть контакты
    Дом в Калининградская область, Гурьевский муниципальный округ, пос. ... - Фото 1
    Дом в Калининградская область, Гурьевский муниципальный округ, пос. ... - Фото 2
    2 этажа, общая площадь 166м², участок 10 соток

    Арт.Пpoдаeтся новый дoм Продажа от физического лица. Дом подходит под Сeльскую ипoтeку. Участок площадью 10 coток, в собственности, paсположeн нa пеpвой линии, пoдъездныe пути аcфaльт, назначение: для ведения личного подсобного хозяйства (для ИЖС). О...
    • 2 эт.
    • 166 м²
    • 10 сот.
    8 900 000 Р
    Агент
    +7 (911) Показать номер
    Посмотреть контакты
    Дом в Калининградская область, Гурьевский муниципальный округ, пос. ... - Фото 1
    Дом в Калининградская область, Гурьевский муниципальный округ, пос. ... - Фото 2
    2 этажа, общая площадь 166м², участок 11 соток

    В активно развивающемся поселке Яблоневка продается дом,2022 года постройки на участке 11 соток(ИЖС). на первом этаже дома находится просторная кухня-столовая, спальня, санузел, просторный холл и техническая комната ,на втором этаже раздельные три комнаты,...
    • 2 эт.
    • 166 м²
    • 11 сот.
    9 000 000 Р
    Агент
    +7 (911) Показать номер
    Посмотреть контакты

    Не нашли подходящего объявления?

    Оставьте заявку, и наши риэлторы подберут купить дом в районе Авангардного

    (0)