8 312 020 Р 104 800 $ или 89 440

Информация о квартире

62 м2
Площадь
25 м2
Жилая
16 м2
Кухня
2
Комнаты
5
Этаж
7
Этажность
Развернуть
Агент
+7 (966) 267-80-35
Начать чат с агентом

2-к кв. Калининградская область, Гурьевск Включи жилой комплекс (62.03 ...

Квартира: 2 к 62,03 кв.м., 5 этаж в комплексе Включи, 5 очередь, корп.10, сдача: 3кв. , этажей: 7, адрес Гурьевск г., Героя России Катериничева ул., , Застройщик: ССК. Номер в базе: J31260L26999

Читать полностью
    Позвонить Написать
    8 312 020 Р104 800 $ или 89 440
    Агент
    +7 (966) 267-80-35
    Начать чат с агентом
    Похожие предложения в Гурьевске
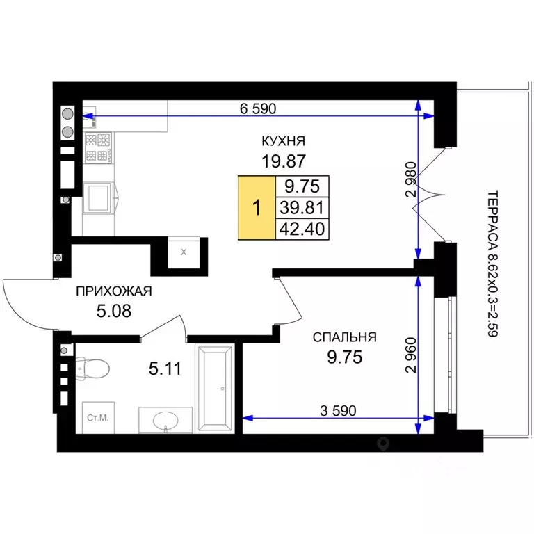
    1-к кв. Калининградская область, Гурьевск Включи жилой комплекс (42.4 ... - Фото 1
    1-к кв. Калининградская область, Гурьевск Включи жилой комплекс (42.4 ... - Фото 2
    1-комнатная квартира, общая площадь 42м²

    Однокомнатная квартира — это гармоничное сочетание современной планировки, естественного света и продуманной функциональности. Пространство легко зонируется на спальную и гостиную зоны, а просторная кухня с возможностью размещения полноценной обеденной...
    • 42 м²
    • 1-ком
    • 1/7 эт.
    • кирпичный
    8 280 720 Р
    Агент
    +7 (966) Показать номер
    Посмотреть контакты
    1-к кв. Калининградская область, Гурьевск Пражский жилой комплекс ... - Фото 1
    1-к кв. Калининградская область, Гурьевск Пражский жилой комплекс ... - Фото 2
    1-комнатная квартира, общая площадь 52м²

    Продаётся 1-комнатная квартира в строящемся доме (Дом 2), срок сдачи: IV-кв. 2027, общей площадью 52.3 кв.м., на 7 этаже. Пентхаусы и уютные квартиры для семей с кухней гостиной, в доме комфорт класса с лифтом. Смарт планировки с мастер спальней родителей...
    • 52 м²
    • 1-ком
    • 7/7 эт.
    • кирпичный
    8 368 000 Р
    Агент
    +7 (932) Показать номер
    Посмотреть контакты
    2-к кв. Калининградская область, Гурьевск Включи жилой комплекс (62.03 ... - Фото 1
    2-к кв. Калининградская область, Гурьевск Включи жилой комплекс (62.03 ... - Фото 2
    2-комнатная квартира, общая площадь 62м², жилая 25м², кухня 16м²

    Квартира: 2 к 62,03 кв.м., 6 этаж в комплексе Включи, 5 очередь, корп.10, сдача: 3кв. , этажей: 7, адрес Гурьевск г., Героя России Катериничева ул., , Застройщик: ССК. Номер в базе: J31260L27004
    • 62 м²
    • 2-ком
    • 6/7 эт.
    8 312 020 Р
    Агент
    +7 (966) Показать номер
    Посмотреть контакты
    2-к кв. Калининградская область, Гурьевск Включи жилой комплекс (62.04 ... - Фото 1
    2-к кв. Калининградская область, Гурьевск Включи жилой комплекс (62.04 ... - Фото 2
    2-комнатная квартира, общая площадь 62м², жилая 25м², кухня 16м²

    Квартира: 2 к 62,04 кв.м., 3 этаж в комплексе Включи, 5 очередь, корп.10, сдача: 3кв. , этажей: 7, адрес Гурьевск г., Героя России Катериничева ул., , Застройщик: ССК. Номер в базе: J31260L27001
    • 62 м²
    • 2-ком
    • 3/7 эт.
    8 313 360 Р
    Агент
    +7 (966) Показать номер
    Посмотреть контакты
    2-к кв. Калининградская область, Гурьевск Включи жилой комплекс (62.99 ... - Фото 1
    2-к кв. Калининградская область, Гурьевск Включи жилой комплекс (62.99 ... - Фото 2
    2-комнатная квартира, общая площадь 62м², жилая 25м², кухня 17м²

    Квартира: 2 к 62,99 кв.м., 2 этаж в комплексе Включи, 5 очередь, корп.10, сдача: 3кв. , этажей: 7, адрес Гурьевск г., Героя России Катериничева ул., , Застройщик: ССК. Номер в базе: J31260L27005
    • 62 м²
    • 2-ком
    • 2/7 эт.
    8 314 680 Р
    Агент
    +7 (966) Показать номер
    Посмотреть контакты

    Не нашли подходящего объявления?

    Оставьте заявку, и наши риэлторы подберут квартиру в новостройке в районе Гурьевска

    (0)