Реализация объекта недвижимости приостановлена

Информация о квартире

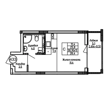
29.0 м2
Площадь
1
Комната
1
Этаж
7
Этажность

Дополнительная информация

Тип дома
кирпичный
Развернуть

1-к кв. Калининградская область, Гурьевск Пражский жилой комплекс ...

Продаётся 1-комнатная квартира в строящемся доме (Дом 3), срок сдачи: IV-кв. 2027, общей площадью 29.5 кв.м., на 1 этаже. Пентхаусы и уютные квартиры для семей с кухней гостиной, в доме комфорт класса с лифтом. Смарт планировки с мастер спальней родителей (собственный санузел и местами хранения).Планируемый срок ввода 1 квартал 2027 г.СЕМЕЙНАЯ ИПОТЕКА ОТ 5,99 .РАССРОЧКА ОТ ЗАСТРОЙЩИКА.Предусмотрена отделка серый ключ .улучшенная известковая штукатурка стен;машинная стяжка пола;увеличенные окна ПВХ с заниженными подоконниками 70 см.; Потолки Н- 2,7 м.; входная дверь;электроразводка с электророзетками и выключателями;разводка труб горячего/холодного водоснабжения;автономное отопление, газовый котел;радиаторы отопления со скрытой подводкой;датчики оксида углерода и метана;счетчики воды, электрической энергии и газа;панорамное остекление лоджий с ударопрочным стеклом; интернет , ТВ, . Транспортная доступность.-Вторая линии от центральных дорог.-Автобусная остановка (300м.);- Продуктовый магазин (500 м.);- Общеобразовательная школа и садик -300-700м.;- кафе (5- 7 минут пешком); - Парковая зона (10 мин.);Описание дома .Фасады - дом будет выполнен в современном стиле, с применением натуральных цветов;Остекление - панорамные лоджии с большой площадью остекления, увеличенные оконные блоки 2100*180 см. с низкими подоконниками 70 см.Ударобезопасны стекла;Корзины для кондиционеров;Лифты - от европейского производителя.SMART видеодомофон; SMART видеонаблюдение с облачным хранением; доступ по смартфону;аспознавание лиц; просмотр данных онлайн; Высокоскоростной интернет и онлайн ТВ;Благоустройство - детская площадка с резиновым покрытием оборудованные игровыми комплексами , парковочные места, озеленение, прогулочная зона .Подъезды - будут использоваться современные дизайнерские наработки с высококлассными материалами и цветовыми решениями. € Варианты оплаты: наличный расчет; ипотека банки партнеры ВТБ, Сбербанк и прочие ; жилищные сертификаты; материнский капитал;ассрочка на индивидуальных условиях .Проектом предусмотрено строительство 3 домов на земельном участке площадью более 6 500 м. кв. Строительство будет разбито на 2 этапа, 1 этап - 2 одно подъездных дома, 2 этап - один двух подъездный дом. Все дома будут созданы по индивидуальному проекту, с акцентом на SMART планировки, что подчёркивает отношение к каждому клиенту.ООО Специализированный застройщик Делорад .

Читать полностью

    Реализация объекта недвижимости приостановлена

    Не нашли подходящего объявления?

    Оставьте заявку, и наши риэлторы подберут квартиру в новостройке в районе Гурьевска

    (0)