Реализация объекта недвижимости приостановлена

Информация о квартире

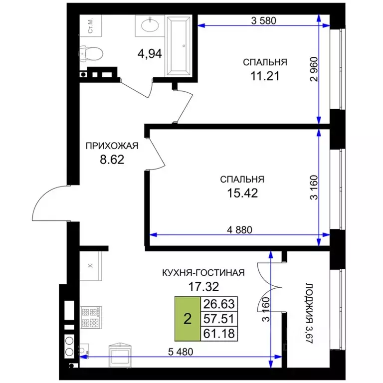
61.0 м2
Площадь
2
Комнаты
2
Этаж
7
Этажность
Развернуть

2-к кв. Калининградская область, Гурьевск Включи жилой комплекс (61.18 ...

Продаётся 2-комнатная квартира в строящемся доме (Дом 2 (1 очередь)), срок сдачи: III-кв. 2025, общей площадью 61.18 кв.м., на 2 этаже. Новый жилой комплекс Включи от застройщика СпецСтройКубаньасположен в г. Гурьевск в районе Гурьевского шоссе.

Читать полностью

    Реализация объекта недвижимости приостановлена

    Не нашли подходящего объявления?

    Оставьте заявку, и наши риэлторы подберут квартиру в новостройке в районе Гурьевска

    (0)