7 000 000 Р 90 940 $ или 77 860

Информация о коттедже

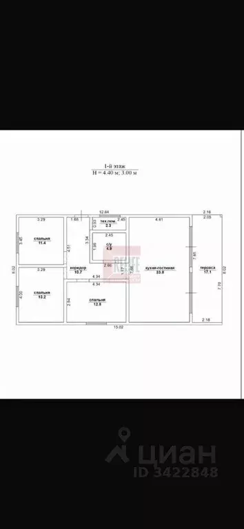
158 м2
Площадь
2
Этажность
12 cоток
Участок

Дополнительная информация

Дом продаётся вместе с участком
есть
Развернуть
Агент
+7 (962) 584-22-41
Начать чат с агентом

Дом в Калининградская область, Багратионовский муниципальный округ, ...

Код объекта: 1946932.Продаётся просторный дом с огромной придомовой территорией, готовый для воплощения всех Ваших идей Дом 2021 года постройки находится в посёлке Ильюшино. Материал постройки: газосиликатные блоки.В доме 2 этажа. На первом этаже расположилась просторная кухня-гостиная (32,6 м2). На втором находятся 4 жилые комнаты. На каждом этаже есть свой санузел; также имеется гардеробная.- Общая площадь: 158 кв. м.- Жилая площадь: 59 кв. м.Дом идеально подойдёт для комфортного проживания дружной семьи. Просторные комнаты позволяют реализовать различные варианты зонирования.На участке есть гараж, площадь участка составляет 12 соток. Также еще три участка по 12 соток находятся в аренде с возможностью оформления их в собственность.Коммуникации и удобства:- Водоснабжение - абиссинская скважина.- Дом уже утеплен пенополистиролом 50 мм.- Комфортные подъездные пути.- Отопление отсутствует, что позволяет будущим владельцам выбрать наиболее подходящий для них вариант. Но при этом поселок включен в программу догазификации, и уже сейчас завершается процесс заведения газа в поселок.Это отличное предложение для тех, кто ищет просторное жильё в тихом посёлке с возможностью благоустройства участка под свои нужды.Позвоните нам прямо сейчас, чтобы узнать больше и записаться на просмотр.Мы гарантируем безопасную сделку и юридическую поддержку нашим клиентам. Поможем одобрить ипотеку с сниженной ставкой.

Читать полностью

    Для того, чтобы купить 2-этажный коттедж по адресу: Ильюшино, ул. Багратионовская, 4, позвоните по телефону +7 (962) 584-22-41. Торопитесь! Объявление №50016605042 о продаже двухэтажного коттеджа опубликовано 26 ноября 2025.

    Позвонить Написать
    7 000 000 Р90 940 $ или 77 860
    Агент
    +7 (962) 584-22-41
    Начать чат с агентом
    Похожие предложения
    Дом в Калининградская область, Багратионовский муниципальный округ, ... - Фото 1
    Дом в Калининградская область, Багратионовский муниципальный округ, ... - Фото 2
    2 этажа, общая площадь 158м², участок 12 соток

    Код объекта: 1946932.Продаётся просторный дом с огромной придомовой территорией, готовый для воплощения всех Ваших идей Дом 2021 года постройки находится в посёлке Ильюшино. Материал постройки: газосиликатные блоки.В доме 2 этажа с возможностью эксплуатации...
    • 2 эт.
    • 158 м²
    • 12 сот.
    7 000 000 Р
    Агент
    +7 (911) Показать номер
    Посмотреть контакты
    Дом в Калининградская область, Багратионовский муниципальный округ, ... - Фото 1
    Дом в Калининградская область, Багратионовский муниципальный округ, ... - Фото 2
    общая площадь 242м², участок 18 соток

    Устали от городской суеты? Продаётся райский уголок за городом Мечтаете о тишине, свежем воздухе и захватывающих видах? Тогда это предложение для вас Продаётся уютный, просторный дом, расположенный в живописном месте за городом. Вы будете наслаждаться...
    • 242 м²
    • 18 сот.
    6 990 000 Р
    Агент
    +7 (911) Показать номер
    Посмотреть контакты
    Дом в Калининградская область, Калининград Победа садовое ... - Фото 1
    Дом в Калининградская область, Калининград Победа садовое ... - Фото 2
    2 этажа, общая площадь 76м², участок 9 соток

    Код объекта: 1577285. Капитальный 2-х этажный жилой дом с богатым приусадебным участком 9 соток. Ориентиры: ул Горького, ул Большая ОкружнаяДом 2 этажа, 76,8 кв м, кухня - 10 кв м. Первый этаж - кухня и комната, второй этаж - просторная спальная комната...
    • 2 эт.
    • 76 м²
    • 9 сот.
    6 900 000 Р
    Агент
    +7 (981) Показать номер
    Посмотреть контакты
    Дом в Калининградская область, Гурьевский муниципальный округ, Мирное ... - Фото 1
    Дом в Калининградская область, Гурьевский муниципальный округ, Мирное ... - Фото 2
    общая площадь 83м², участок 6 соток

    Продам жилой Дом в Гурьевском г. о., тер. СНТ Мирное , 53-й проезд. Дом 83 квадратных метра по документам. Земельный участок 5,02 сотки. 2024 год постройки .Материал стен : Газоселикатный блок . Стены внутренняя отделка :Известковая штукатурка. Теплые...
    • 83 м²
    • 6 сот.
    7 000 000 Р
    Агент
    +7 (911) Показать номер
    Посмотреть контакты
    Дом в Калининградская область, Гурьевский муниципальный округ, пос. ... - Фото 1
    Дом в Калининградская область, Гурьевский муниципальный округ, пос. ... - Фото 2
    1 этаж, общая площадь 112м², участок 7 соток

    Арт.Уютный каркасный дом в Сером Ключе современный комфорт на лоне природы Просторный дом 112 м на ухоженном участке 7 соток идеальное решение для тех, кто ценит качество, экологичность и независимость загородной жизни. Ключевые особенности дома:...
    • 1 эт.
    • 112 м²
    • 7 сот.
    7 100 000 Р
    Агент
    +7 (981) Показать номер
    Посмотреть контакты

    Не нашли подходящего объявления?

    Оставьте заявку, и наши риэлторы подберут купить дом в районе Ильюшино

    (0)